Beschreibung
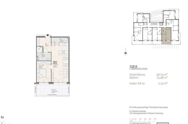
Neubauwohnung in Velden am Wörther See - Erstbezug mit Balkon In der beliebten Gemeinde Velden am Wörther See entsteht ein modernes Wohnhaus mit durchdachten Grundrissen. Diese 2-Zimmer-
Wohnung im 1. Obergeschoss bietet auf ca. 56,73 m² ein komfortables Zuhause für Singles, Paare oder kleine Familien. Der sonnige Balkon lädt zum Entspannen ein - ideal für ruhige Morgenstunden oder gemütliche Abende Als Erstbezug profitieren Sie von hochwertiger Ausstattung und zeitgemäßem Wohnkomfort. Wenn Sie Fragen haben oder das Projekt näher kennenlernen möchten, zögern Sie nicht - wir freuen uns auf Ihre Anfrage! Lage: Das Projekt LIFESTYLE VELDEN begeistert mit einer zentralen Lage in Velden am Wörthersee. In gerade einmal fünf leichtfüßigen Minuten erreichen Sie die Seepromenade, wo sich ein bezaubernder Ausblick über den gesamten See erstreckt. Viele Einkaufsmöglichkeiten, tolle Straßencafés und gemütliche Plätze, welche zum Gustieren und Flanieren einladen, formen das idyllische Ortsbild von Velden.
Falls Sie Stadtluft schnuppern möchten oder sich nach Abwechslung sehnen, befindet sich die einladende Landeshauptstadt Klagenfurt am Wörthersee nur angenehme 25 Fahrminuten entfernt. Nur einen Katzensprung hinter den angrenzenden Bergen im Süden, erwartet Sie der mediterrane Flair von Italien und Slowenien.... [Mehr]