Beschreibung
In der Dr.-Anton-Bruckner-Straße in Vöcklabruck entsteht mit dem SCHÖN | DORF | BLICK ein modernes Neubauprojekt, das Wohnkomfort, Funktionalität und Lebensqualität perfekt vereint. Zwei stilvolle Baukörper beherbergen insgesamt 31 Eigentumswohnungen mit Wohnflächen zwischen 37 und 116 m² sowie drei attraktive Gewerbeeinheiten mit 88 bis 108 m² Nutzfläche. Durchdacht geplant, hochwertig ausgestattet und in ruhiger, zugleich zentraler Lage, bietet SCHÖN | DORF | BLICK den idealen Ort zum Leben und Arbeiten. Das Projekt umfasst zwei Gebäude mit klarer, zeitloser Architektur, eine großzügige Tiefgarage mit 35 Stellplätzen sowie sechs zusätzliche Freistellplätze. Der Bau hat bereits begonnen, die Fertigstellung ist für Sommer 2027 vorgesehen. Während die Wohnungen schlüsselfertig übergeben werden, werden die Gewerbeeinheiten im hochwertigen Edelrohbau ausgeführt - optimal für individuelle Gestaltungsmöglichkeiten. Attraktives
Geschäftslokal in Top-Lage von Vöcklabruck - direkt an der Linzer
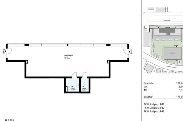
Bundesstraße. In hochfrequentierter Lage direkt an der Linzer Bundesstraße entsteht ein modernes Geschäftslokal im Erdgeschoss mit rund 109 m² Nutzfläche. Die prominente Lage bietet beste Sichtbarkeit und hohe Werbewirksamkeit - ideal für Handels- und Dienstleistungsbetriebe, die von einer starken Kundenfrequenz profitieren möchten. Die Fläche wird im Edelrohbau ausgeführt und bietet dadurch maximale Flexibilität für individuelle Raum- und Konzeptgestaltung. Große Schaufensterflächen schaffen optimale Präsentationsmöglichkeiten und setzen Ihr Geschäft perfekt in Szene. Kundenparkplätze direkt vor dem Gebäude sorgen für eine komfortable Erreichbarkeit Gewerbe Top G1 / EG Nutzfläche: ca. 109 m² Ausführung: Edelrohbau 1 Kellerabteil 1 Garagenstellplatz P08 2 KFZ Freistellplätze P40+P41 Gewerbe Top G1 € 333.644,86 Garagenstellplatz P08 € 27.102,80 KFZ Freistellplätze P40+P41 € 18.691,59 Gesamtkaufpreis € 379.439,25 Der Erwerb der KFZ Stellplätze ist verpflichtend. Die Kaufpreise verstehen sich als Nettopreise zzgl. 20 % USt. Beim Neubauprojekt SCHÖN | DORF | BLICK investieren Sie in eine wertstabile, zukunftssichere Immobilie in einer prosperierenden Region Oberösterreichs. Ob zur Eigennutzung oder als Kapitalanlage - das Projekt steht für nachhaltiges Wohneigentum in gefragter Lage. Die attraktive Kombination aus Lage, Bauqualität und moderner Architektur garantiert langfristige Wertentwicklung und stabile Renditechancen. Dank der starken Nachfrage nach Wohn- und Gewerbeflächen in Vöcklabruck profitieren Anleger und Eigennutzer gleichermaßen - zusätzlich bietet die Immobilie Schutz vor Inflation durch ihren soliden Sachwertcharakter. Bei Interesse freuen wir uns auf Ihre Anfrage. Ihr SPERER Immobilien Team Stefan Pichler | [Tel] | [Email] Wir weisen darauf hin, dass zwischen dem Vermittler und dem zu vermittelnden Dritten ein familiäres oder wirtschaftliches Naheverhältnis besteht. Der Vermittler ist als Doppelmakler tätig. Lage: Die Bezirkshauptstadt Vöcklabruck vereint die Vorzüge einer modernen Stadt mit der Ruhe und Natur des Salzkammerguts und bietet als wirtschaftlich starke Bezirksstadt alles, was modernes Leben ausmacht! Einkaufsmöglichkeiten, Schulen, Kindergärten, Ärzte und Freizeitangebote befinden sich in unmittelbarer Nähe. Die Dr.-Anton-Bruckner-Straße punktet durch ihre zentrale Lage - hier profitieren Sie von bester Erreichbarkeit und hoher Lebensqualität. Dank der Nähe zur A1 Westautobahn, dem Bahnhof Vöcklabruck sowie zur Vöckla-Au genießen Bewohner eine perfekte Balance aus Mobilität, Natur und urbanem Komfort.... [Mehr]