Beschreibung
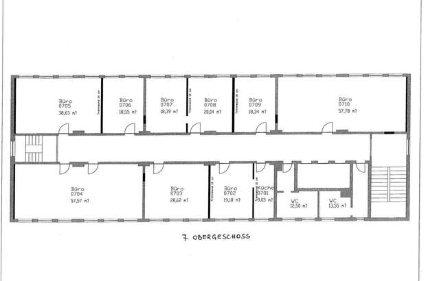
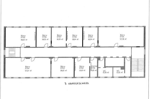
Willkommen in Ihrer neuen Bürofläche im Herzen von Linz, Oberösterreich! Diese beeindruckende Immobilie befindet sich in der 7. Etage eines modernen Gebäudes und bietet Ihnen eine großzügige Fläche von 380 m², die ideal für Ihre geschäftlichen Bedürfnisse geeignet ist. Mit einer monatlichen Miete von 6.924,00 € investieren Sie in einen Standort, der nicht nur durch seine Lage besticht, sondern auch durch seine vielseitigen Nutzungsmöglichkeiten. Ob als Büro oder als Praxis - hier finden Sie den perfekten Raum, um Ihre Ideen zu verwirklichen und Ihr Unternehmen zum Blühen zu bringen. Die großzügige Bürofläche überzeugt durch ihre durchdachte Raumaufteilung und das helle, einladende Ambiente. Eine hochwertige Einbauküche steht Ihnen zur Verfügung, sodass Sie in Ihrer Pause oder bei Meetings kulinarische Köstlichkeiten genießen können. Der Personenaufzug sorgt für einen bequemen Zugang zu Ihrer Etage und ermöglicht einen reibungslosen Ablauf - sowohl für Sie als auch für Ihre Kunden. Die Verkehrsanbindung
könnte nicht besser sein: Sie erreichen die öffentlichen Verkehrsmittel mühelos, sei es mit dem Bus oder zu Fuß zum Bahnhof, und auch der Autobahnanschluss ist in unmittelbarer Nähe. Dies gewährleistet sowohl Ihren Mitarbeitern als auch Ihren Kunden eine einfache Anreise und besten Zugang zu Ihrer Immobilie. Die Umgebung bietet Ihnen alles, was Sie für den Arbeitsalltag benötigen. In der Nähe finden Sie einen Kindergarten, Schulen, einen Supermarkt und eine Bäckerei. So ist nicht nur für Ihre Verpflegung gesorgt, sondern auch für die Bedürfnisse Ihrer Mitarbeiter - die ideale Voraussetzung für eine angenehme und produktive Arbeitsatmosphäre. Nutzen Sie die Möglichkeit, in einer der besten Lagen von Linz zu arbeiten! Diese Büro- oder Praxisfläche ist eine Rarität und wird nicht lange auf sich warten lassen. Überzeugen Sie sich selbst von den Vorzügen dieser Immobilie und vereinbaren Sie noch heute einen Besichtigungstermin. Lassen Sie uns gemeinsam Ihre Visionen verwirklichen und den nächsten Schritt in Ihrem geschäftlichen Erfolg gehen! Wir weisen darauf hin, dass zwischen dem Vermittler und dem zu vermittelnden Dritten ein familiäres oder wirtschaftliches Naheverhältnis besteht. Der Vermittler ist als Doppelmakler tätig. Lage: Gewerbegebiet, Toplage, Ebene Lage, Gute Verkehrslage... [Mehr]