Beschreibung
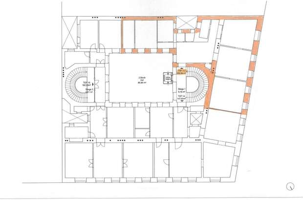
Das Objekt ist bis Ende November vermietet, daher bitten wir ums Verständnis, dass vorab nur der Grundriss online gestellt ist. Diese im 2. Liftstock befindlichen 165 m² Büroräumlichkeiten nahe dem Burggarten vereinen klassische Altbau-Elemente mit einem repräsentativen Ambiente. Der ansprechende Eingangsbereich bietet bereits beim Betreten ein stilvolles und professionelles Erscheinungsbild. Je nach Nutzung kann der Mieter die Büroräumlichkeiten nach eigenem Geschmack auszumalen. Erwähnenswert: - großzügige Raumaufteilung - Teeküche - Serverraum - Repräsentatives Gebäude mit gepflegtem Stiegenhaus - Ruhige, aber zentrale Lage beim Burggarten Lage: Die Bürofläche befindet sich in der Elisabethstraße/Ecke Eschenbachgasse - unmittelbar beim Robert-Stolz-Park. Die beliebte Mariahilfer Straße ist nur wenige Schritte entfernt und lädt zu entspannten Mittagspausen oder After-Work-Besorgungen ein. Gleichzeitig erreichen Sie in nur wenigen Gehminuten den 1. Bezirk, das historische Zentrum Wiens
- ob zum Volkstheater, zur Kärntner Straße oder zu einer der vielen charmanten Gassen rund um die Hofburg. Diese zentrale Lage macht das Objekt besonders attraktiv für Unternehmen. Wir weisen darauf hin, dass zwischen dem Vermittler und dem zu vermittelnden Dritten ein familiäres oder wirtschaftliches Naheverhältnis besteht. Der Vermittler ist als Doppelmakler tätig.... [Mehr]