Beschreibung
MEHRERE, SCHLÜSSELFERTIGE DACHGESCHOSS-
WOHNUNGEN IN UNTERSCHIEDLICHEN PREISKATEGORIEN Sehr individuell und modern gestaltete Dachwohnungen mit Lift und Terrassen, welche aktuell fertiggestellt werden und im Frühjahr 2026 bezugsfertig sein werden. Im Jahr 2022 wurden im Dachgeschoss eines Jahrhundertwende-Hauses (erbaut um 1900) insgesamt 5 großzügige Einheiten genehmigt, von denen derzeit noch 4 Varianten zum
Verkauf stehen. Die
Wohnungen reichen von einer praktikabel gestalteten Garconniere, bis hin zu großzügigen Maisonette
Wohnungen, einladend durch großzügige offene Wohnbereiche mit hervorragendem Lichteinfall, die für ein extravagantes Wohnklima sorgen. Ein zusätzlicher Galeriebereich mit Terrassenzugang bietet sich als Ruhe- oder Homeoffice-Bereich erweiternd an. TECHNISCHE AUSSTATTUNG: *Deckenkühlung und Fußbodenheizung über eine effiziente Wärmepumpe betrieben. *Eingangstüre der Sicherheitsklasse WK3, mit einer komfortablen Durchgangshöhe von 210cm wie auch die Wohnraumtüren. *Österreichische
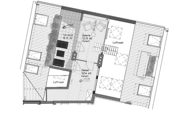
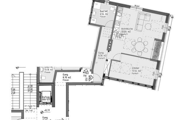
Qualitätsfenster der Fa. Katzbeck in hochwertiger Holz-Alu Konstruktion mit elektrischer Außenbeschattung. Velux Dachflächenfenster ebenso elektrisch zu beschatten. BELÄGE: (In der angebotenen schlüsselfertigen Variante) *Böden mit Klebeparkettdielen und Feinsteinzeug im gehobenen Standard *Sanitär- und Elektroausstattung durchwegs in Markenqualität. *Terrassen mit rutschfesten und frostsicheren Steinplatten belegt. WOHNUNG 2 (Top 10; Maisonette) Wohnfläche: ca.115m² Kaufpreis: EUR 555.000,- UNTERE EBENE: Zugang vom Lift, Vorzimmer mit separatem WC, zentrale Diele, Abstellraum, ein 42m² Wohnbereich mit offener Küche (Anschlüsse vorbereitet), nahe dem Essbereich befindet sich ein großzügiger Außen-Pflanzentrog für Küchenkräuter, Bad mit Badewanne, Dusche, Doppelwaschbecken und WC, 3 weitere Schlafzimmer. OBERE EBENE: Aufgang über eine Innentreppe zur geräumigen offenen Galerie mit einem kleinen Abstellraum und Zugang zur ca. 10,50m² Westterrasse, welche einem Bereich zur Begrünung bietet. MONATLICHE KOSTEN: BETRIEBSKOSTEN inklusive Mwst, Parkplatz und Lift: ca. EUR 212,56 REPARATUR-RÜCKLAGE: ca. EUR 122,44 GESAMT: ca. EUR 335,- (zuzüglich Energiekosten) WOHNUNG 3 (Top 11) Wohnfläche: ca. 45,25m² (Optionaler ca. 5,40m² Balkon mit Aufpreis möglich) Kaufpreis: EUR 225.000,- RAUMAUFTEILUNG: Zugang vom Lift, Vorzimmer, Bade... [Mehr]