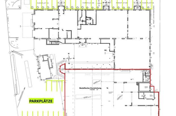
Gewerbefläche Steyr

4400 Steyr / 1125m²

#Halle #Parkmöglichkeit

Beschreibung

Die Mieteinheit ist eventuell teilbar für sämtliche Gewerke wie Gastronomie, Verkauf, Lebensmittel, Sport, Unterhaltung. Es sind Parkplätze zugehörig. Hauptdaten Objekt Gewerbeobjekt Stockwerk Erdgeschoss Ort 4400 Steyr Nutzfläche gesamt ca. 1.125 m² Parkmöglichkeit Parkplätze zugehörig Raumaufteilung MIETEINHEIT Gewerbehalle Küche Kühlraum Bar Sitzbereiche WC Außenanlagen PKW-Stellplätze Finanzen - Kosten Miete exkl. Betriebskosten: € 12,00/m² (exkl. USt) / Monat Vermittlungsprovision Der guten Ordnung halber bemerken wir, dass eine Vermittlungsprovision nur im Falle einer Mieteinigung zu zahlen ist und verweisen auf das Merkblatt § 30 b Konsumentenschutzgesetz. Wir danken für Ihr Interesse und nehmen uns gerne für Sie Zeit! Lage: Das Objekt befindet sich in Steyr, ca. 4,5 Kilometer vom Stadtplatz Steyr entfernt. Es handelt sich um eine gute zentrale Lage. Bushaltestelle ca. 200 m entfernt Bahnhof Steyr ca. 3 Kilometer entfernt Autobahnauffahrt A1 ca. 20 Kilometer entfernt