Beschreibung
Zum
Verkauf gelangt eine sanierungsbedürftige
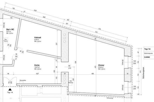
Wohnung in einem klassischen Altbau. Die
Wohnung befindet sich im 2. Stock; die Fenster sind in die Bräuhausgasse und teilw. in den Innenhof gerichtet. Einen Lift gibt es in der Liegenschaft keinen. Ein unverbindlicher Umbauvorschlag kann gerne übermittelt bzw. bei der Besichtigung besprochen werden. Gerne stehe Ich, Pohn Christian, Ihnen unter der Telefonnummer [Tel] bzw. unter [Email] jederzeit für Fragen und Besichtigungen zur Verfügung. Weitere Objekte können Sie gerne auf unserer Homepage www.mercatoimmobilien.at ansehen. Wir weisen auf ein wirtschaftliches Naheverhältnis sowie die Tätigkeit als Doppelmakler hin! Obige Angaben basieren auf Informationen und Unterlagen des Eigentümers. Der guten Ordnung halber möchten wir festhalten, dass im Falle eines Abschlusses mit Ihnen oder einem von Ihnen namhaft gemachten Dritten unser Honorar (lt. Honorarverordnung für Immobilienmakler, BGBl. 262 und 297/1996) der gesetzlichen Mwst. beträgt. Eine
Weitergabe der von uns übermittelten vertraulichen Daten an Dritte ist nicht gestattet. Sämtliche Nebenkosten sind vom Käufer zu tragen. Der Maklervertrag kommt durch Inanspruchnahme unserer Tätigkeit oder eine schriftliche Vereinbarung zustande. Sollten Sie ein von uns nachgewiesenes Objekt bereits kennen, teilen Sie uns dies bitte umgehend mit. Es gelten unsere allgemeinen Geschäftsbedingungen. Irrtum vorbehalten. Wir weisen darauf hin, dass zwischen dem Vermittler und dem zu vermittelnden Dritten ein familiäres oder wirtschaftliches Naheverhältnis besteht. Der Vermittler ist als Doppelmakler tätig. Infrastruktur / Entfernungen Gesundheit Arzt <500m Apotheke <500m Klinik <500m Krankenhaus <1.000m Kinder & Schulen Schule <500m Kindergarten <500m Universität <1.000m Höhere Schule <1.000m Nahversorgung Supermarkt <500m Bäckerei <500m Einkaufszentrum <1.500m Sonstige Geldautomat <500m Bank <500m Post <500m Polizei <1.000m Verkehr Bus <500m U-Bahn <500m Straßenbahn <500m Bahnhof <500m... [Mehr]