Beschreibung
Schöner Wohnen im Herzen von Tragwein Im Zentrum von Tragwein erwartet Sie das fertiggestellte Wohnbauprojekt "Tragwein Central" mit insgesamt 10 frei finanzierten
Eigentumswohnungen in attraktiver, ruhiger Lage. Die Gemeinde im unteren Mühlviertel überzeugt durch hohe Lebensqualität, beste Infrastruktur und die ideale Anbindung an Linz und Freistadt . Die 2- bis 4-Zimmer-
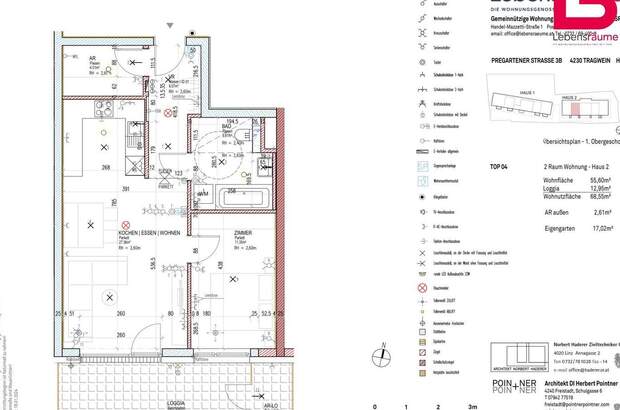
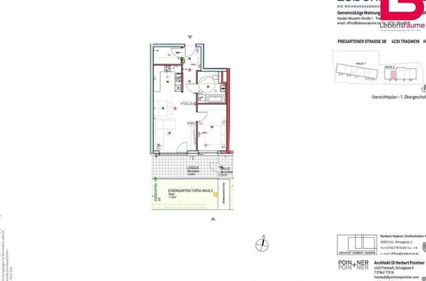
Wohnungen begeistern mit durchdachten Grundrissen , lichtdurchfluteten Räumen und hochwertiger Ausstattung . Ob Single, Paar oder Familie - hier finden Sie Ihr neues Zuhause mit Wohlfühlgarantie! Wohnungsgrößen: 2 Zimmer | ca. 65-71 m² 3 Zimmer | ca. 79-96 m² 4 Zimmer | ca. 100-102 m² Alle
Wohnungen verfügen über Balkon, Terrasse oder Garten , eine offene Wohnküche sowie ein modernes Badezimmer . Ein Kellerabteil , Tiefgaragenstellplatz und ein zusätzlicher Freistellplatz sind jeder
Wohnung zugeordnet. Ausstattung: Hochwertige Parkett- und Fliesenböden Energieeffiziente Heizsysteme Elektrische Raffstore Barrierefreie Zugänge
Nachhaltige Bauweise Lage: Nur wenige Gehminuten zum Ortskern mit Einkaufsmöglichkeiten, Ärzten, Schulen und öffentlicher Verkehrsanbindung. Die idyllische Umgebung bietet zahlreiche Freizeitmöglichkeiten - ideal für Familien und Naturliebhaber. Jetzt bezugsfertige Eigentumswohnung sichern! Wir freuen uns auf Ihre Anfrage und beraten Sie gerne persönlich. (Die gezeigten Bilder enthalten KI-unterstützt eingerichtete Visualisierungen und dienen zur besseren Vorstellung der Raumaufteilung. Die Wohnungen werden unmöbliert übergeben). Top 4 - Higlights: hofseitige Terrasse mit Eigengarten Abstellraum und Wasseranschluss auf der Terrasse Badewanne kontrollierte Wohnraumlüftung Fernwärme in Kombination mit Fußbodenheizung... [Mehr]