Beschreibung
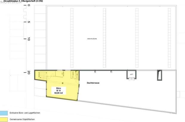
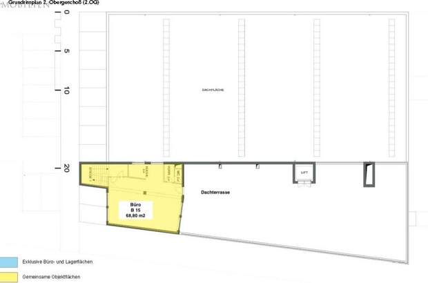
Das Businesscenter Grothusen in 1140 Wien bietet seinen Mietern und Besuchern alles, was für die tägliche Arbeit erforderlich ist und noch vieles mehr. In Grünlage mit optimaler Nähe zur Stadt und perfekter Infrastruktur zählt der Standort zu den beliebtesten im Westen Wiens. Das Auhof-Center befindet sich vis-à-vis. Zurzeit bieten wir Ihnen eine 68,8 m² große Bürofläche im Dachgeschoss des Business Centers Grothusen mit zusätzlich 40 m² Terrasse an. Falls gewünscht, können wir Ihnen gegen Aufpreis zusätzliche Lagerflächen und/ oder Parkplätze zur Verfügung stellen. In den Betriebskosten sind die Kosten für den Stromverbrauch des Büros, die Heizung, Kühlung, sowie die laufenden allgemeinen Betriebskosten des Gebäudes inkludiert. Die Liegenschaft befindet sich in Wien Auhof, in der Albert-Schweitzer-Gasse Ecke Scheringgasse, in unmittelbarer Nähe zur A1-Autobahnausfahrt Auhof. Insgesamt liegt das Businesscenter in einem modernen und an Bedeutung gewinnenden Gewerbegebiet mit Einkaufszentrum,
Kinocenter, Gastronomie und vielem mehr. Lifestyle und Business verbinden sich hier zu einer verführerischen Melange. Für Besichtigungen und weitere Informationen stehen wir Ihnen gerne zur Verfügung. Herr Walchhofer Tel: [Tel] E-Mail: [Email] Wir weisen darauf hin, dass zwischen dem Vermittler und dem zu vermittelnden Dritten ein familiäres oder wirtschaftliches Naheverhältnis besteht. Der Vermittler ist als Doppelmakler tätig. Infrastruktur / Entfernungen Gesundheit Arzt <2.000m Apotheke <500m Klinik <5.000m Krankenhaus <3.500m Kinder & Schulen Schule <500m Kindergarten <500m Universität <2.000m Höhere Schule <7.500m Nahversorgung Supermarkt <500m Bäckerei <500m Einkaufszentrum <500m Sonstige Geldautomat <500m Bank <500m Post <500m Polizei <500m Verkehr Bus <500m Straßenbahn <3.000m U-Bahn <3.000m Bahnhof <500m Autobahnanschluss <500m Angaben Entfernung Luftlinie / Quelle: Open Street Map Lage: Diese attraktiven Büros im 14. Wiener Bezirk bestechen durch eine hervorragende Lage in unmittelbarer Nähe zum Aufhof Center. Die Umgebung bietet eine ideale Infrastruktur mit zahlreichen Annehmlichkeiten wie Apotheke, Kindergarten und Supermarkt. Auch Bäckereien, Banken, Post, Polizei sowie öffentliche Verkehrsanbindungen wie Bus und Bahnhof sind fußläufig erreichbar. Der schnelle Zugang zur Autobahn rundet das umfassende Angebot ab. Konsumenteninformation: Seit 13. Juni 2014 können wir Ihnen die genaue Adresse, Unterlagen und Informationen aufgrund neuer EU-Verbraucherrechte erst dann zusenden, wenn Sie auf das von uns auf Ihre Anfrage hin versandteMail vorab durch Setzen der geforderten Haken bestätigen, dass Sie unser sofortiges Tätigwerden wünschen und über Ihre Rücktrittsrechte aufgeklärt wurden, und es wird auf die Verpflichtung der Zahlung unserer Provision NUR BEI ABSCHLUSS DES IMMOBILIENGESCHÄFTS (= Kaufangebot vom Verkäufer angenommen) hingewiesen. Wir bedauern das für manche unverständliche und etwas komplizierte Procedere, dürfen aber nochmals darauf hinweisen, dass selbstverständlich unsere Leistung bis zu einem eventuellen tatsächlichen Kauf für Sie unverbindlich und kostenlos ist. Für Fragen dazu kontaktieren Sie uns gerne. Interessenten übermitteln wir dann auf Wunsch gerne weitere, objektspezifische Unterlagen. Bei Abschluss eines Kaufvertrages fallen zusätzliche Kosten an . Details entnehmen Sie bitte der Nebenkostenübersicht. Im Falle eines Abschlusses mit Ihnen oder einem von Ihnen namhaft gemachten Dritten beträgt unser Honorar (lt. Honorarverordnung für Immobilienmakler, BGBI. 262 und 297/1996) 3 % des Kaufpreises zzgl. der gesetzlichen Umsatzsteuer, insgesamt daher 3,6%. NEU Gebührenbefreiung beim Immobilienkauf: Seit 1. April 2024 können Käufer: innen von Immobilien bis zu einer Bemessungsgrundlage von 500.000 Euro (pro Person) von Grundbuchseintragungsgebühren für das Eigentumsrecht und für das Pfandrecht (1,1% des Kaufpreises bzw. 1,2% des Pfandrechtswerts) befreit werden. Übersteigt die Bemessungsgrundlage 500.000 Euro, unterliegt nur der übersteigende Teil der Eintragungsgebühr. Ab einer Bemessungsgrundlage von 2 Millionen Euro entfällt jedoch die Gebührenbefreiung zur Gänze. Anträge für die Eintragung im Grundbuch müssen zwischen dem 1. Juli 2024 und dem 30. Juni 2026 gestellt werden. Die Befreiung erfordert sowohl die Anmeldung des Hauptwohnsitzes in der erworbenen Immobilie als auch die Aufgabe der Wohnrechte an der bisherigen Wohnung. Bei kreditfinanzierten Käufen muss mehr als 90 % des Kredits für den Erwerb oder die Sanierung der Immobilie verwendet werden. Das erworbene Eigenheim muss für fünf Jahre bezogen werden; wird es vorher verkauft oder als Hauptwohnsitz aufgegeben, wird die Gebühr nacherhoben. Datenschutzinformation für Interessenten und Kunden: Die seit 25. Mai 2018 in Kraft getretene Datenschutzgrundverordnung dient zur Wahrung Ihrer Privatsphäre, welche für uns einen besonders hohen Stellenwert einnimmt. Der Schutz von personenbezogenen Daten ist uns wichtig und auch gesetzlich gefordert. Die Verarbeitung Ihrer personenbezogenen Daten erfolgt nach den datenschutzrechtlichen Bestimmungen - siehe auch unsere Webseite www.kokron-immobilien.at . Datenschutzinformation für Interessenten und Kunden: Die seit 25. Mai 2018 in Kraft getretene Datenschutzgrundverordnung dient zur Wahrung Ihrer Privatsphäre, welche für uns einen besonders hohen Stellenwert einnimmt. Der Schutz von personenbezogenen Daten ist uns wichtig und auch gesetzlich gefordert. Die Verarbeitung Ihrer personenbezogenen Daten erfolgt nach den datenschutzrechtlichen Bestimmungen - siehe auch unsere Webseite www.kokron-immobilien.at.... [Mehr]