Beschreibung
Die Gewerbeliegenschaft liegt direkt an der stark frequentierten Triester Straße, ist optimal angebunden und eignet sich daher ideal als Firmenniederlassung. Eine ideale Werbemöglichkeit sowie Sichtbarkeit ist durch die straßenseitige Lage gegeben. Diese multifunktionale Liegenschaft befindet sich auf einem
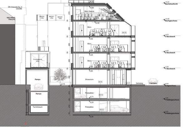
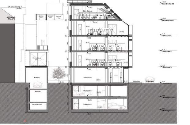
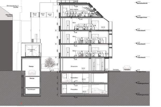
Grundstück welches zurzeit lediglich als Parkplatz genutzt wird. Aufgrund der geltenden Bebauungsbestimmungen kann diese Betriebsliegenschaft sehr vielseitig genutzt werden. Laut einer vorhandenen Bebauungsstudie ( das Projekt ist bereits baugenehmigt aber noch nicht rechtskräftig), kann jedenfalls von einer erzielbaren Nutzfläche, aufgeteilt auf vier Geschosse von insgesamt ca. 3.842,53 m² ausgegangen werden. Zudem können bis zu 34 Tiefgaragenstellplätze sowie insgesamt ca. 183,39 m² im UG realisiert werden. Lage Die Liegenschaft ist verkehrstechnisch ideal über die Triester Hauptstraße, mit der Badner Bahn sowie der Buslinie 64A erreichbar. In der Umgebung befinden sich bereits renommierte
Gewerbe- und Industriebetriebe. Der angeführte Kaufpreis gilt für das Gewerbegrundstück. Das visualisierte Gebäude dient der Veranschaulichung der baulichen Möglichkeiten unter Berücksichtigung des vorgegebenen Flächenwidmungs - und Bebauungsplans. Öffentliche Verkehrsanbindung Badner Bahn Bus: 64A Infrastruktur / Entfernungen Gesundheit Arzt <500m Apotheke <1.000m Klinik <2.000m Krankenhaus <2.000m Kinder & Schulen Schule <1.000m Kindergarten <500m Universität <5.000m Höhere Schule <4.500m Nahversorgung Supermarkt <500m Bäckerei <2.000m Einkaufszentrum <1.000m Sonstige Geldautomat <1.000m Bank <2.000m Post <1.500m Polizei <1.500m Verkehr Bus <500m U-Bahn <1.000m Straßenbahn <2.500m Bahnhof <500m Autobahnanschluss <1.000m Angaben Entfernung Luftlinie / Quelle: Open Street Map... [Mehr]