Beschreibung
Eckdaten zur
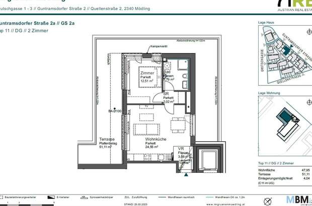
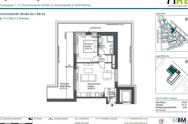
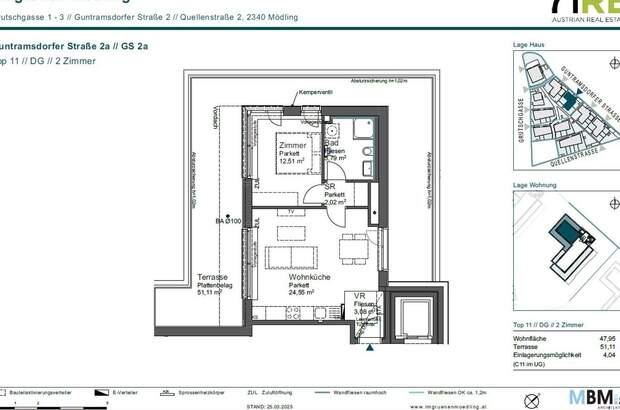
Wohnung Top C.11 > Wohnnutzfläche ca. 47,95 m² > Terrasse mit ca. 51,11 m² > Wohnküche, Zimmer, Schrankraum/Abstellnische, Bad/WC, Vorraum > Parkplätze in der Tiefgarage verfügbar - Preis normale Stellplatzgröße je € 25.000 > Ausrichtung Osten/Süden/Westen Am Grundstück zwischen der Grutschgasse 1-3, der Quellenstraße 2 und der Guntramsdorfer Straße 2 entsteht eine Wohnhausanlage mit zehn 3- bis 4-stöckigen, modernen Baukörpern. Insgesamt werden 116
Wohnungen und 2 Praxisräumlichkeiten errichtet, außerdem eine eingeschossige Tiefgarage mit insgesamt 177 Stellplätzen. Die Bauweise ist ein Ziegelmassivbau aus Mauerwerksziegel mit integriertem Dämmstoff , wo erforderlich kombiniert mit Beton. Die Kombination aus Geothermie und Fernwärme sowie Photovoltaik sorgt für die Versorgung mit sauberer Energie und Wärme. Außerdem sind alle
Wohnungen sowie die gesamte Wohnhausanlage vollständig barrierefrei zugänglich. Mehrere Kinderspielplätze und Freibereichszonen sind im Baukonzept berücksichtigt
und sorgen für eine gute Aufenthaltsqualität. Die 1-5-Zimmer-Wohneinheiten verfügen außerdem über vielfältige Freibereiche in Form von Gärten, Balkonen und Terrassen . Das Projekt zeichnet sich durch ein starkes Umweltbewusstsein aus und setzt auf nachhaltige und umweltfreundliche Materialien, das Projekt ist mit dem klimaaktiv-Siegel in SILBER vorzertifiziert! Die Fertigstellung ist mit Ende 2026 zu erwarten. Alle verfügbaren Wohnungen: https://imgruenenmoedling.at/ Lage Im Grünen Mödling trifft das Beste aus allen Welten zusammen: Eine hervorragende Infrastruktur vor Ort bietet alles, was Sie für den Alltag benötigen. Der angrenzende Wienerwald bietet Erholung, Kulinarik, Kultur und Natur in Hülle und Fülle. Und dank einer ausgezeichneten Anbindung und der Nähe zu Bahnhof und Autobahn ist die Bundeshauptstadt Wien nur ca. 45 Minuten entfernt. Die Innenstadt Mödling ist von der Anlage in 5-10 Minuten mit Rad, Auto oder Bus bzw. in 10-15 Minuten zu Fuß erreichbar. Als ehemaliger Sitz der Babenberger erwartet Sie in Mödling ein spannendes Angebot an Kultur, Unterhaltung und lokaler Geschichte . Entlang der Mödlinger Hauptstraße finden Sie außerdem Nahversorger, Fachärzte, Drogerien, Bäcker, Restaurants, Bekleidungsgeschäfte, Fitnessstudios, Banken, Cafés, Museen und vieles mehr. Sonstiges Es gibt direkt auf der Baustelle einen Bemusterungs-Container, wo man die Standardausstattung (Parkett, Fliesen, Sanitär) anschauen kann. Zur Vereinbarung eines Termins vor Ort bitte einfach bei mir melden - [Email] oder [Tel] .... [Mehr]