Beschreibung
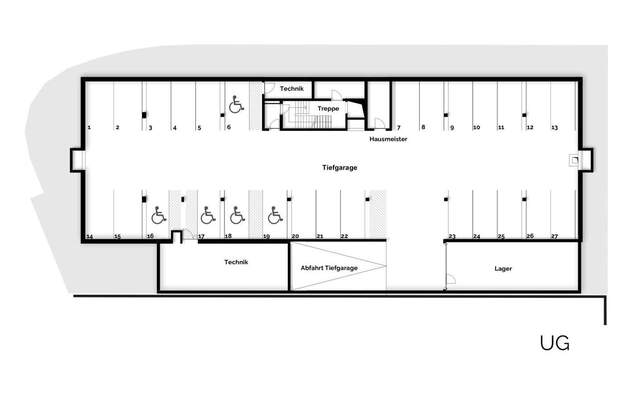
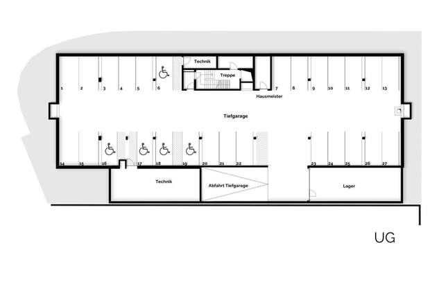
LIGHTHOUSE BUSINESS PARK ist das Ergebnis der gemeinsamen Bemühungen und Visionen einer Vielzahl von Beteiligten. Ein Schlüsselelement ist unsere Philosophie der Nachhaltigkeit. Daher haben wir versucht den ökologischen Fußabdruck des Gebäudes auf ein Minimum zu reduzieren. Die gewählte Materialkombination aus 1/4 Beton und 3/4 Holz gepaart mit dem effizientesten Heiz- und Kühlsystem, welches die Energie unseres Grundwassers nutzt, bildet die Basis unserer Vision von Nachhhaltigkeit. NACHHALTIG Niedrigenergiestandard mit Grundwassernutzung für Heizung- und Kühlung sorgen für ein unschlagbares Raumklima und zu niedrigstmöglichen Betriebskosten. MOBILITÄT Das Gebäude verfügt selbstverständlich über Freistell- und Tiefgaragenabstellplätze sowie einer zusätzlichen LKW-Laderampe. Wir weisen darauf hin, dass zwischen dem Vermittler und dem zu vermittelnden Dritten ein familiäres oder wirtschaftliches Naheverhältnis besteht. Der Vermittler ist als Doppelmakler tätig. Lage: - Beste Lage im Gewerbegebiet
Stublerfeld / Vomperbach Terfens - Tiefgarage mit Stellplätzen für Ihre Kunden und Mitarbeiter direkt im Haus (Abstellplätze sind separat anmietbar) - Ausgezeichnete Anbindung an den öffentlichen Verkehr (Bahnhof, Bus) - Direkter Autobahnanschluss Nutzfläche: flexibel von 10 bis 150m2 Verfügbarkeit: ab sofort Mietpreis: auf Anfrage - abhängig von der angemieteten Fläche Keine Maklergebühr!... [Mehr]