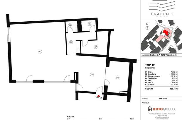
Projekt Graben 2 - Hochwertige Gewerbeflächen in Vöcklabruck Im Zentrum von Vöcklabruck bieten wir erstklassige Gewerbeflächen in einem modernen Neubauprojekt. Das gesamte Erdgeschoss ist flexibel nutzbar und eignet sich ideal für Rechtsanwälte, Versicherungen, Steuerberater oder andere Dienstleistungsunternehmen , die Wert auf eine repräsentative Lage legen. Exklusives Wohnen & Innovatives Arbeiten Arbeiten und Leben in perfekter Harmonie - das Projekt Graben 2 bietet Ihnen nicht nur hochwertige Büroflächen , sondern auch exklusive Wohneinheiten . Die sechs erstklassigen Büroeinheiten sind ideal für Unternehmen, die eine inspirierende Arbeitsumgebung mit hochwertigem Wohnraum kombinieren möchten. Ihre Vorteile: Flexible Flächen von 66,05 m² bis 418,57 m² Prestigeträchtige Lage mit hoher Frequenz und guter Sichtbarkeit Hochwertige Ausstattung für anspruchsvolle Gewerbenutzer Optimale Erreichbarkeit mit guter Anbindung und Parkmöglichkeiten Repräsentative Architektur mit modernen, hellen und stilvollen Büroflächen Flexible Raumgestaltung mit anpassbaren Konzepten für Einzel- oder Gemeinschaftsbüros Geringe Betriebskosten durch energieeffiziente Gebäudetechnik Sicherheit & Komfort durch moderne Zutrittskontrollen und intelligente Gebäudesteuerung Perfekte Balance zwischen Arbeits- und Wohnbereich, ideal für Unternehmer und Selbstständige Moderne Architektur trifft auf Funktionalität Das architektonische Konzept des Projekts verbindet Ästhetik mit Funktionalität. Große Fensterflächen sorgen für eine lichtdurchflutete Arbeitsatmosphäre, während hochwertige Materialien und moderne Ausstattung ein repräsentatives Umfeld schaffen. Die Büroflächen lassen sich flexibel an individuelle Bedürfnisse anpassen, sodass sowohl Einzelbüros als auch offene Arbeitsbereiche realisiert werden können. Die Gewerbeflächen bieten optimale Bedingungen für Unternehmen, die Wert auf eine hochwertige Adresse , eine moderne Infrastruktur und eine strategisch günstige Lage legen. Die unmittelbare Nähe zu wichtigen Verkehrsanbindungen und die zentrale Position in Vöcklabruck gewährleisten eine exzellente Erreichbarkeit für Kunden und Mitarbeiter. Jetzt informieren und Ihre Gewerbefläche sichern Nutzen Sie die Möglichkeit, sich frühzeitig eine Gewerbefläche in diesem zukunftsweisenden Neubauprojekt zu sichern. Die offene Flächengestaltung ermöglicht individuelle Nutzungskonzepte, die exakt auf Ihre Anforderungen zugeschnitten sind. Profitieren Sie von einer erstklassigen Geschäftsadresse , einer repräsentativen Arbeitsumgebung und einer nachhaltigen Infrastruktur in einem der dynamischsten Wirtschaftsstandorte der Region. Kontaktieren Sie uns für eine persönliche Beratung und sichern Sie sich Ihre Fläche in bester Lage. Sie sind interessiert und möchten mehr über diese Büroräumlichkeit erfahren? Kontaktieren Sie uns jederzeit telefonisch, per E-Mail oder persönlich in unserem Büro für eine unverbindliche Besichtigung. Wir freuen uns auf Sie! Wir weisen darauf hin, dass alle Angaben in diesem Exposé nach bestem Wissen und Gewissen erstellt wurden und wir keine Haftung auf Schreibfehler & Irrtümer übernehmen werden. Eine Weitergabe dieses Angebotes an Dritte ohne ausdrückliche Genehmigung verpflichtet zu Schadenersatz. Haftungsausschluss für 3D-Visualisierung Unser Angebot enthält Bilder einer 3D-Visualisierung von einem Dritten. IMMOVENCE GmbH übernimmt keinerlei Gewähr für die Korrektheit, Aktualität oder Qualität der bereitgestellten Bilder. Diese Bilder wurden ausschließlich dafür erstellt, um die Vorstellungskraft und Kreativität unserer Kunden zu unterstützen. Auf ein allfälliges wirtschaftliches oder familiäres Näheverhältnis wird hingewiesen. Qualität bringt Sie ins Rennen. Service jedoch, bringt Sie zum Erfolg. Verleihen Sie Ihrer Immobilie den Glanz, den sie verdient, und verkaufen Sie mit überzeugender Präsentation. Unter der Nummer [Tel] erfahren Sie, wie wir Ihr Zuhause in ein begehrtes Highlight auf dem Markt verwandeln können. Jetzt anrufen und den ersten Schritt zum erfolgreichen Immobilienverkauf machen! Wir weisen darauf hin, dass zwischen dem Vermittler und dem zu vermittelnden Dritten ein familiäres oder wirtschaftliches Naheverhältnis besteht. Der Vermittler ist als Doppelmakler tätig. Lage: Der neue Eigentümer dieser Top-Adresse profitiert von der zentralen und repräsentativen Lage in der Vöcklabrucker Innenstadt und dem Renommee eines städtebaulich überzeugenden Immobilienprojektes. Die hervorragende Infrastruktur ermöglicht nicht nur Ihnen und Ihren Mitarbeitern eine schnelle und einfache tägliche Anreise, sondern wirkt auch anziehend und attraktiv auf Ihre Kunden. Selbst aus den Städten Salzburg oder Linz, zwischen denen Vöcklabruck strategisch günstig liegt, sind Sie mit dem Auto oder öffentlichen Verkehrsmitteln schnell im Büro. Und nicht zuletzt sorgt die große Auswahl an Restaurants und Cafés für abwechslungsreiche Mittagspausen -während die charmanten Geschäfte in der Umgebung Ihre Mitarbeiter und Kunden auch nach Feierabend beschäftigen können.... [Mehr]