Sie befinden sich hier: Startseite ›
Gewerbeobjekt mieten in 6130 Schwaz
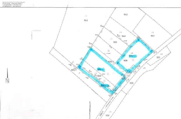
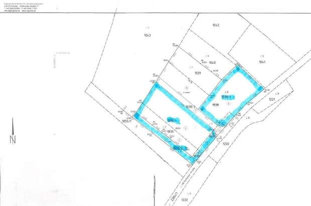
Baurechtsgrundstücke im Osten von Schwaz
6130 Schwaz / 11054m²
Beschreibung
Diese im Osten der Stadt Schwaz, Ortsteil Ried, befindlichen Baurechtsgrundstücke haben die Widmung " eingeschränktes Gewerbe- und Industriegebiet G-4" und können langfristig gepachtet werden. Der Vermittler ist als Doppelmakler tätig.