Modernes Büro Nähe PLUSCITY

4061 Pasching / 162m²

#Büro #barrierefrei

Beschreibung

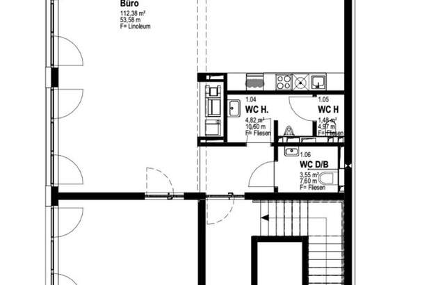
Das Gebäude besteht aus Erdgeschoss und 3 Obergeschossen. Im Untergeschoss stehen Archivräume zur Verfügung. Der Lift sichert einen barrierefreien Zugang zu den Büros und ins Untergeschoss. Folgende Flächen sind derzeit verfügbar: Büro 1.OG: ca. 162,77 m2 Archiv im UG: ca. 19,65 m2 Pro Büroeinheit sind 2 Stellplätze vorgesehen. Stellplätze im Freien: EUR 36,25/Platz netto Ausstattung Büro: Kabelkanäle entlang der Fenster EDV-Verkabelung Bodenbeläge getrennte WC-Anlagen, barrierefrei elektrischer Sonnenschutz aussenliegend Teeeküche Die Beheizung erfolgt über eine Wärmepumpe. Hinweis gemäß Energieausweisvorlagegesetz: Ein Energieausweis wurde vom Eigentümer bzw. Verkäufer, nach unserer Aufklärung über die generell geltende Vorlagepflicht, sowie Aufforderung zu seiner Erstellung noch nicht vorgelegt. Daher gilt zumindest eine dem Alter und der Art des Gebäudes entsprechende Gesamtenergieeffizienz als vereinbart. Wir übernehmen keinerlei Gewähr oder Haftung für die tatsächliche Energieeffizienz... [Mehr]