Beschreibung
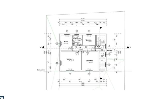
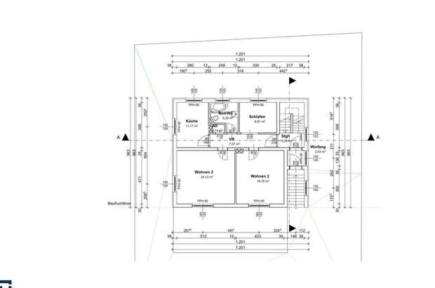
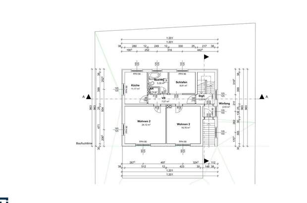
EXKLUSIVES GRUNDSTÜCK IN LEOPOLDSKRON, mit sanierungsbedürftigen Zweifamilienhaus Verwirklichen Sie Ihr Traumhaus: Sanierung, Umbau oder Neubau auf diesem hellen Grundstück in ruhiger Toplage ECKDATEN: - Stadtnähe / beste Infrastruktur - ruhige Lage mit Bergblick - südliche Ausrichtung - Grundstücksfläche 500 m2 - Zweifamilienhaus - Wohnfläche ca. 160 m2 - Baujahr 1962 - Ölheizung (Brenner wurde 2020 erneuert) - doppelt verglaste Kunststofffenster (2014) - Sanitärleitungen wurden 2003 erneuert - vollständig unterkellert - 2 großzügige Einzelgaragen mit Direktzugang Dieses Grundstück überzeugt durch die ruhige, helle, dennoch zentrale Lage, es ist umgeben von Ein- bzw. Zweifamilienhäusern. Das 1962 erbaute Zweifamilienhaus verfügt über zwei getrennte Wohneinheiten, die vom Stiegenhaus aus erreicht werden. Beide 3-Zimmerwohnungen verfügen über je zwei sehr große Zimmer und ein kleineres Zimmer. Jede Wohnung hat einen Holzofen, der bei geschicktem Heizen nahezu alle Räume auch an sehr kalten
Tagen ausreichend wärmt. Durch die südliche Ausrichtung genießt man den ganzen Tag Sonne und hat auch an trüben Tagen helle Räume und einen traumhaften Ausblick zur Festung Hohensalzburg, auf den Mönchsberg, Gaisberg sowie den Untersberg. Die Wohnung im Obergeschoss hat zu dem einen extra Raum, der sich über dem Windfang befindet und zusätzlich Stauraum bietet. Dazu gibt es einen Balkon, der sich über die komplette Hausfront erstreckt und über zwei Ausgänge verfügt. Der uneingeschränkte Blick auf den Untersberg verleitet zum Träumen und Ruhe genießen. Die Sanitärleitungen wurden vor rund 20 Jahren erneuert, doppelt verglaste Kunststofffenster wurden 2014 im kompletten Haus eingesetzt. Das Haus ist vollständig unterkellert. Neben einem Holzlager, einem Raum für die Öltanks - mit insgesamt 4.000l Fassungsvermögen-, einer Speise, und einem Hauswirtschaftsraum befindet sich im Keller außerdem ein Kellerraum mit rund 11,5qm. 2020 wurde ein moderner Ölbrenner und temperaturregelnde Thermostate an den Heizkörpern installiert. Überdies verfügt das Haus über zwei großzügige Einzelgaragen, von denen man direkt ins Stiegenhaus im Keller gelangt. Wasseranschlüsse sind im teilweise ausgebauten Dachgeschoss vorhanden. Für weitere Fragen und Besichtigungen stehen wir Ihnen gerne jederzeit zur Verfügung! Irrtum und Änderungen vorbehalten! Alle Angaben sind ohne Gewähr und basieren ausschließlich auf Informationen, die uns von unserem Auftraggeber bzw. Kooperationspartner übermittelt wurden. Wir übernehmen keine Gewähr für die Vollständigkeit, Richtigkeit und Aktualität dieser Angaben. Zwischenverkauf bleibt vorbehalten. Noch nichts gefunden? Wir informieren Sie über geeignete Immobilienangebote noch vor allen anderen. Legen Sie jetzt Ihren individuellen Suchagenten unter folgendem Link an. Wir schicken Ihnen passende Immobilien exklusiv vorab zu. Suchagent anlegen - https://d-h.service.immo/registrieren/de Hinweis gemäß Energieausweisvorlagegesetz: Ein Energieausweis wurde vom Eigentümer bzw. Verkäufer, nach unserer Aufklärung über die generell geltende Vorlagepflicht, sowie Aufforderung zu seiner Erstellung noch nicht vorgelegt. Daher gilt zumindest eine dem Alter und der Art des Gebäudes entsprechende Gesamtenergieeffizienz als vereinbart. Wir übernehmen keinerlei Gewähr oder Haftung für die tatsächliche Energieeffizienz der angebotenen Immobilie. Lage: Das Grundstück befindet sich in absoluter Traum- und Ruhelage im wunderschönen Leopoldskron. Umgeben von Ein- bzw. Zweifamilienhäusern findet sich diese Rarität. Der Leopoldskoner Weiher ist in wenigen Minuten fußläufig erreichbar und lädt zum gemütlichen Spazieren und Seele baumeln lassen ein. Das Freibad "Lepi" und Spielplätze sind ebenfalls fußläufig erreichbar. Trotz ländlicher Idylle lebt man hier sehr stadtnahe und mit perfekter Infrastruktur. Geschäfte des täglichen Bedarfs sind schnell erreicht. Außerdem gibt es in der Nähe, Kindergärten, Die VS Leopoldskron-Moos, Ärzte, Apotheken und Banken. Die Bushaltestelle ist in 2 Minuten erreicht und der Bus fährt nur 7 Minuten in die Innenstadt.... [Mehr]