Beschreibung
WERTE FÜR GENERATIONEN Diese 2-Zimmer
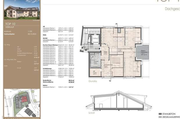
Wohnung mit ca. 70 m² besticht durch ihre Lage im Dachgeschoss und überzeugt durch das ca. 42 m² große Wohn- und Esszimmer, welches durch den smarten Grundriss zwar offen gestaltet wurde, durch die vorgenommene Zonierung jedoch separate Bereiche für Wohnen, Kochen, Essen und Arbeiten bildet. Der nach Osten ausgerichtete Balkon erweitert den Wohnraum nach draußen und lädt für gemütliche Stunden zu zweit oder mit Familie und Freunden ein. Das über 13 m² große Schlafzimmer inklusive praktischen Abstellräumen rundet das Angebot ab. Die traditionelle Ziegelbauweise, sorgfältig ausgewählte Ausstattungsdetails und eine harmonische Architektursprache gewährleisten eine nachhaltige Wertbeständigkeit für Generationen. WOHNHIGHLIGHTS IM ÜBERBLICK: Ökologische Bauweise mit Photovoltaikanlage und Luftwasser-Wärmepumpe Hochwertiger Echtholzparkettboden und eine große Auswahl an erlesenen Fliesen PKW-Stellplätze in der Tiefgarage mit Lademöglichkeit Massivbauweise
- Ziegelmauerwerk Harmonische Architektur und Handwerkskunst aus der hauseigenen Zimmerei Perfekte Infrastruktur und beste Verkehrsanbindung ENERGIEAUSWEIS Endenergiebedarf 14,0 kWh(m²*a) A+, Umweltwärme+Solar, Strom-Mix, 2024 ECKDATEN Wohnfläche: 71,23 m² Balkon: 7,33 m² Kellerabteil: 3,59 m² Kaufpreis Wohnung: EUR 458.000,00 Kaufpreis Tiefgarage: EUR 28.000,00 Kaufpreis Freiparker: EUR 6.000,00 Kaufpreissumme Top 10: EUR 492.000,00 Die Wohnfläche der jeweiligen Tops wurden nach der Wohnflächenverordnung berechnet, wobei Balkone sowie Terrassen mit der Hälfte ihrer Grundfläche angesetzt wurden. KONTAKT Für detaillierte Informationen zu unserem Bauprojekt, stehen Ihnen unsere Verkäufer jederzeit gerne zur Verfügung: Mike Mederake: [Tel] Wir freuen uns auf Ihre Kontaktaufnahme! Noch nichts gefunden? Wir informieren Sie über geeignete Immobilienangebote noch vor allen anderen. Legen Sie jetzt Ihren individuellen Suchagenten unter folgendem Link an. Wir schicken Ihnen passende Immobilien exklusiv vorab zu. Suchagent anlegen - https://hillebrand-immobilienmakler.service.immo/registrieren/de Lage: Im Herzen des Rupertiwinkels liegt die idyllische und familienfreundliche Gemeinde Saaldorf-Surheim mit ihren 5600 Einwohnern. Der nah gelegene Abtsee gilt nicht nur als wärmster See in Bayern, sondern bietet Naturfreunden den besonderen Reiz des Landschaftsschutzgebiets. Die Stadt Salzburg ist in wenigen Minuten erreichbar und eröffnet kulturelle Unterhaltung und viele Aktivitäten für die ganze Familie. Ihre neue Wohnung ist zentral gelegen - in unmittelbarer Nähe befinden sich Kindergarten, Grundschule, Supermarkt sowie ein Bäcker. Die nahe gelegene Bushaltestelle bietet eine sehr gute Anbindung an den öffentlichen Verkehr.... [Mehr]