Sie befinden sich hier: Startseite ›
Gewerbeobjekt mieten in 5721 Piesendorf
Geschäftsfläche in Zentraler Lage in Piesendorf zu Vermieten!
5721 Piesendorf / 350m²
#Handel
#Parkmöglichkeit
Beschreibung
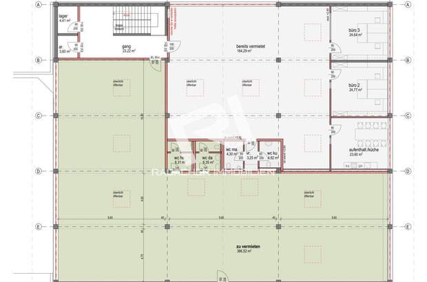
Geschäftsfläche in Piesendorf zu vermieten! Das von uns angebotene Objekt befindet sich im Gewerbegebiet in Piesendorf direkt an der B311. Durch die zentrale Lage eignet sich diese Immobilie besonders gut für alle Arten von Unternehmen, welche einen großen Schauraum benötigen. Die helle Gewerbefläche bietet ein komfortables Raum- und Arbeitsklima. Fakten Nutzfläche ca. 350m² | perfekte zentrale Lage | gute Erreichbarkeit für LKW | Mietpreis richtet sich nach der Ausstattung (ca. 8,50 - 10 Euro netto pro m²) Ihr Interesse ist geweckt? Auf Wunsch senden wir Ihnen gerne detailliertere Informationen zu oder vereinbaren Sie einen Besichtigungstermin. Wir freuen uns über Ihre Kontaktaufnahme!