Beschreibung
Erhabener Baugrund mit Donaublick - in ruhiger Lage Auf der Suche nach dem idealen Rückzugsort für Sie und Ihre Familie? Sichern Sie sich diesen tollen Baugrund! Dieses
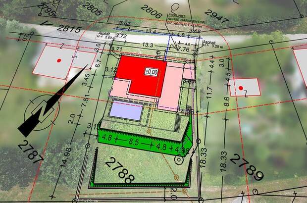
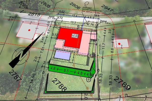
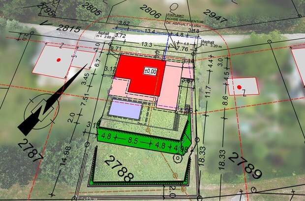
Grundstück in Hanglage bietet einen tollen Ausblick auf die nahegelegene Donau und das malerische Schloss Dornach. Es gehört zur kleinen Ortschaft Dornach (ca. 120 Einwohner) und ist Teil der Marktgemeinde Saxen. Ca. 3 km außerhalb des Gemeindezentrums gelegen, hat man hier absolute Ruhe, bei gleichzeitig guter Anbindung zu Bundesstraße und Ortskern. Gewinnen Sie einen ersten Einblick in diesem Video auf Youtube: https://youtu.be/6e Un XCtnj0E Bauen in Hanglage kann eine Herausforderung sein? Hier nicht, denn mit diesem Baugrund erwerben Sie gleichzeitig eine Fertige Ausführungsplanung eines Einfamilienhauses - mit aktueller Baugenehmigung (Nov. 2022)! Fertig geplant und genehmigt ist ein zweigeschoßig konzipiertes Wohngebäude mit zusätzlichem Kellergeschoß mit integriertem Pool. Das Projekt gewährt Einfügung in das bestehende
Landschafts- und Ortsbild, in Übereinstimmung mit Vorgaben des Bebauungsplanes der Gemeinde. Kontaktieren Sie uns für weitere Informationen und Planeinsicht! Nadine Ratschiller Immobilienberaterin Wohntraumreal [Tel] Der Vermittler ist als Doppelmakler tätig. Lage: Dieses Grundstück befindet sich in 4351 Dornach in der Marktgemeinde Saxen im süd-östlichsten Mühlviertel (OÖ). Es ist ideal für den Bau eines Eigenheims und ausgerichtet in Richtung Süden. Es befindet sich in unmittelbarer Nähe des Schlosses Dornach und des Bahnhofs. Die Umgebung ist ruhig und bietet mit der nahegelegenen Donau, ihren Auen und dem Donaudamm viele Sport- und Freizeitmöglichkeiten. Der Ortskern der Gemeinde Saxen ist ca. 3 km (4 Autominuten) entfernt und bietet den nächstgelegenen Nahversorger (Unimarkt). Die nahegelegene, imposante Burg Clam ist ein beliebter Ausflugs- und Veranstaltungsort. Die davor gelegene Klammschlucht bietet tolle Wander- und Spazierwege (7-10 Minuten Autominuten entfernt).... [Mehr]