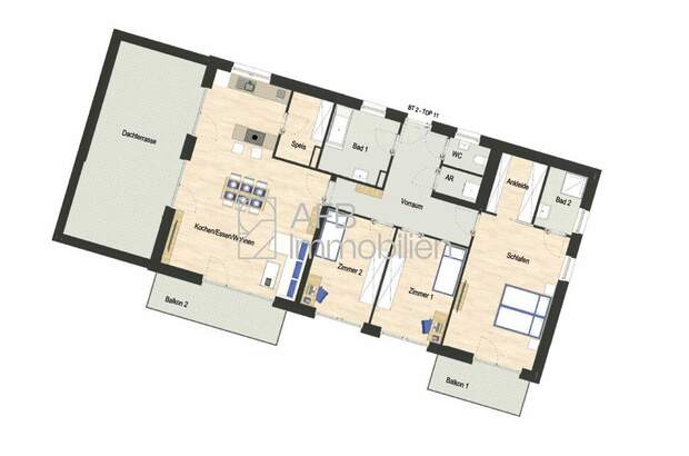
Ihre Vision. Ihr Dachgeschoss. Penthouse mit Fernblick & 30 m² Terrasse - im Edelrohbau zur freien Gestaltung! - provisionsfrei

8401 Kalsdorf bei Graz / 121m² / 4 Zimmer

#Dachgeschoss #Rohbau #Balkon #Parkmöglichkeit #Terrasse #hell

Beschreibung

Verwirklichen Sie Ihre Wohnvision über den Dächern von Kalsdorf: Zum Verkauf steht die letzte verfügbare Penthousewohnung im Projekt Morregasse - mit großzügigen 121,96 m² Wohnfläche und einer südwestlich ausgerichteten Freiflächen mit 30,82 m² . Die Wohnung wird im Edelrohbau übergeben - somit bietet sie Ihnen die Möglichkeit, den Innenausbau exakt nach Ihren Vorstellungen zu realisieren. Highlights im Überblick Wohnfläche: 121,96 m² Freiflächen: 30,82 m² Zimmer: 4, individuell gestaltbar Belichtung: lichtdurchflutete Räume Zustand: Edelrohbau (Innenausbau nicht enthalten - Ausbau durch Käufer) Tiefgaragenplatz: 2 Stellplätze inklusive Bezug: sofort möglich nach Kaufvertrag Erleben Sie moderne Architektur, großzügige Flächen und die Möglichkeit, Ihre Traumwohnung selbst zu vollenden. Vereinbaren Sie noch heute einen Besichtigungstermin für Ihr neues Zuhause! Wir weisen darauf hin, dass zwischen dem Vermittler und dem zu vermittelnden Dritten ein familiäres oder wirtschaftliches Naheverhältnis... [Mehr]