Beschreibung
Nördlich der Stadt Landeck erheben sich die Gipfel der Lechtaler Alpen, Teil der Nördlichen Kalkalpen. In Landeck wurde ein Neubauprojekt mit insgesamt 11
Eigentumswohnungen, aufgeteilt auf zwei Häuser, errichtet. Bei dieser
Wohnung handelt es sich um eine subjektgeförderte
Wohnung. Was bedeutet Subjektförderung?- Hier haben Sie die Möglichkeit vom Land Tirol entweder das Wohnbauförderungsdarlehen in Höhe von ca. € 110.000,00 (mit niedriger Verzinsung) zu übernehmen oder den Wohnbauscheck in Höhe von ca.€ 38.000,00 (dabei handelt es sich um eine einmalige Auszahlung die Sie nicht zurückzahlen müssen) erhalten. Des Weiteren können Sie den Zuschuss Junges Wohnen (bis max. 18.000€) sowie den Zuschuss für energiesparende Maßnahmen (bis max. ca. 14.000€) beantragen. BEZUG: AB SOFORT Traumhafte 2-Zimmer-
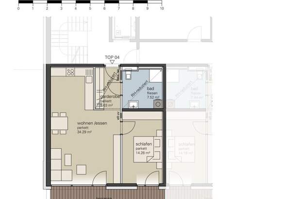
Wohnung in sonniger Lage Die angebotene
Wohnung befindet sich mit ihrer idealen und sehr durchdachten Raumaufteilung im 1. Obergeschoß. Ausstattung auf einem Blick • 1 Tiefgaragenabstellplatz
• Kellerabteil • Balkon • Personenaufzug Neben dieser Wohnungen, haben wir noch weitere freie Einheiten verfügbar und können Sie die Grundrisse und Kosten dem Exposé entnehmen. Bei Interesse bitten wir Sie den ausgefüllten Fragebogen an uns zu übermitteln. Am Fragebogen kann Ihre Wunschtop angeführt werden. Für weitere Informationen stehen wir gerne zur Verfügung.... [Mehr]