Beschreibung
Aldrans - PANORAMICA : Wohnen mit Blick auf Innsbruck Erleben Sie modernes Wohnen in einer der schönsten Lagen Tirols - mit einem unvergleichlichen Panoramablick auf die Stadt Innsbruck und die majestätische Alpenkulisse. Dieses einzigartige Projekt bietet fünfzehn stilvoll gestaltete
Eigentumswohnungen, die nicht nur höchsten Wohnkomfort bieten, sondern auch einen spektakulären Ausblick, der jeden Tag aufs Neue begeistert. Hier wohnen Sie über den Dächern von Innsbruck - in einem Zuhause, das eine perfekte Symbiose aus Natur, Stadt und Lebensqualität schafft. Provisionsfrei - DIREKT vom Bauträger ! Diese exklusive 3-Zi-
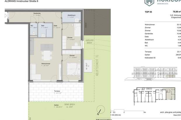
Wohnung befindet sich im Erdgeschoß und bietet auf ca. 80 m² Wohnnutzfläche ein ideales Zuhause für Kleinfamilien mit Anspruch an einen großen Garten. Die
Wohnung überzeugt durch eine gelungene Raumaufteilung, sehr gute Belichtung und einen direkten Zugang zu einer großzügigen Terrasse sowie einem großen eigenen Garten. Wohnfläche: Wohnnutzfläche: ca. 80 m² Terrasse: ca.
23 m² Garten: ca. 285 m² Kellerabteil: 8,5 m² Highlights der Wohnung: Helle und freundliche Räume Sonnenterrasse zum Chillen Großer Garten mit viel Platz zum Entspannen Praktisches Kellerabteil und zusätzlicher Abstellraum Diese Wohnung vereint Wohnkomfort mit einem wunderschönen, großen Garten und bietet ein naturnahes Wohnen in zentraler Lage. Ein perfektes Zuhause zum Wohlfühlen! Lage: Aldrans - Ihr idyllisches Zuhause über Innsbruck Aldrans ist eine charmante Gemeinde in Tirol, die für ihre idyllische Lage und ihre atemberaubenden Panoramablicke bekannt ist. Gelegen auf einem sonnigen Plateau südöstlich von Innsbruck, bietet Aldrans eine perfekte Kombination aus Natur, Ruhe und der Nähe zur Landeshauptstadt. Kaufnebenkosten : Grunderwerbsteuer: 3,50% Eintragung Eigentumsrecht: 1,10% Vermittlungshonorar: 0,00% => DIREKT vom Bauträger Kaufvertragserrichtung: 1,90% zzgl. 20% USt. Beglaubigungskosten Courtagepassus Alle Angaben sind ohne Gewähr und basieren ausschließlich auf Informationen, die uns von unserem Auftraggeber übermittelt wurden. Wir übernehmen keine Gewähr für die Vollständigkeit, Richtigkeit und Aktualität dieser Angaben. Zwischenverkauf bleibt vorbehalten. Grunderwerbsteuer, Vertragserrichtungskosten, Notar- und Grundbuchkosten sind vom Käufer zu tragen. Rechtlicher Hinweis: Dieses freibleibende Angebot wird Ihnen von der HORICON Immobilien GmbH, welche als Immobilienmakler tätig ist, überreicht. Sämtliche Visualisierungen, Ansichten, Angaben, Inhalte und Grundrisse dieser Verkaufsunterlage sind vorbehaltlich Änderungen und können durch Modifikationen und / oder notwendige Veränderungen abweichen. Alle Angaben erfolgen ohne Gewähr. Es besteht ein wirtschaftliches Naheverhältnis zwischen dem Bauträger HORICON evolution GmbH und der HORICON Immobilien GmbH. Beim Kauf fällt kein Vermittlungshonorar an => DIREKT vom Bauträger .... [Mehr]