Beschreibung
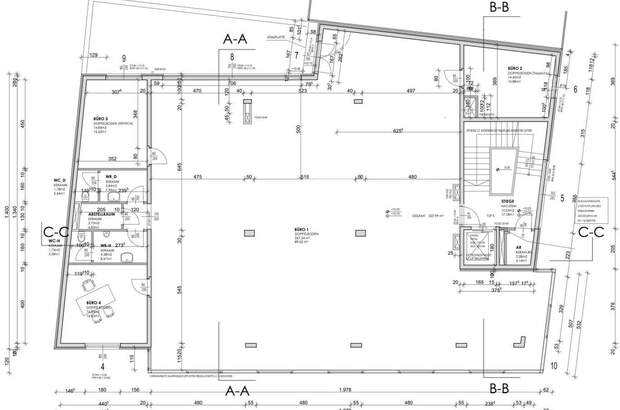
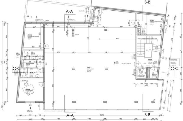
Sie sind auf der Suche nach einer repräsentativen und modernen Büro- oder Praxisfläche in Linz? Dann haben wir genau das Richtige für Sie! Diese Immobilie befindet sich in bester Lage in der oberösterreichischen Hauptstadt und bietet Ihnen alles, was Sie für Ihr erfolgreiches Business benötigen. Das Büro/Praxis befindet sich in der 3. Etage und bietet eine großzügige Fläche von ca. 326,72m². Durch die großen, öffenbaren Fenster strömt viel Tageslicht in die Räumlichkeiten und schafft eine angenehme Arbeitsatmosphäre. Der Doppelboden sorgt für eine flexible Gestaltungsmöglichkeit der Räume und die Fernwärme garantiert eine effiziente Beheizung. Ein Personenaufzug ermöglicht einen barrierefreien Zugang und die Tiefgarage bietet Parkmöglichkeiten. Die Verkehrsanbindung ist ideal. Durch die Nähe zu Bus, Straßenbahn und Bahnhof sind Sie bestens an das öffentliche Verkehrsnetz angeschlossen. Auch für Ihre Mitarbeiter und Kunden, die mit dem Auto anreisen, ist die Anbindung durch die nahegelegene
Autobahn optimal. In der Umgebung finden Sie alle wichtigen Einrichtungen des täglichen Bedarfs. Ob Arzt, Apotheke, Krankenhaus oder Klinik - Ihre Gesundheit ist in unmittelbarer Nähe versorgt. Auch für Familien ist diese Lage perfekt, da sich in der Umgebung ein Kindergarten, eine Schule, eine Universität und eine Höhere Schule befinden. Einkaufsmöglichkeiten wie Supermärkte, Bäckereien und ein Einkaufszentrum sind ebenfalls schnell zu erreichen. Überzeugen Sie sich selbst von dieser Immobilie und vereinbaren Sie noch heute einen Besichtigungstermin. Nutzen Sie diese Chance und verwirklichen Sie Ihre beruflichen Träume in dieser traumhaften Büro-/Praxisfläche in Linz! Der Vermittler ist als Doppelmakler tätig. Lage: Nähe Musiktheater, Landstraße, Volksgarten und Bahnhof... [Mehr]