Beschreibung
Dieses Objekt mit insgesamt 23
Wohnungen in zwei Gebäuden wird in einer kleinen istrischen Stadt unweit von Poreč, nur 1 km vom Meer entfernt erbaut. Jedes der beiden Gebäude wird mit einen Aufzug vom Erdgeschoss zu den Dachterrassen ausgestattet. Außerdem verfügt jede
Wohnung über einen Parkplatz und einen Abstellraum. Alle
Wohnungen verfügen über Keramikfußböden inkl. elektrischer Fußbodenheizung und Klimaanlagen (in jedem Zimmer). Die Fenster werden in einer Kombination ALU/PVC inkl. Insektenschutz und elektrischen Jalousien ausgeführt. Außerdem können natürlich in der Bauphase sämtliche Änderungen in Bezug auf die Raumaufteilung und die verwendeten Materialien an die individuellen Wünsche des neuen Eigentümers angepasst werden. Die moderne Architektur bzw. die zentrale Lage dieses Objektes sind ein Garant für entspannende Stunden und Tage! Geplanter Baubeginn ist April 2023 und die Fertigstellung ist für Anfang 2025 geplant. Der Investor ist für seine Qualität in der Ausführung und
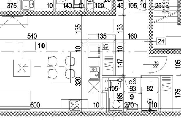
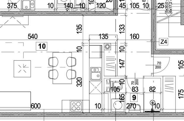
für seine Termintreue bekannt. Die einzelnen Wohnungen inkl. der entsprechenden Größen finden Sie in den Beilagen. Auf Anfrage übermitteln wir Ihnen gerne weitere Informationen und Details zu den restlichen Wohnungen! Schauen Sie sich in Ruhe unser Immobilienangebot an oder informieren Sie uns, wie Ihre Traumimmobilie aussehen und wo sich das Objekt befinden soll. Unser Portfolio umfasst rund 600 Immobilien in Istrien (jede Art von Immobilie und in jeder Preisklasse) und wir finden für Sie die perfekte Immobilie und stehen Ihnen beim Kauf und bei der Abwicklung mit deutschsprachigen Mitarbeitern zur Seite. Langjährige Kooperationen im Immobilienbereich machen uns zu einem kompetenten und zuverlässigen Partner für diese Region. Penthouse mit Dachterrasse und Meerblick Die Wohnung "B3" befindet sich im 3. Lift-Stock des Gebäudes. Die Aufteilung ist wie folg: ein Schlafzimmer, Wohnzimmer/Küche mit Essbereich inkl. Zugang zur Terrasse und ein Badezimmer. Außerdem verfügt diese Immobilie über eine zusätzliche Dachterrasse von ca. 38 m2 mit wunderbarem Meerblick! Noch nichts gefunden? Wir informieren Sie über geeignete Immobilienangebote noch vor allen anderen. Legen Sie jetzt Ihren individuellen Suchagenten unter folgendem Link an. Wir schicken Ihnen passende Immobilien exklusiv vorab zu. Suchagent anlegen - https://immobilien-blaskovic.service.immo/registrieren/de Hinweis gemäß Energieausweisvorlagegesetz: Ein Energieausweis wurde vom Eigentümer bzw. Verkäufer, nach unserer Aufklärung über die generell geltende Vorlagepflicht, sowie Aufforderung zu seiner Erstellung noch nicht vorgelegt. Daher gilt zumindest eine dem Alter und der Art des Gebäudes entsprechende Gesamtenergieeffizienz als vereinbart. Wir übernehmen keinerlei Gewähr oder Haftung für die tatsächliche Energieeffizienz der angebotenen Immobilie.... [Mehr]