Attraktive Fläche für Büro/Praxis am Hauptplatz von Ried

4910 Ried im Innkreis / 123m²

#Büro #Altbau

Beschreibung

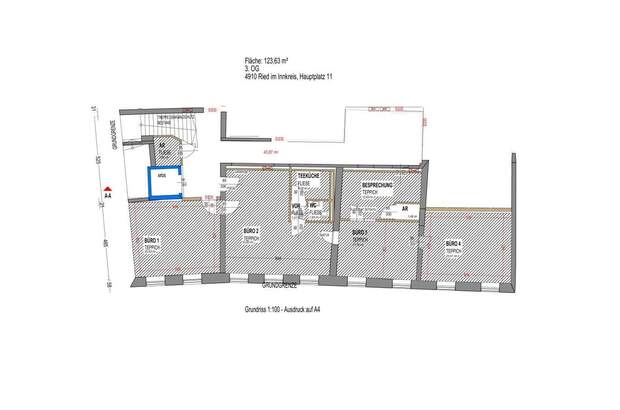
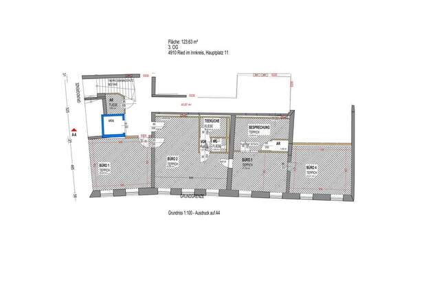
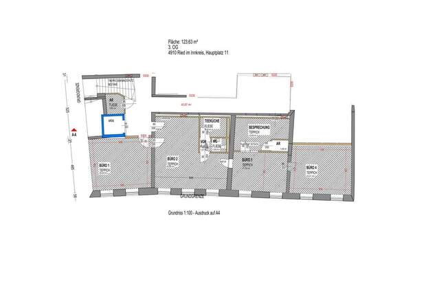
Die Fläche, welche sich ideal als Büro oder auch Praxis eignet, hat eine Nutzfläche von 123,63 m² und teilt sich auf in: Empfang 4 Büroräume Innenliegender Besprechungsraum Teeküche WC 2 Abstellräume (einer davon außerhalb der Fläche) Die Fläche befindet sich im 3.OG eines Hauses mit mehreren Büros und Geschäften und ist per Lift erreichbar. Die Räumlichkeiten können als Büro oder auch als Praxis für Therapie-/Massage-/Kosmetikangebote genutzt werden. Auch die Nutzung als Bürogemeinschaft ist möglich. Raumanpassungen und Veränderungen der Flächen/Zugänge sind nach Absprache mit dem Vermieter möglich.