Beschreibung
In bester Innenstadtlage von Knittelfeld präsentieren wir Ihnen dieses vielseitig nutzbare
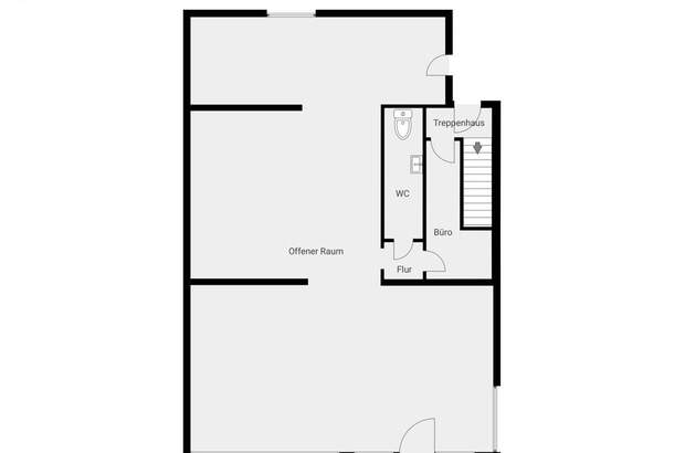
Geschäftslokal mit ca. 132 m² Geschäftsfläche und einer zusätzlichen Lagerfläche von ca. 116 m² im Kellergeschoss. Die Liegenschaft befindet sich in einem etablierten Geschäftsbereich und ist sowohl für Einzelhandel als auch für Dienstleistungsunternehmen bestens geeignet. Das
Geschäftslokal bietet eine großzügige Verkaufsfläche mit natürlichem Tageslicht und ist praktisch aufgeteilt in drei Sektionen , was eine flexible Nutzung ermöglicht. Ein besonderes Highlight ist das große Schaufenster zur Straßenseite , das nicht nur für eine helle und einladende Atmosphäre sorgt, sondern auch optimale Sichtbarkeit für Ihre Produkte oder Dienstleistungen bietet. Zusätzlich steht ein Bürobereich zur Verfügung - ideal für administrative Tätigkeiten oder Beratungsgespräche. Der hauseigene Hinterhof bietet eine praktische Erweiterung - sei es für Pausenbereiche, Anlieferung oder interne Nutzung. Die dazugehörige
Lagerfläche im Keller mit ca. 116 m² ist direkt vom Verkaufsraum aus erreichbar und bietet ausreichend Platz für Waren, Ausstattung oder Archiv. Besondere Merkmale: Top-Lage im Zentrum von Knittelfeld Ehemaliges, bekanntes Geschäftslokal (Spielwaren Schachner ) 132 m² Geschäftsfläche + 116 m² Lagerfläche Großes Schaufenster mit optimaler Sichtbarkeit Praktisch gegliederte Verkaufsfläche mit drei Sektionen Separates Büro Kleiner, uneinsehbarer Hinterhof Gute Frequenzlage mit hoher Passantenfrequenz Öffentliche Parkmöglichkeiten in unmittelbarer Nähe Nutzung: Ideal geeignet für Einzelhandel, Praxis, Studio, Atelier oder auch als Showroom. Der Vermittler ist als Doppelmakler tätig.... [Mehr]