Beschreibung
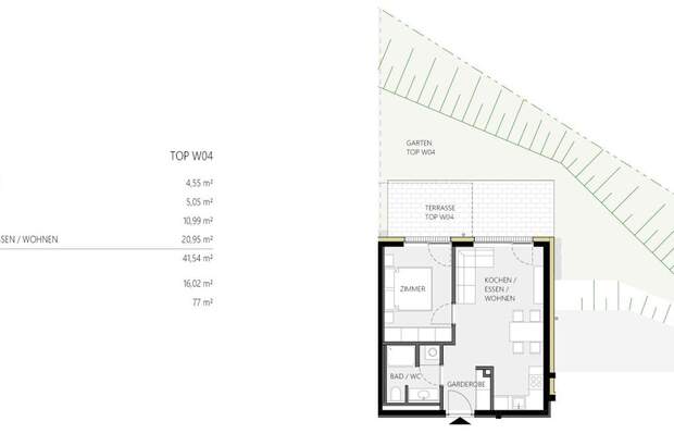
Charmante 2-Zimmerwohnung - Ideal für Singles oder Paare! Diese attraktive
Wohnung bietet Ihnen alles, was Sie sich wünschen: Geräumiges Schlafzimmer mit eigenem Ankleideraum für optimalen Komfort. Praktischer Abstellraum mit Platz für Ihre Waschmaschine - so bleibt alles ordentlich und aufgeräumt. Großzügiger Vorraum , der Ihnen einen einladenden Empfang bietet. Offener Wohn-/Ess-/Kochbereich , der sich ideal für geselliges Beisammensein und entspannte Abende eignet. Überdachter West-Balkon mit 6,93 m² , perfekt für entspannte Stunden im Freien. Diese
Wohnung vereint modernen Komfort mit einer durchdachten Raumaufteilung und bietet Ihnen einen Rückzugsort, der keine Wünsche offenlässt. Neubauprojekt "Smart Living" Zentral Wohnen und dennoch viel Aussicht, Grün und Sonne Alles für das tägliche Leben zu Fuß erreichen und zudem verkehrstechnisch optimal angebunden für Arbeit und Freizeit Kompakt Wohnen mit niedrigsten Betriebskosten und trotzdem großzügig im Raumangebot und Freibereich Das
ist unser Wohnprojekt " Smart Living " mit nur 6 Wohneinheiten Jetzt Termin vereinbaren! Der Baubeginn erfolgte planmäßig. Weitere Informationen zum Projekt und den Kaufpreisen finden Sie auf unser immocenter-Homepage unter: www.immocenter.tirol/projekt/smart-living Kaufnebenkosten 3,50 % Grunderwerbsteuer 1,10 % Eintragung Eigentumsrecht Vermittlungshonorar provisionsfrei, direkt vom Bauträger 1,80 % + 20 % USt Kaufvertragserrichtung Beglaubigungskosten Rechtlicher Hinweis Die Bewerbung, die Übermittlung der Projektunterlagen sowie die Beratung zum Angebot erfolgen über die IC Immobilien Service GmbH. Der Kauf erfolgt direkt und provisionsfrei vom Bauträger. Hier finden Sie unsere Datenschutzinformation. Wir weisen darauf hin, dass zwischen dem Vermittler und dem zu vermittelnden Dritten ein familiäres oder wirtschaftliches Naheverhältnis besteht. Der Vermittler ist als Doppelmakler tätig.... [Mehr]