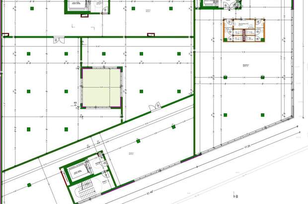
Die BWSG realisiert bis Frühjahr 2028 ein zukunftsweisendes Projekt beim Altmannsdorfer Anger. Im vorderen Bereich werden attraktive Wohneinheiten errichtet, im rückwärtigen Bereich angrenzend an bereits bestehende Gewerbebetriebe werden die zwei Bauteile BT5 und BT6 mit insgesamt ca. 4.250 m² exklusiv für gewerbliche Nutzung als produktive Stadt errichtet. Die Flächen können im BT4 auf insgesamt ca. 6.100 m² erweitert werden, im Bauteil 4 werden in den oberen Geschoßen Wohnungen errichtet. Im Erdgeschoß stehen in den Bauteilen BT5 und BT6 insgesamt rund 1.100 m² für unterschiedliche gewerbliche Nutzungen zur Verfügung. Je nach Projektfortschritt können mieterspezifische Nutzeranforderungen hinsichtlich Haustechnik wie Belüftung, Kühlung, Lademöglichkeiten oder ähnliches im Planungs- und Bauprozess berücksichtigt werden. Alle Flächen im Erdgeschoß sind barrierefrei erreichbar und verfügen großteils über natürliche Belichtung durch Fenster bzw. Oberlichten. Die Zufahrt ist über die um das Projekt laufende Lieferstraße möglich, Laderampen oder Ladetore sind je nach den architektonischen Gegebenheiten ebenfalls denkbar. Die Erschließung der oberen Geschoße erfolgt über insgesamt drei Stiegenhäuser, die alle mit Lastenaufzug ausgestattet sind, so dass auch die Flächen in den Obergeschoßen flexibel, als Produktions- oder Lagerflächen aber auch als Büroflächen genutzt werden können. Im Bauteil 6 mit insgesamt 6 Geschoßen ist zusätzlich zum Lastenaufzug auch ein Personenaufzug geplant. Im Untergeschoß der Liegenschaft ist eine Tiefgarage für PKW geplant, die Stellplätze teilen sich auf die gewerbliche wie auch auf die Wohnnutzung auf. Die Erschließung erfolgt direkt über die Stachegasse mit einem übersichtlichen und klaren Leitsystem über Pylone und Fassadenschilder. Der Gewerbeteil der Liegenschaft sowie deren Zufahrt und der Zugang wird an der Stachegasse mit einem attraktiven Leitsystem und Pylonen deutlich sichtbar gemacht, Mieter können Ihre Logos werbewirksam anbringen. Insbesondere der Bauteil 6 verfügt darüber hinaus über eine sehr gute Sichtbarkeit von der S-Bahn, bei einer Single Tenant Nutzung kann die Anbringung eines Firmenschriftzugs an der Fassade oder am Dach geprüft werden. Die Liegenschaft befindest sich in einer Seitengasse der Breitenfurterstraße mit sehr guter Anbindung an die Altmannsdorfer Straße und an die Anschlussstelle Altmannsdorf. In direkter Umgebung sorgen in fußläufiger Entfernung Geschäfte und Lokale für eine funktionierende Nahversorgung. Die öffentliche Erreichbarkeit ist gut, die S-Bahn-Station Hetzendorf (S-Bahn Linien S2, S3, Straßenbahnlinie 62) ist fußläufig bzw. mit den Autobuslinien 16A und 62A in einer Station erreichbar. Die Vermietung erfolgt befristet. verfügbare Flächen/Konditionen: Bauteil 5 und Bauteil 6: EG: ca. 1.143 m² erweiterbar mit BT4 auf insgesamt ca. 1.474 m² 1.OG: ca. 1.226 m² erweiterbar mit BT 4 auf insgesamt ca. 1.992 m² 2.OG: ca. 836 m² erweiterbar mit BT 4 auf insgesamt ca. 1.599 m² 3.OG: ca. 334 m² 4.OG: ca. 338 m² 5.OG: ca. 338 m² Gesamtfläche BT5, BT6 : ca. 4.215 m² erweiterbar mit BT4 auf ca. 6.075 m² Eine Anmietung von Teilflächen ist möglich! Nettomiete: ab € 14,00/m²/Monat Betriebskosten: netto ca. € 2,50/m²/Monat (Schätzung) Alle Preise zzgl. 20% USt. Öffentliche Verkehrsanbindung: Autobuslinien: 62A, 16A S-Bahn: S2, S3 Straßenbahn: 62 Hinweis gemäß Energieausweisvorlagegesetz: Ein Energieausweis wurde vom Eigentümer bzw. Verkäufer, nach unserer Aufklärung über die generell geltende Vorlagepflicht, sowie Aufforderung zu seiner Erstellung noch nicht vorgelegt. Daher gilt zumindest eine dem Alter und der Art des Gebäudes entsprechende Gesamtenergieeffizienz als vereinbart. Wir übernehmen keinerlei Gewähr oder Haftung für die tatsächliche Energieeffizienz der angebotenen Immobilie. Wir weisen darauf hin, dass zwischen dem Vermittler und dem zu vermittelnden Dritten ein familiäres oder wirtschaftliches Naheverhältnis besteht. Der Vermittler ist als Doppelmakler tätig. Infrastruktur / Entfernungen Gesundheit Arzt <1.000m Apotheke <500m Klinik <1.500m Krankenhaus <1.500m Kinder & Schulen Schule <500m Kindergarten <500m Universität <3.000m Höhere Schule <2.500m Nahversorgung Supermarkt <500m Bäckerei <500m Einkaufszentrum <1.500m Sonstige Geldautomat <500m Bank <500m Post <500m Polizei <1.500m Verkehr Bus <500m U-Bahn <1.500m Straßenbahn <500m Bahnhof <1.000m Autobahnanschluss <1.000m Angaben Entfernung Luftlinie / Quelle: Open Street Map... [Mehr]