Beschreibung
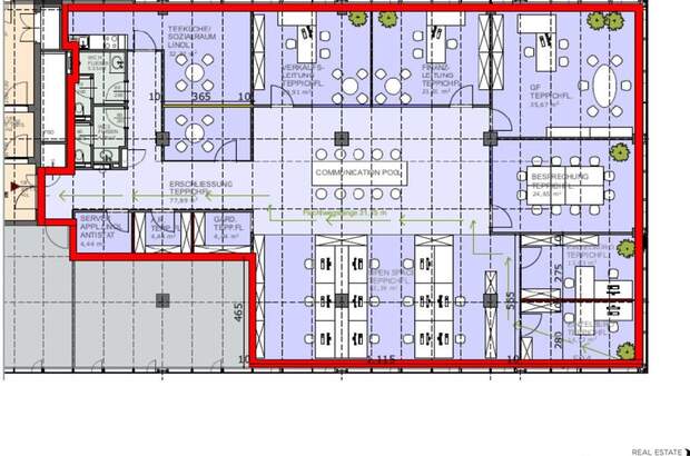
Im BC20 in zentraler Lage im 20. Wiener Gemeindebezirk kommt diese attraktive Bürofläche im 3. OG zur Vermietung. Der aktuelle Grundriss gliedert sich in einen Open Space Bereich, 5 kleinere abgetrennte Büroräume, ein größerer und ein kleinerer Besprechungsraum, sowie Teeküche mit Aufenthaltsbereich und getrennten Sanitäreinheiten. Die Büroflächen sind grundsätzlich flexibel gestaltbar; die Trakttiefe von 16 m ermöglicht maximale Offenheit, lichtdurchflutete Räume und optimal auf die Mieterbedürfnisse zugeschnittene Büroorganisationsformen. Effiziente Energienutzung wird durch eine energiesparende Bauteilkühlung gewährleistet. Für den Individualkomfort der Nutzer bestehen öffenbare Fenster. Bei dem Erschließungsgebiet "Dresdner Spange" mit der Dresdner Straße als Verbindungsachse zwischen dem 2. und 19. Wiener Gemeindebezirk trifft eine strategisch günstige Lage auf eine ausgezeichnete Infrastruktur. In unmittelbarer Nähe gibt es diverse Geschäfte, Trafik, Hauptpostamt und Bankanstalten.
Ein Lebensmittel- und Drogeriefachgeschäft befinden sich sogar direkt im BC 20. Ein paar Schritte weiter erhält man auch erstklassige medizinische Versorgung durch Apotheke, Ärztezentrum und Krankenhaus. Unter dem Bürogebäude finden in einer 2-geschoßigen Tiefgarage 415 Pkws Platz. Somit sind für Geschäftspartner, Kunden und Angestellte immer ausreichende Parkflächen vorhanden. verfügbare Fläche/Konditionen: OG 3: ca. 335 m² - netto € 16,50/m²/Monat Betriebskostenakonto: netto € 4,50/m²/Monat Alle Preise zzgl. 20% USt. Die Vermietung erfolgt befristet. Bei Interesse können über den hauseigenen Garagenbetreiber der Firma Optimus zusätzlich Stellplätze angemietet werden. Ausstattung: Bauteilkühlung Luftwechsel 1,5-fach/Stunde 3,03 Meter Raumhöhe Aufzüge vorhanden Doppelboden Gipskartonständerwände Flexibel gestaltbare Flächen Außen oder innen liegender Sonnenschutz Öffentliche Verkehrsanbindung U-Bahn: U6 Straßenbahn: 2, 31, 33 Autobus: 37A Schnellbahn: S1, S2, S3, S4, S7 - Traisengasse Individualverkehr: Autobahnanbindung A22 Straßenanbindung B8, B14, B226 Flughafen Wien Schwechat in ca. 20 Minuten erreichbar Wien Zentrum in ca. 10 Minuten erreichbar Wir weisen darauf hin, dass zwischen dem Vermittler und dem zu vermittelnden Dritten ein familiäres oder wirtschaftliches Naheverhältnis besteht. Infrastruktur / Entfernungen Gesundheit Arzt <500m Apotheke <500m Klinik <500m Krankenhaus <500m Kinder & Schulen Schule <500m Kindergarten <500m Universität <500m Höhere Schule <1.000m Nahversorgung Supermarkt <500m Bäckerei <500m Einkaufszentrum <500m Sonstige Geldautomat <500m Bank <500m Post <500m Polizei <1.000m Verkehr Bus <500m U-Bahn <500m Straßenbahn <500m Bahnhof <500m Autobahnanschluss <1.500m Angaben Entfernung Luftlinie / Quelle: Open Street Map... [Mehr]