Beschreibung
Kurzinfo: Wiener Neustadt ist die größte Schulstadt und zweitgrößte Einkaufsstadt Niederösterreichs. Rund 45.000 Einwohner schätzen die hohe Lebensqualität, die Wiener Neustadt zu bieten hat. Tendenz steigend. Das Projekt: zentrales
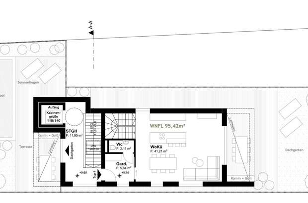
Grundstück in Wiener Neustadt 4-geschoßiger Wohnbau von Luxuswohneinheiten mit Schwimmbad am Dachgeschoß Nutzfläche erzielbar 1041m², Wohnfläche erzielbar 472m², Terrassen 104m², Balkone 22 m² Gärten 39m² etc. Bewilligte 5 Neubauwohnungen bzw. 6 nach Umplanung 11 Tiefgaragenplätze Gemeinschaftsterrasse und Freifläche Spielbereich im Freien Kinderwagen- & Fahrradabstellplätze Parteienkeller für jede Wohnung Die Wohnungen: durchdachte Grundrisse private Freiflächen wie Eigengarten, Terrasse oder Balkone Energieausweis: Geplanter HWB: 21,1 kWh/m2a ; Klasse: A Die künftigen Bewohner dürfen sich auf hochwertige Ausführung, durchdachte Grundrisse sowie persönliche Freiräume freuen, die für ein lebenswertes Wohlfühl-Ambiente in den eigenen vier Wänden sorgen. Fotos,
Pläne und weitere Objektunterlagen übermitteln wir Ihnen sehr gerne auf Anfrage. Greifen Sie zu und reservieren Sie sofort einen Termin! Projektpreis inkl. aller Planungs- Einreich- und Bewilligungsunterlagen € 565.000,- netto nach Vereinbarung! NUR ASSET DEAL ! Der Verkauf erfolgt ohne USt. Für weitere Fragen oder eine Besichtigung stehe ich Ihnen gerne zur Verfügung. Ihr Immobilienberater Josef Sieber [Tel] [Email]ess Nebenkosten: Grunderwerbssteuer: 3,5 % v. Kaufpreis Eintragung ins Grundbuch: 1,1 % v. Kaufpreis Notar für Kaufvertrag: ca. 2 % v. Kaufpreis Provision: 3 % v. Kaufpreis zzgl. 20 % USt. Um Sie persönlich gut beraten zu können, führen wir selbstverständlich nur Einzelbesichtigungen durch. Besichtigungen sind auch ab 18: 30 Uhr bzw. am Wochenende nach Vereinbarung möglich. Bitte beachten Sie, dass aus rechtlichen Gründen nur Anfragen mit vollständiger Angabe der Anschrift und Telefonnummer bearbeitet werden können! Selbstverständlich werden Ihre Daten vertraulich behandelt und nicht an Dritte weitergeleitet. Gerne unterstützen wir Sie auch bei der Finanzierung bei diesem oder einem anderen Objekt. Sprechen Sie uns darauf an, wir beraten Sie gerne. Wir weisen darauf hin, dass wir, mit Ausnahme von Wohnungssuchenden für Mietwohnungen, als Doppelmakler In tätig sind. Nähere Informationen zum Doppelmakler In auf Anfrage gerne.... [Mehr]