VORCHDORF - Büro- und/oder Geschäftsfläche - bis zu 400m² - noch individuell gestaltbar

4655 Vorchdorf / 200m²

#Büro #Handel #Parkmöglichkeit

Beschreibung

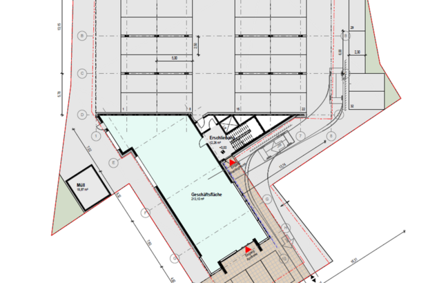
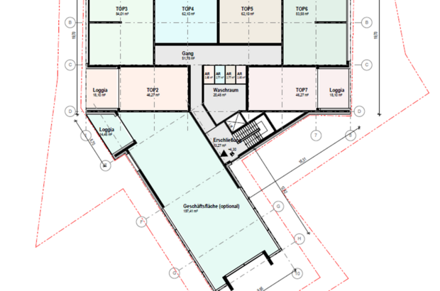
Dieses Projekt richtet sich an Unternehmer: innen, die eine maßgeschneiderte Lösung suchen. Wir entwickeln gemeinsam mit Ihnen ein Geschäftslokal, welches alle Anforderungen Ihres Unternehmens erfüllt und für nahezu alle Dienstleistungen verwendet werden kann. Die verfügbare Fläche im Erdgeschoss beträgt ca. 200 m² und optional könnten wir im 1. Obergeschoss weitere 200 m² anbieten. PARKFLÄCHE: Vor dem Gebäude stehen Kundenparkplätze zur Verfügung. Weiters sind ausreichend Parkplätze für Mitarbeiter: innen vorhanden. LAGE: Vorchdorf bietet eine hervorragende Infrastruktur und eine hohe Lebensqualität. Aufgrund der räumlichen Nähe zur malerischen Traunsee-Stadt Gmunden (ca. 3,5 km vom Zentrum) ist die Lage sehr gefragt! Auch die Auffahrt zur A1 ist in wenigen Minuten erreichbar (ca. 2 km).