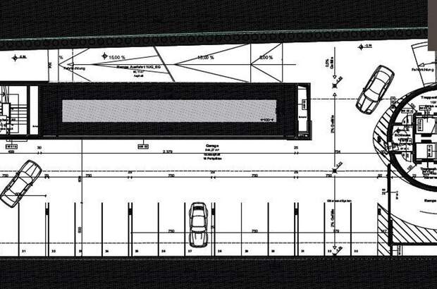
Lage- und Objektbeschreibung: Auf einem ca. 1.300m² großen Grundstück in der Triester Straße im 23. Wiener Gemeindebezirk soll ein Bürogebäude errichtet werden. Die Baubewilligung wurde vor Kurzem erteilt und wird in Kürze Ihre Rechtskraft erlangen. Insgesamt können ca. 3.840m² an verwertbarer Fläche errichtet werden. Diese verteilen sich auf zwei Untergeschosse, 34 Stellplätze sollen in der Tiefgarage entstehen. Es sind zwei Stiegenhäuser vorgesehen, welche jeweils mit Aufzügen ausgestattet werden sollen. Im Innenbereich des Gebäudes verbirgt sich ein Hofgarten und in mehreren Geschoßen sind Terrassen vorgesehen. Zum Verkauf gelangt die Liegenschaft samt der Baubewilligung. Gerne stellen wir weitere Unterlagen zur Verfügung. Flächenaufstellung (verwertbare Fläche): Erdgeschoss - ca. 643m² 1. Obergeschoss - ca. 930m² 2. Obergeschoss - ca. 856m² 3. Obergeschoss - ca. 843m² Dachgeschoss - ca. 572m² Summe verwertbare Fläche - ca. 3.843m² Im 1. und 2. Obergeschoss als auch im Dachgeschoss sind jeweils Terrassen vorgesehen. Kaufpreis: Der Kaufpreis liegt bei EUR 3.070.000, . Dies entspricht einem Kaupreis von ca. EUR 800, /m² erzielbarer Nutzfläche. Wir weisen darauf hin, dass zwischen dem Vermittler und dem zu vermittelnden Dritten ein familiäres oder wirtschaftliches Naheverhältnis besteht. Der Vermittler ist als Doppelmakler tätig. DECUS Immobilien GmbH - Wir beleben Räume Für weitere Informationen und Besichtigungen steht Ihnen gerne Frau Mag. (FH) Anita Kronaus-Buchegger unter der Mobilnummer [Tel] und per E-Mail unter [Email] persönlich zur Verfügung. www.decus.at | [Email] Wichtige Informationen Bitte beachten Sie, dass per 13.06.2014 eine neue Richtlinie für Fernabsatz- und Auswärtsgeschäfte in Kraft getreten ist. Ab 1.4.2024 entfallen die Grundbuchs- und Pfandrechtseintragungsgebühren vorübergehend für Eigenheime bis zu einer Bemessungsgrundlage von EUR 500.000,-. Voraussetzung ist das dringende Wohnbedürfnis, ausgenommen davon sind vererbte oder geschenkte Immobilien. Die Befreiung ist jedoch für den Einzelfall zu prüfen, DECUS Immobilien übernimmt hierzu keine Haftung. Ab 01.07.2023 gilt das Erstauftraggeber-Prinzip bei Wohnungsmietverträgen, ausgenommen davon sind Dienst-/Natural-/Werkswohnungen. Wir dürfen gem. § 17 Maklergesetz darauf hinweisen, dass wir auf die Doppelmaklertätigkeit gem. § 5 Maklergesetz bei Wohnungsmietverträgen verzichten und nur noch einseitig tätig sind (bei den restlichen Vermittlungsarten nicht) und ein wirtschaftliches Naheverhältnis zu unseren Auftraggebern besteht. Im Falle eines Abschlusses mit Ihnen oder einem von Ihnen namhaft gemachten Dritten bzw. bei beidseitiger Willensübereinstimmung beträgt unser Honorar (lt. Honorarverordnung für Immobilienmakler) 2 Bruttomonatsmieten (BMM) bei Dienst-/Natural-/Werkwohnungen sowie Suchaufträgen, 3 BMM bei Gewerbe-, PKW-, Keller- und Lagermietverträgen sowie bei Kaufobjekten 3 % des Kaufpreises, zuzüglich der gesetzlichen Umsatzsteuer. Dieses Objekt wird Ihnen unverbindlich und freibleibend angeboten. Oben angeführte Angaben basieren auf Informationen und Unterlagen des Eigentümers und sind unsererseits ohne Gewähr. Nähere Informationen sowie unsere AGBs und die Nebenkostenübersichtsblatt finden Sie auf unserer Homepage www.decus.at unter "Service" - "Rechtliches zum FAGG" sowie im Anhang der zugesendeten Objekt-Exposés! Infrastruktur / Entfernungen Gesundheit Arzt <500m Apotheke <1.000m Klinik <2.000m Krankenhaus <2.000m Kinder & Schulen Schule <1.000m Kindergarten <500m Universität <5.000m Höhere Schule <4.500m Nahversorgung Supermarkt <500m Bäckerei <2.000m Einkaufszentrum <1.000m Sonstige Geldautomat <1.000m Bank <2.000m Post <1.500m Polizei <1.500m Verkehr Bus <500m U-Bahn <1.000m Straßenbahn <2.500m Bahnhof <500m Autobahnanschluss <1.000m Angaben Entfernung Luftlinie / Quelle: Open Street Map... [Mehr]