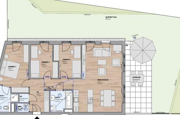
4-Zimmer Gartenwohnung mit großer Terrasse - Top 3.06

3002 Purkersdorf / 99m² / 4 Zimmer

#Dachgeschoss #Balkon #Garten #Parkmöglichkeit #Terrasse

Beschreibung

In der zentrumsnahen Wintergasse 39 im beliebten Purkersdorf, errichten wir eine moderne Wohnhausanlage. Diese fügt sich harmonisch in den Hang ein, besteht aus 4 Wohnhäusern mit insgesamt 48 Wohnungen (2-, 3-, 4- und 5-Zimmer Wohnungen), 74 KFZ-Tiefgaragenplätzen, sowie 8 Stellplätzen für Motorräder. Fertigstellung: spätestens Ende April 2027 PROVISIONSFREI vom Bauträger Das Team von Geiger Immobilien freut sich auf Ihre Anfrage! Infrastruktur / Entfernungen Gesundheit Arzt <300m Klinik <5.850m Apotheke <475m Krankenhaus <6.175m Kinder & Schulen Schule <250m Kindergarten <475m Universität <4.400m Nahversorgung Supermarkt <325m Bäckerei <500m Einkaufszentrum <2.675m Sonstige Geldautomat <475m Bank <375m Post <550m Polizei <350m Verkehr Bus <425m Straßenbahn <5.475m U-Bahn <5.775m Bahnhof <625m Autobahnanschluss <2.900m Angaben Entfernung Luftlinie / Quelle: Open Street Map Lage: Purkersdorf liegt an der westlichen Grenze zu Wien, direkt am Wienerwald. Zur Bahn, welche Sie in circa 20 Minuten... [Mehr]