Büro kaufen in Wien 23.,Liesing
13 bis 24 von 102
SuchagentE-Mail Suchagent anlegen
Geben Sie einen Namen für das Suchprofil ein:
Geben sie Ihre E-Mail Adresse ein:
Keine gültige E-Mail-Adresse
Durch klicken auf Speichern akzeptiere ich die
Nutzungsbedingungen und
Datenschutzrichtlinien
Ihr Suchagent wurde gespeichert!
Prüfen Sie bitte Ihren Posteingang und aktivieren Sie den Suchagenten.
Sie können Ihren Suchagenten über die Suchagent E-Mail verwalten.
OKGewerbeobjekt kaufen in 1230 Wien
1230 Wien / 3840m²
€ 799,48 / m²
#Büro #Parkmöglichkeit #Terrasse
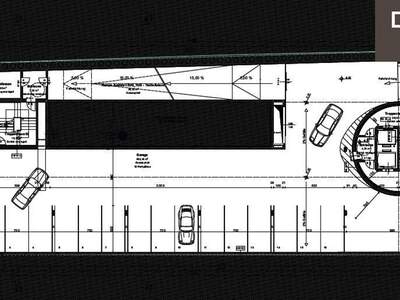
Lage- und Objektbeschreibung: Auf einem ca. 1.300m² großen Grundstück in der Triester Straße im 23. Wiener Gemeindebezirk soll ein Bürogebäude errichtet werden. Die Baubewilligung wurde vor Kurzem erteilt und wird in Kürze Ihre Rechtskraft erlangen. Insgesamt können ca. 3.840m² an verwertbarer Fläche errichtet werden. Diese verteilen sich auf zwei Untergeschosse, 34 Stellplätze sollen in der Tiefgarage entstehen. Es sind zwei Stiegenhäuser vorgesehen, welche jeweils mit Aufzügen ausgestattet werden sollen. Im Innenbereich des Gebäudes verbirgt sich ein Hofgarten und in mehreren Geschoßen sind Terrassen vorgesehen. Zum Verkauf gelangt die Liegenschaft samt der Baubewilligung. Gerne stellen wir weitere Unterlagen zur Verfügung. Flächenaufstellung (verwertbare Fläche): Erdgeschoss - ca. 643m² 1. Obergeschoss - ca. 930m² 2. Obergeschoss - ca. 856m² 3. Obergeschoss - ca. 843m² Dachgeschoss - ca. 572m² Summe verwertbare Fläche - ca. 3.843m² Im 1. und 2. Obergeschoss als auch im Dachgeschoss sind jeweils Terrassen vorgesehen. Kaufpreis: Der Kaufpreis liegt bei EUR 3.070.000, . Dies entspricht einem Kaupreis von ca. EUR 800, /m² erzielbarer Nutzfläche. Wir weisen darauf hin, dass zwischen dem Vermittler und dem zu vermittelnden Dritten ein familiäres oder wirtschaftliches Naheverhältnis besteht. Der Vermittler ist als Doppelmakler tätig. DECUS Immobilien GmbH - Wir beleben Räume Für weitere Informationen und Besichtigungen steht Ihnen gerne Frau Mag. (FH) Anita Kronaus-Buchegger unter der Mobilnummer [Tel] und per E-Mail unter [Email] persönlich zur Verfügung. www.decus.at | [Email] Wichtige Informationen Bitte beachten Sie, dass per 13.06.2014 eine neue Richtlinie für Fernabsatz- und Auswärtsgeschäfte in Kraft getreten ist. Ab 1.4.2024 entfallen die Grundbuchs- und Pfandrechtseintragungsgebühren vorübergehend für Eigenheime bis zu einer Bemessungsgrundlage von EUR 500.000,-. Voraussetzung ist das dringende Wohnbedürfnis, ausgenommen davon sind vererbte oder geschenkte Immobilien. Die Befreiung ist jedoch für den Einzelfall zu prüfen, DECUS Immobilien übernimmt hierzu keine Haftung. Ab 01.07.2023 gilt das Erstauftraggeber-Prinzip bei Wohnungsmietverträgen, ausgenommen davon sind Dienst-/Natural-/Werkswohnungen. Wir dürfen gem. § 17 Maklergesetz darauf hinweisen, dass wir auf die Doppelmaklertätigkeit gem. § 5 Maklergesetz bei Wohnungsmietverträgen verzichten und nur noch einseitig tätig sind (bei den restlichen Vermittlungsarten nicht) und ein wirtschaftliches Naheverhältnis zu unseren Auftraggebern besteht. Im Falle eines Abschlusses mit Ihnen oder einem von Ihnen namhaft gemachten Dritten bzw. bei beidseitiger Willensübereinstimmung beträgt unser Honorar (lt. Honorarverordnung für Immobilienmakler) 2 Bruttomonatsmieten (BMM) bei Dienst-/Natural-/Werkwohnungen sowie Suchaufträgen, 3 BMM bei Gewerbe-, PKW-, Keller- und Lagermietverträgen sowie bei Kaufobjekten 3 % des Kaufpreises, zuzüglich der gesetzlichen Umsatzsteuer. Dieses Objekt wird Ihnen unverbindlich und freibleibend angeboten. Oben angeführte Angaben basieren auf Informationen und Unterlagen des Eigentümers und sind unsererseits ohne Gewähr. Nähere Informationen sowie unsere AGBs und die Nebenkostenübersichtsblatt finden Sie auf unserer Homepage www.decus.at unter "Service" - "Rechtliches zum FAGG" sowie im Anhang der zugesendeten Objekt-Exposés! Infrastruktur / Entfernungen Gesundheit Arzt <500m Apotheke <1.000m Klinik <2.000m Krankenhaus <2.000m Kinder & Schulen Schule <1.000m Kindergarten <500m Universität <5.000m Höhere Schule <4.500m Nahversorgung Supermarkt <500m Bäckerei <2.000m Einkaufszentrum <1.000m Sonstige Geldautomat <1.000m Bank <2.000m Post <1.500m Polizei <1.500m Verkehr Bus <500m U-Bahn <1.000m Straßenbahn <2.500m Bahnhof <500m Autobahnanschluss <1.000m Angaben Entfernung Luftlinie / Quelle: Open Street Map... [Mehr]
Gewerbeobjekt kaufen in 1230 Wien
Betriebsliegenschaft mit Potential zu verkaufen!
€ 5.000.000,-
1230 Wien / 2762m²
€ 1.810,28 / m²
#Büro #Halle #Werkstatt
Aktuell verfügt die Liegenschaft über eine Halle mit etwa 1.200 m2 sowie eine Werkstätte mit etwa 500 m2 . Zusätzlich sind noch ca. 620 m2 an Flächen im Bürotrakt sowie eine überdachte, jedoch einseitig offene Fläche mit ca. 260 m2 vorhanden. Der befestigte Innenhof bietet nochmals ca. 920 m2 an Fläche. Stellplätze für 20 mehrspurige KFZ sind sowohl im Innenhof als auch an der Nordseite auf Eigengrund vorhanden. Ein großes Asset dieser Liegenschaft ist die herausragende Bebaubarkeit. So bietet das Grundstück durch die aktuelle Widmung (IG 16 bzw. 26m) laut einer ersten Studie Potenzial für knapp 11.000 m2 an entwickelbarer Fläche. Sollten wir Ihr Interesse geweckt haben, dann vereinbaren Sie noch heute einen Besichtigungstermin inklusive persönlichem Beratungsgespräch! Bitte beachten Sie, dass wir aufgrund der Nachweispflicht gegenüber dem Eigentümer nur Anfragen mit vollständiger Angabe ihrer Kontaktdaten (Anschrift, Telefonnummer, E-Mailadresse) bearbeiten können. Felix Grundnig, [Tel] Noch nichts gefunden? Wir informieren Sie über geeignete Immobilienangebote noch vor allen anderen. Legen Sie jetzt Ihren individuellen Suchagenten unter folgendem Link an. Wir schicken Ihnen passende Immobilien exklusiv vorab zu. Suchagent anlegen - https://eurea-real-estates.service.immo/registrieren/de Lage: Die verkaufsgegenständliche Liegenschaft befindet sich im 23. Wiener Gemeindebezirk im Gewerbegebiet zwischen der Brunner Straße sowie der Breitenfurter Straße. Über die Brunner Straße ist eine schnelle Anbindung an das Autobahnnetz gegeben. Öffentlich ist die Liegenschaft per Bus sowie dem in Gehweite befindlichen Bahnhof Wien Liesing hervorragend angebunden.... [Mehr]
Haus kaufen in 1230 Wien
Rodaun: "Architektonische Präsenz zwischen Wien und Perchtoldsdorf" | ZELLMANN IMMOBILIEN
€ 1.195.000,-
1230 Wien / 265m² / 7,5 Zimmer
€ 4.509,43 / m²
#Büro #Garten #Keller #Parkmöglichkeit #Terrasse #ruhig
Residenz in absoluter Grünruhelage! Architektonische Präsenz zwischen Wien und Perchtoldsdorf QUICKREAD: Alles auf einen Blick Objekttyp: Exklusive Residenz in absoluter Grünruhelage Lage: Hochstraße 7, 1230 Wien – an der Grenze zu Perchtoldsdorf Wohnnutzfläche: ca. 265 m² Grundstück: ca. 325 m² Terrassenflächen: ca. 126 m² auf drei Ebenen Zimmer: 7,5 Bäder: 3Stellplätze: mehrere Fahrzeuge im Innenhof möglich Carport: vorhanden Zufahrt: komfortabel über automatisches Garagentor Baujahr: 1994 Generalsanierung: 2016 Dacherneuerung: 2022 Heizung: Fußbodenheizung (Gas) | Fernwärme optional ab 2026 oder einfach auf Luft/Wärmepumpe umrüstbar Besonderheit: außergewöhnlich großzügiger Stauraum unter der Gartenterrasse VB: € 1.195.000,–Eine Adresse mit Haltung An der Schnittstelle zwischen Wien und dem historischen Perchtoldsdorf entsteht ein Lebensraum, der urbane Infrastruktur mit landschaftlicher Weite verbindet. Diese Liegenschaft liegt diskret zurückversetzt und öffnet sich nach hinten vollständig ins Grüne – mit freiem Blick auf unbebaute Flächen. Ruhe. Licht. Weite. Ein Rückzugsort für Menschen, die Privatsphäre schätzen und Qualität erkennen. ●●●Eine Residenz von außergewöhnlicher Präsenz Architektur entfaltet hier Wirkung über drei Ebenen – großzügig, klar, selbstverständlich elegant. Raumhöhen von bis zu vier Metern verleihen dem Wohnbereich eine fast skulpturale Wirkung. Großflächige Verglasungen mit Raffstores inszenieren Licht und Natur wie ein lebendiges Gemälde. Die Materialwahl folgt einem kompromisslosen Anspruch: geölte Eiche, Naturstein, maßgefertigte Tischlerelemente, moderne Badarchitektur. Nichts wirkt beliebig. Alles wirkt stimmig. Hier entsteht ein Wohngefühl von diskreter, internationaler Klasse. Wohnen als Inszenierung von Raum und Licht Der offene Wohn-Ess-Bereich bildet das Zentrum dieser Residenz. Die Raumhöhe, die Blickachsen und der fließende Übergang auf die Terrassen schaffen eine Atmosphäre von Weite und Leichtigkeit. Ein stilvoll integrierter Kamin setzt einen architektonischen Akzent. Die maßgefertigte Tischlerküche mit Granitplatte und hochwertiger Geräteausstattung verbindet Designästhetik mit technischer Präzision. Großzügigkeit ist hier kein Versprechen — sie ist Realität. Flexible Nutzung mit zusätzlichem Zugang im Erdgeschoss Ein besonderes Qualitätsmerkmal dieser Immobilie ist der zusätzliche Eingang im Erdgeschoss, der neue Möglichkeiten eröffnet. So eignet sich das Haus nicht nur als exklusive Familienresidenz, sondern ebenso ideal für eine repräsentative Büronutzung, eine Praxislösung oder einen separaten Wohnbereich für Jugendliche oder Gäste. Diese architektonische Flexibilität schafft ein Wohnkonzept, das Privatsphäre und Funktion auf höchstem Niveau verbindet. Private Rückzugsbereiche mit Charakter Die oberen Ebenen bieten Rückzugsräume von außergewöhnlicher Qualität. Ein Masterbereich mit begehbarer Garderobe, großzügige Zimmer, weiterer Terrassen und moderne Bäder schaffen ein Ambiente, das Ruhe und Repräsentation in Balance bringt. Die klare architektonische Struktur erlaubt flexible Nutzung — ob als exklusive Familienresidenz oder in Kombination mit anspruchsvollem Arbeiten von zuhause. Außenflächen mit Panoramaqualität Rund 126 m² Terrassenfläche auf vier Ebenen erweitern den Wohnraum ins Freie. Die Hauptterrasse eröffnet einen unverbaubaren Grünblick. Weitere Terrassenebenen schaffen private Rückzugsorte für jede Tageszeit. Der gepflegte Garten bildet eine geschützte Oase – ruhig, sonnig, hochwertig eingebettet. Stauraum neu gedacht Ein klassischer Keller wurde hier bewusst durch eine intelligentere Lösung ersetzt: Unter der Gartenterrasse befindet sich ein außergewöhnlich großzügiger Stauraumbereich, der in Dimension und Nutzbarkeit weit über herkömmliche Kellerräume hinausgeht. Ob Lager, Hobbybereich oder funktionale Erweiterung – diese Fläche bietet Substanz mit Mehrwert. Optimale Parkmöglichkeiten direkt am Objekt Der an das Haus angrenzende Gartenbereich im Hinterhof bietet hervorragendes Potenzial zur Umgestaltung in eine großzügige Stellfläche für mehrere Fahrzeuge. Ein Carport ist bereits vorhanden. Die Zufahrt erfolgt komfortabel über ein automatisches Garagentor, das diskrete und sichere Erreichbarkeit gewährleistet. Privates Parken auf eigenem Grund – ein nicht zu unterschätzender Luxus in dieser Lage. Lagequalität mit internationalem Anspruch Diese Adresse verbindet Wiener Stadtkomfort mit Perchtoldsdorfer Lebensqualität. Natur beginnt hier vor der Haustüre – Wienerwald, Heide, Weinberge. Gleichzeitig sind Schulen, Infrastruktur, öffentliche Verkehrsanbindungen sowie Nahversorgung bequem erreichbar. Eine Lage, die Ruhe, Wertstabilität und Lebensqualität in sich vereint. Zusammenfassung Diese Immobilie ist keine gewöhnliche Liegenschaft. Sie ist eine Residenz mit architektonischer Präsenz. Mit Großzügigkeit in Raum und Außenflächen. Mit Substanz, Stil und langfristiger Werthaltigkeit. Ein diskretes Statement für Menschen, die Exzellenz als selbstverständlich betrachten. Noch nichts gefunden? Wir informieren Sie über geeignete Immobilienangebote noch vor allen anderen. Legen Sie jetzt Ihren individuellen Suchagenten unter folgendem Link an. Wir schicken Ihnen passende Immobilien exklusiv vorab zu. -> Suchagent anlegen Der Vermittler ist als Doppelmakler tätig. Unser Service – Vertrauen. Service. Qualität. Bei ZELLMANN IMMOBILIEN legen wir größten Wert auf persönliche Beratung, Transparenz und Service auf höchstem Niveau. Jede Besichtigung ist unverbindlich und findet in entspannter Atmosphäre statt. Nach Vertragsabschluss übernehmen wir selbstverständlich sämtliche Formalitäten – von der Übergabedokumentation bis zur Abstimmung mit Hausverwaltung und Energieversorgern. Ihr Anliegen ist bei uns in den besten Händen – auch nach Vertragsabschluss. Rechtliche Hinweise Bitte überprüfen Sie nach Übermittlung Ihrer Anfrage auch Ihren SPAM- bzw. WERBE-Ordner, da automatisierte E-Mail-Zustellungen technisch bedingt fallweise dort eingeordnet werden können. Wir bearbeiten Anfragen üblicherweise innerhalb weniger Stunden, auch an Wochenenden. Die Bekanntgabe einer Telefonnummer erfolgt freiwillig; diese kann ausschließlich zur ergänzenden Verständigung (z. B. SMS-Benachrichtigung über die Exposé-Übermittlung) verwendet werden. Dieses Angebot ist unverbindlich und freibleibend. Alle Angaben erfolgen auf Basis von Informationen des Eigentümers und vorliegenden Unterlagen; eine Haftung für Richtigkeit, Vollständigkeit und Aktualität wird nicht übernommen. Änderungen, Irrtümer, Zwischenverkauf sowie Abweichungen bleiben vorbehalten. Flächenangaben sind ca.-Werte. Das Exposé stellt kein verbindliches Angebot dar. Im Erfolgsfall beträgt die Käuferprovision 3 % des Kaufpreises zzgl. 20 % USt gemäß §§ 6 ff MaklerG und Immobilienmaklerverordnung, BGBl. 262/1996 idg F. Bei Mietobjekten gilt das gesetzliche Bestellerprinzip (§ 17a Makler G): Provision ist von jener Partei zu tragen, die den Makler zuerst beauftragt hat; für Wohnungssuchende fällt grundsätzlich keine Provision an. Infrastruktur / Entfernungen Gesundheit Arzt <500m Apotheke <500m Klinik <500m Krankenhaus <1.000m Kinder & Schulen Schule <500m Kindergarten <1.000m Universität <6.000m Höhere Schule <7.500m Nahversorgung Supermarkt <500m Bäckerei <1.500m Einkaufszentrum <2.000m Sonstige Geldautomat <1.000m Bank <1.000m Post <1.000m Polizei <2.000m Verkehr Bus <500m U-Bahn <4.000m Straßenbahn <500m Bahnhof <2.000m Autobahnanschluss <3.500m Angaben Entfernung Luftlinie / Quelle: Open Street Map... [Mehr]
Haus kaufen in 1230 Wien
€ 1.990.000,-
1230 Wien / 307m² / 14 Zimmer
€ 6.482,08 / m²
#Büro #Villa #Altbau #Garten #Keller #Terrasse #hell
Diese beeindruckenden Villa, im malerischen Mauer, liegt in der Nähe des Maurer Hauptplatz, in der Endresstraße 125. Sie bietet Ihnen die perfekte Kombination aus modernem Wohnen, großzügigem Platzangebot und einer traumhaften Umgebung. Die Villa wird mit spätestens Juli bestandsfrei übergeben, derzeit wird der 1. Stock als Ordination, der 2.Stock als Bürogenutzt, im DG befindet sich eine Wohnung. Auf einer großzügigen Wohnfläche von 307 m² erstrecken sich insgesamt 14 lichtdurchflutete Zimmer, die Ihnen unzählige Gestaltungsmöglichkeiten bieten. Hier können Sie Ihre Wohnträume verwirklichen, sei es ein luxuriöses Familienheim, ein kreatives Büro oder auch eine Kombination aus beidem. Die Villa besticht nicht nur durch ihre Größe, sondern auch durch dias vorhandenen Potential in der Raumgestaltung. Es gibt 3 Etagen plus Souterrain bzw. Keller. Die Innenausstattung und die Erhaltung der Altbaudetails sind ebenso beeindruckend. Hochwertiger Parkettboden und teilweise Teppichböden schaffen eine angenehme Wohnatmosphäre. In jeder etage kann unkomliziert bei Bedarf eine Küche installiert werden, im der 1. Etage biete sich dazu die Möglichkeit in jedem Raum. Weiter finden Sie hier drei Bäder und vier separate WCs, der Keller ist teilweise Souterrain, ist mit Fenstern belichtet, biete Platz für einen Fitnesssraum, eine Sauna ist bereits vorhanden. Die Küche im DG ist nicht im Kaufpreis inkludiert. Genießen Sie entspannte Stunden auf der großzügigen Terrasse mit einem atemberaubenden Ausblick ins Grüne – ein echter Rückzugsort mitten in der Stadt! Die Lage der Villa ist ein weiterer Pluspunkt. Sie profitieren von einer hervorragenden Verkehrsanbindung durch Bus und Straßenbahn, sodass Sie schnell und unkompliziert in die Innenstadt und zu weiteren Stadtteilen gelangen. Die Umgebung bietet Ihnen alle Annehmlichkeiten des täglichen Lebens. In unmittelbarer Nähe finden Sie Ärzte, Apotheken, Schulen und Kindergärten sowie Supermärkte und Bäckereien – alles, was Sie für ein komfortables Leben benötigen, ist nur wenige Minuten entfernt. Erleben Sie die Symbiose aus urbanem Leben und ruhiger Naturnähe in dieser einzigartigen Villa. Nebenkosten Kauf: Kaufvertragserrichtung nach Vereinbarung Grundbuchseintragung 1,1% des KP Grunderwerbssteuer 3,5% des KP Provision 3% des KP zzgl. 20% Ust. Die Angaben beruhen auf Informationen der Eigentümer bzw. des Bauamtes und sind ohne Gewähr. Der vermittelnde Makler übernimmt keinerlei Gewähr oder Haftung für die tatsächliche Energieeffizienz des Gebäudes. Der Vermittler ist als Doppelmakler tätig. Infrastruktur / Entfernungen Gesundheit Arzt <500m Apotheke <500m Klinik <2.000m Krankenhaus <2.000m Kinder & Schulen Schule <500m Kindergarten <500m Universität <4.000m Höhere Schule <6.000m Nahversorgung Supermarkt <500m Bäckerei <500m Einkaufszentrum <2.000m Sonstige Geldautomat <500m Bank <500m Post <500m Polizei <2.500m Verkehr Bus <500m U-Bahn <4.000m Straßenbahn <500m Bahnhof <2.000m Autobahnanschluss <4.500m Angaben Entfernung Luftlinie / Quelle: Open Street Map... [Mehr]
Eigentumswohnung in 1230 Wien
1230 Wien / 126,82m² / 3 Zimmer
€ 5.511,75 / m²
#Büro #Dachgeschoss #Kellerabteil #Parkmöglichkeit #Terrasse
Diese hochwertig ausgebaute Dachgeschosswohnung mit großzügiger Raumstruktur überzeugt durch ihre moderne Ausstattung, die offene Wohnatmosphäre sowie die attraktive Terrassenfläche. Raumhöhen von bis zu ca. 3,80 m sorgen für ein besonders luftiges Wohngefühl und unterstreichen den exklusiven Dachgeschoss-Charakter. Der weitläufige Wohn- und Essbereich mit integrierter Küche bildet das Herzstück der Wohnung und bietet mit über 57 m² viel Platz für individuelles Wohnen und stilvolle Einrichtungsmöglichkeiten. Die direkt angeschlossene Terrasse erweitert den Wohnraum ins Freie. Highlights auf einen Blick Ca. 57,26 m² Wohn- und Küchenbereich Schlafzimmer mit ca. 22,13 m²Weiteres Zimmer mit ca. 18,30 m²Terrasse mit ca. 8,30 m²Raumhöhen bis ca. 3,80 m Fußbodenheizung (Fernwärme) Integrierte Klimaanlage (DAIKIN) Smart-Home-System (Licht, Beschattung, Heizung, Raumklima) Badezimmer mit Dusche und Wanne Separates WCAbstellraum Garderobe Kellerabteil Optional anmietbarer Parkplatz (ca. € 90 / Monat) Betriebskosten ca. € 247,20Dachgeschossausbau 2014 Kein Lift im Haus Raumaufteilung Vorzimmer Großzügiger Wohn-/Essbereich mit offener Küche Schlafzimmer Zweites Zimmer (Büro/Kinder-/Gästezimmer) Badezimmer Separates WCAbstellraum Garderobe Terrasse Lage & Infrastruktur Die Wohnung befindet sich in urbaner Lage mit guter Infrastruktur. Einkaufsmöglichkeiten, Gastronomie sowie öffentliche Verkehrsanbindungen befinden sich in angenehmer Erreichbarkeit und sorgen für eine komfortable Alltagsgestaltung. Besichtigung & Kontakt Besichtigungen sind nach Vereinbarung möglich. Bitte senden Sie uns Ihre Anfrage mit vollständigen Kontaktdaten (Name, Adresse, Telefonnummer und E-Mail-Adresse), damit wir Ihnen Unterlagen und Termine zukommen lassen können. Finanzierungsservice Gerne unterstützen wir Sie bei der Finanzierung Ihrer Wunschimmobilie. Gemeinsam mit unseren erfahrenen Partnerbanken finden wir optimale und individuell abgestimmte Konditionen. Hinweise Alle Angaben erfolgen nach bestem Wissen und Gewissen. Irrtümer, Änderungen und Druckfehler vorbehalten. Für die Richtigkeit der von Eigentümerseite bzw. Dritten übermittelten Informationen wird keine Haftung übernommen. Hinweis gemäß Energieausweisvorlagegesetz Ein Energieausweis wurde vom Eigentümer bzw. Verkäufer, nach unserer Aufklärung über die ab 1.12.2012 geltende generelle Vorlagepflicht, sowie Aufforderung zu seiner Erstellung noch nicht vorgelegt. Daher gilt zumindest eine dem Alter und der Art des Gebäudes entsprechende Gesamtenergieeffizienz als vereinbart. Wir übernehmen keinerlei Gewähr oder Haftung für die tatsächliche Energieeffizienz der angebotenen Immobilie. Hinweis gemäß Energieausweisvorlagegesetz: Ein Energieausweis wurde vom Eigentümer bzw. Verkäufer, nach unserer Aufklärung über die generell geltende Vorlagepflicht, sowie Aufforderung zu seiner Erstellung noch nicht vorgelegt. Daher gilt zumindest eine dem Alter und der Art des Gebäudes entsprechende Gesamtenergieeffizienz als vereinbart. Wir übernehmen keinerlei Gewähr oder Haftung für die tatsächliche Energieeffizienz der angebotenen Immobilie. Wir weisen darauf hin, dass zwischen dem Vermittler und dem zu vermittelnden Dritten ein familiäres oder wirtschaftliches Naheverhältnis besteht. Der Vermittler ist als Doppelmakler tätig. Infrastruktur / Entfernungen Gesundheit Arzt <1.000m Apotheke <1.000m Klinik <1.000m Krankenhaus <1.000m Kinder & Schulen Schule <500m Kindergarten <1.000m Universität <4.000m Höhere Schule <3.500m Nahversorgung Supermarkt <500m Bäckerei <1.000m Einkaufszentrum <1.000m Sonstige Geldautomat <1.000m Bank <1.000m Post <1.500m Polizei <1.000m Verkehr Bus <500m U-Bahn <1.500m Straßenbahn <1.500m Bahnhof <1.500m Autobahnanschluss <1.500m Angaben Entfernung Luftlinie / Quelle: Open Street Map... [Mehr]
Büro / Praxis kaufen in 1230 Wien
1230 Wien / 39,49m² / 1 Zimmer
€ 5.320,13 / m²
#Büro #Balkon #Terrasse
Hier wartet ein Neubau-Traumprojekt auf Sie - Optimal geplant + Wohnkomfort in jedem Winkel! Perfekt als Anlage als auch für Eigennutzer! Lebenswert / Grün / Kompakt und Leistbar / Moderner Neubau / Energieeffizient 22 ideal geplante Wohnungen mit Größen von ca. 30m² bis ca. 50m² - alle mit Balkon/Terrasse oder Loggia - werden Sie verzaubern! Hier finden Sie für ein faires Budget und jeden Geschmack die richtige Wohnung! Fertigstellung: Bereits fertiggestellt und bezugsfertig! Highlights: Freiflächen bei allen Einheiten + Hochwertige Ausstattung + Fußbodenheizung + Luftwärmepumpe und Photovoltaik-Anlage + 3-fach isolierte Fenster + Raffstores + Sicherheitstüren Ihr neuer Praxis-Standort! Ideal investiert - Bus vor der Türe! Energieeffizienz durch Photovoltaikanlage und Wärmepumpe! Ruhige Seitengasse + Faires Preis-Leistungs-Verhältnis + Perfekte Anbindung und Nahversorgung! TOP 1 (EG): Ihr neuer Praxis-Standort wird Sie restlos begeistern und teilt sich in einen kleinen Vorraum mit Platz für eine Garderobe, ein großzügiges und schönes Badezimmer mit Walk-In Dusche und WC, eine leicht separate Küche, sowie einen großzügigen Behandlungsraum bzw. Arbeitsbereich. So klein, so fein, so rentabel! Nutzfläche: ca. 39,49m² + Loggia: ca. 4,04m² Kaufpreis für Anleger: ? 210.092.- netto + 20% UST Kaufpreis für Eigennutzer: ? 229.000.- Niedrige monatliche Kosten durch Wärmepumpe + Photovoltaikanlage! Bezug: ab sofort Folgende Wohnungen wurden bereits erfolgreich verkauft: TOP 18, TOP 22, TOP 14, TOP 5 Die Einschätzung der Betriebskosten erfolgt noch seitens der Hausverwaltung und wird nachgereicht. Worauf warten Sie noch? Verwirklichen Sie Ihren Wohntraum jetzt! Gerne senden wir Ihnen auch Unterlagen zu den weiteren verfügbaren Einheiten zu, sowie umfassende Vertragsunterlagen... www.schantl-ith.at Bei konkretem Interesse senden wir Ihnen sehr gerne weiterführende Dokumente zu, wie: o Grundbuchauszug o Wohnungseigentumsvertrag o Nutzwertgutachten... [Mehr]
Eigentumswohnung in 1230 Wien
1230 Wien / 101,97m² / 3,5 Zimmer
€ 4.212,02 / m²
#Büro #Balkon #Parkmöglichkeit #hell #möbliert #ruhig
Am südlichen Ende der Rudolf-Zellergasse in Wien-Liesing befindet sich diese freundliche und hervorragend geschnittene 3,5-Zimmer-Eigentumswohnung im 1. Obergeschoss. Die Wohnung überzeugt durch ihre ruhige Lage, viel Tageslicht sowie einen wunderschönen Ausblick ins Grüne. Mit einer Wohnnutzfläche von ca. 102,5 m² bietet die Wohnung ein ideales Zuhause für Familien, Paare mit Platzbedarf oder für Wohnen und Arbeiten unter einem Dach. Bei Bedarf kann mit wenig Aufwand ein 4. Zimmer wieder baulich abgetrennt werden. Die aktuelle Raumaufteilung ist vom Bestandsplan leicht abweichend. Raumaufteilung Großzügiges Wohnzimmer Zwei Schlafzimmer Separates Büro Komplett ausgestattete Küche Badezimmer Separates WC Abstellraum Sonnige Loggia Die süd- bis südwestseitige Ausrichtung sorgt für helle, freundliche Wohnräume. Besonders hervorzuheben ist der freie Blick auf ein unbebautes, öffentliches Grundstück mit Föhrenwald und Grünfläche ein echtes Plus an Ruhe und Lebensqualität. Ausstattung Hochwertige Eiche-Parkettböden in allen Wohnräumen Fliesen in Bad, WC und Küche Kunststoffbelag im Abstellraum Komplett eingerichtete Küche Maßgefertigte Einbaumöbel im Schlafzimmer und im Büro Gemeinschaftliche SAT-TV-Anlage Gas-Zentralheizung Die Wohnung präsentiert sich gepflegt und bietet eine solide, zeitlose Ausstattung. Zusätzlicher Komfort Im Untergeschoss befinden sich: Eine eigene, abgetrennte und absperrbare Garage (ca. 20 m²) Ein eigener Hobby- bzw. Lagerraum (ca. 11 m²) Zusätzlich steht eine gemeinschaftlich genutzte Waschküche mit Waschmaschine und Wäschetrockner zur Verfügung. An der Nordwestseite der Anlage befindet sich ein Grünbereich zur gemeinschaftlichen Nutzung. Lage & Infrastruktur Die Verkehrsanbindung ist ausgezeichnet: Buslinie 66A in nur ca. 150 m Entfernung Schnellbahn und weitere Buslinien am Liesinger Platz (ca. 600 m) Gute Erreichbarkeit mit dem Auto Zusätzliche Parkmöglichkeiten vor der Wohnanlage Beste Nahversorgung in fußläufiger Umgebung: Liesinger Platz mit Geschäften, Post und Markt Einkaufscenter Riverside (ca. 57 Gehminuten) Ärzte im Umkreis von 300600 m Polizei am Liesinger Platz Kindergarten (öffentlich ca. 200 m, privat ca. 150 m) Kaufpreis: EUR 429.500,00 Nebenkosten bei Kauf der Immobilie: Kaufvertragserrichtung: nach Vereinbarung Grundbucheintragung: 1,1% des Kaufpreises Grunderwerbssteuer: 3,5% des Kaufpreises Provision: 3% des Kaufpreises zzgl. 20% USt. Für weitere Fragen oder eine Besichtigung steht Ihnen Herr DI Constantin Mayer gerne unter [Tel] oder [Email] zur Verfügung. Wir dürfen gem. § 5 Maklergesetz darauf hinweisen, dass wir als Doppelmakler tätig sind und ein wirtschaftliches/familiäres Naheverhältnis zu unseren Auftraggebern besteht. Das wirtschaftliche Naheverhältnis ergibt sich aus regelmäßiger geschäftlicher Verbindung. Irrtum vorbehalten. Wir weisen darauf hin, dass zwischen dem Vermittler und dem zu vermittelnden Dritten ein familiäres oder wirtschaftliches Naheverhältnis besteht. Der Vermittler ist als Doppelmakler tätig. Infrastruktur / Entfernungen Gesundheit Arzt... [Mehr]
Haus kaufen in 1230 Wien
Gartenparadies in Maurer Bestlage
€ 1.200.000,-
1230 Wien,Liesing / 143m² / 6,5 Zimmer
€ 8.391,61 / m²
#Büro #Einfamilienhaus #Garten #Terrasse #hell #renovierungsbedürftig #ruhig
Uneinsichtiges Traumgrundstück mit Einfamilienhaus in 1230 Wien Lage Dieses Einfamilienhaus befindet sich in einer der begehrtesten Wohngegenden des 23. Bezirks – in **Mauer**, unweit des idyllischen Maurer Waldes und der berühmten Weinberge. Die ruhige Fahnengrundstück-Situation sorgt für absolute Privatsphäre, die Straße ist uneinsichtig und vermittelt ein Gefühl von Abgeschiedenheit, während Einkaufsmöglichkeiten, Schulen und öffentliche Verkehrsmittel bequem erreichbar sind. Zahlreiche Sport- und Freizeitmöglichkeiten befinden sich in unmittelbarer Umgebung. Grundstück Größe: **863 m²**Beschaffenheit: eben, idyllisch und bestens nutzbaroffene Bauweise - 30% verbaubar Pool mit Überdachung Outdoor-Saunahaus PKW-Einfahrt vorhanden Haus Das Einfamilienhaus mit **Flachdach** ist nicht unterkellert und bietet eine großzügige Raumaufteilung mit vielfältigen Möglichkeiten zur individuellen Gestaltung. Das Gebäude ist **sanierungsbedürftig**, birgt aber enormes Potenzial für modernes Wohnen in Bestlage. Optimale Raumhöhe von ca. 2,67 cm sowohl im UG als auch im OG! Erdgeschoss (ca. 76,3 m² + 12,65 m² Wintergarten) Großzügiger, heller Wohnbereich Moderne, offene Küche mit Verbindung zum Wohnbereich Wintergarten mit direktem Gartenzugang Zwei zusätzliche Zimmer (flexibel nutzbar, z. B. als Büro, Gäste- oder Hobbyräume) Möglichkeit zur Errichtung eines zusätzlichen Badezimmers Obergeschoss (ca. 53,6 m² + ca. 18 m² Terrasse) Drei Schlafzimmer, davon ein großes Schlafzimmer mit zwei Türen – bei Bedarf teilbar in zwei Räume Badezimmer mit Tageslicht Terrasse (ca. 18 m²), von allen Schlafzimmern aus begehbar Ausstattung & Besonderheiten Gasheizung vorhanden Wintergarten mit Blick in den Garten Pool mit Überdachung – ideal zum ganzjährigen Nutzen Outdoor-Saunahaus Großzügige Sonnenterrasse im Obergeschoß PKW-Einstellung direkt am Grundstück möglich Highlights Maurer Premium-Lage** inmitten von Natur und Weinbergen Ruhiges Fahnengrundstück, uneinsichtig von der Straße Familiengerechte Raumaufteilung, flexibel adaptierbar Großzügiges Grundstück mit vielen Freizeitmöglichkeiten Perfekte Kombination aus idyllischer Ruhe und städtischer Anbindung Verkehrsanbindung & Infrastruktur Öffentliche Verkehrsmittel (Buslinien, Anschluss an U6 und S-Bahn in erreichbarer Nähe) Geschäfte des täglichen Bedarfs, Schulen und Kindergärten in wenigen Minuten erreichbar Nähe zu Sportanlagen, Rad- und Wanderwegen, sowie den traditionsreichen Heurigen von Mauer Kaufpreis: € 1.200.000, Käuferprovision: 3% + 20% USt. RECHTLICHE HINWEISE: Wir ersuchen um Verständnis, dass wir von Ihnen vor der Zusendung des Exposés die Bestätigung des sofortigen Tätigwerdens sowie die Bestätigung über die Aufklärung des Rücktrittrechtes gemäß FAGG (Fern- und Auswärtsgeschäfte-Gesetz) benötigen. Anschließend freuen wir uns über eine Terminvereinbarung. Am 20. März 2024 wurde im Nationalrat die temporäre Befreiung von den Gebühren für die Eintragung von Eigentumsrecht und Pfandrecht (Bis 500.000 Euro) im Grundbuch bei Erwerb von Wohnraum beschlossen. (Zu Beachten sind die Bedingungen lt. Bundesministerium für Justiz). Die Verpflichtung zur Zahlung einer Vermittlungsprovision entsteht für Sie selbstverständlich nur bei erfolgreicher Vermittlung und wird erst mit der Rechtswirksamkeit des vermittelten Geschäftes fällig. Wir können, aufgrund des bestehenden Geschäftsgebrauchs, als Doppelmakler tätig sein. Die Angaben beruhen teilweise auf Informationen des Eigentümers und sind ohne Gewähr! Der Vermittler ist als Doppelmakler tätig. Infrastruktur / Entfernungen Gesundheit Arzt <1.000m Apotheke <1.000m Klinik <2.000m Krankenhaus <2.000m Kinder & Schulen Schule <500m Kindergarten <1.000m Universität <3.500m Höhere Schule <6.500m Nahversorgung Supermarkt <1.000m Bäckerei <1.000m Einkaufszentrum <2.500m Sonstige Geldautomat <1.000m Bank <1.000m Post <1.000m Polizei <3.000m Verkehr Bus <500m U-Bahn <4.500m Straßenbahn <1.000m Bahnhof <2.500m Autobahnanschluss <4.500m Angaben Entfernung Luftlinie / Quelle: Open Street Map... [Mehr]
Büro / Praxis kaufen in 1230 Wien
NEUBAU | BÜRO | PRAXIS | ERLAAER150
€ 179.816,-
1230 Wien / 28,85m² / 1 Zimmer
€ 6.232,79 / m²
#Büro #Handel #Garten #Parkmöglichkeit #Terrasse
| THE 150 | Fertigstellung Q4 - 2025 Vereinbaren Sie JETZT einen Termin für die Besichtigung der Musterwohnungen (2 und 3 Zimmer) Willkommen zu unserem exklusiven Neubauprojekt in einer ruhigen Nebenstraße Wiens mit 16 hochwertigen Eigentumswohnungen sowie einem Geschäftslokal. Diese Wohnungen bieten Singles, Anlegern und Familien gleichermaßen ein perfektes Zuhause, mit einer Auswahl von 1 bis 4 Zimmern für ein vielfältiges Wohnkonzept. Architektonisches Konzept: Das Objekt besteht aus zwei Bauteilen, wobei die meisten Wohneinheiten eine eigene Außenfläche besitzen. Alle Dachgeschoßwohnungen sowie das Townhouse sind mit großzügigen Dachterrassen ausgestattet. Materialien und Technik: Hochwertige und Umweltfreundliche Materialien, moderne ALU-Kunststoff Fenster und Luft-Wasser-Wärmepumpe für Heizung, Warmwasser und Kühlung sorgen für erstklassigen Komfort und reduzieren den CO2 Fußabdruck des Gebäude erheblich. Besondere Highlights: Massive Ziegel-Bauweise Umweltfreundliche Glaswolle für optimale Dämmung und Nachhaltigkeit Luft-Wasser-Wärmepumpe mit PV-Unterstützung für niedrigsten Energieverbrauch Komfortable Ausstattung mit Fußbodenheizung und Handtuchtrockner in den Badezimmern Fenster mit 3-fach-Isolierverglasung und UV-Schutz Wohnungseingangstüren für maximale Sicherheit und Brandschutz Effiziente Energieausnutzung mit niedrigem Heizwärmebedarf Klimatisierung für ganzjährigen Komfort Ab dem 1.OG ist eine Vorbereitung für die Split Geräte in jedem Wohnraum vorhanden Jeder Garagenplatz verfügt über eine ? Wallbox? Elektroladestation Die Wohnung sind mit einer Videogegensprechanlage ausgestattet Schlüsselfertiges Paket: Jede Wohnung wird mit einem hochwertigen Schlüsselfertig-Paket ausgestattet, das höchsten Ansprüchen an Qualität und Design gerecht wird. Die Ausstattung umfasst elegante Dielenböden, die einen Hauch von Luxus verleihen, sowie exquisit gestaltete Sanitäranlagen, die Komfort und Eleganz vereinen. Darüber hinaus zeichnen sich die Badezimmer durch erstklassige Fliesen aus, die eine harmonische Atmosphäre schaffen und den zeitlosen Stil der Wohnungen unterstreichen. Freiflächen und Ausstattung: Ein kleiner Kinderspielplatz und eine Eigengartenzone zwischen den Gebäuden bieten zusätzlichen Freiraum. Die Tiefgarage... [Mehr]
Gewerbeobjekt kaufen in 1230 Wien
1230 Wien,Liesing / 2900m² / 38 Zimmer
€ 2.034,48 / m²
#Büro #Halle #Terrasse
Produktion - Büro - Lager - Kundendienst - Auslieferung - alles in Einem! Modern, klimatisiert und optimal strukturiert. Hier können Sie sich auf ca. 6.981 m² verwirklichen. Widmung GB BG II g BB1, max. 12 m Grundstücksgröße ca. 6.981 m² Verbaute Fläche ca. 2.680 m² Nutzfläche ca. 2.900 m² bestehend aus: Bauteil 1: EG + OG mit Empfang, 25 Büros, Teeküche und 8 Nassräumen. Verbindung: EG + OG mit Aufenthaltsraum, Kantine und Terrasse. Bauteil 2: EG + OG mit Kundendienst, Lager, 10 Büros und 4 Nassräumen. Bauteil 3: Halle mit 3 Büros, Nassräume mit Umkleide, diverse 8 Meter Hochregal-Lager, Schlosserei, zwei 5-Tonnen-Kränen, einem 2-Tonnen-Kran, Rolltor mit B x H von 460 x 460 cm für LKW oder Sattelschlepper. Parkplätze für 60 PKW, davon 4 mit E-Tankstelle. Freiplatz für Altstoff-Container. Ein modernes, vielseitig verwendbares Objekt, in gut erreichbarer Lage! Wir weisen darauf hin, dass zwischen dem Vermittler und dem zu vermittelnden Dritten ein familiäres oder wirtschaftliches Naheverhältnis besteht. Der Vermittler ist als Doppelmakler tätig. Infrastruktur / Entfernungen Gesundheit Arzt Apotheke Klinik Krankenhaus Kinder & Schulen Schule Kindergarten Universität Höhere Schule Nahversorgung Supermarkt Bäckerei Einkaufszentrum Sonstige Geldautomat Bank Post Polizei Verkehr Bus U-Bahn Straßenbahn Bahnhof Autobahnanschluss Angaben Entfernung Luftlinie / Quelle: Open Street Map... [Mehr]
Gewerbeobjekt kaufen in 1230 Wien
1230 Wien,Liesing / 101,58m² / 1 Zimmer
€ 3.238,83 / m²
#Büro #Handel #Erstbezug #Parkmöglichkeit
City Garden: Ihr neuer ARBEITSRAUM zwischen Rosenhügel und Liesingbach Am Rosenhügel entsteht ein Wohnprojekt, das modernen Komfort, historische Details und eine nachhaltige Lebensweise harmonisch miteinander verbindet. Das Ensemble umfasst vier stilvolle Neubauten MIT 130 WOHNEINHEITEN und 9 BÜROS. Zum Verkauf gelangt ein Büro mit 101,58qm Nutzfläche im Erdgeschoss mit Zugang über die Gatterederstraße im Osten. Die Bürofläche gliedert sich in einen 99,22qm großen Arbeitsraum mit 4,15qm großem Abstellraum und einem kleinen Vorraum ( 3,73qm) mit Handwaschbecken zum WC (1,48qm). Über Fußbodenheizung wird beheizt und im Sommer gekühlt - die Wärme dafür liefert eine eigene Energiezentrale über Erdsonden, Wärmetauscher und Photovoltaik. Für Komfort sorgen eine Tiefgarage mit direkten Lift zu den Gebäuden, Stellplätze für PKWs und Motorräder (teilweise mit E-Ladestationen) sowie moderne Gemeinschaftsräume wie ein Paketraum, Fahrrad- und Kinderwagenabstellräume. Die großzügig gestalteten Außenflächen mit Spielplätzen für verschiedene Altersgruppen laden zum Entspannen, Spielen und Verweilen ein. Das gesamte Projekt setzt ein starkes Zeichen für Nachhaltigkeit und Innovation, MIT FERTIGSTELLUNG - HERBST 2027. Der Verkauf erfolgt provisionsfrei für den Käufer. Der Vermittler ist als Doppelmakler tätig. Wir weisen darauf hin, dass zwischen dem Vermittler und dem zu vermittelnden Dritten ein familiäres oder wirtschaftliches Naheverhältnis besteht. Der Vermittler ist als Doppelmakler tätig. Infrastruktur / Entfernungen Gesundheit Arzt Apotheke Klinik Krankenhaus Kinder & Schulen Schule Kindergarten Universität Höhere Schule Nahversorgung Supermarkt Bäckerei Einkaufszentrum Sonstige Geldautomat Bank Post Polizei Verkehr Bus U-Bahn Straßenbahn Bahnhof Autobahnanschluss Angaben Entfernung Luftlinie / Quelle: Open Street Map... [Mehr]
Gewerbeobjekt kaufen in 1230 Wien
1230 Wien / 98m² / 3 Zimmer
€ 6.377,55 / m²
#Büro #Handel #Erstbezug #Terrasse
Über die Geschäftsfläche Diese 98 m² große Gewerbefläche im Erdgeschoss eines modernen Mehrfamilienhauses besticht durch eine klare Struktur und ein hochwertiges Ambiente. Direkt vom Eingang führt der Weg in einen über 31 m² großen, offen gestalteten Büroraum, der sich ideal als repräsentativer Empfang oder großzügige Arbeitszone anbietet. Im Zentrum der Fläche befindet sich die offene Küche, die als funktionaler Mittelpunkt den Übergang zwischen den Arbeitsbereichen bildet. Unmittelbar rechts davon liegt ein separates, ca. 14 m² großes Büro, das durch eine Tür abgeschlossen ist und somit den nötigen Rückzugsort für vertrauliche Gespräche oder konzentriertes Arbeiten bietet. Links der Küche ist der Sanitärbereich untergebracht. Ein knapp 10 m² großer Gang führt schließlich in den hinteren, ruhigen Teil der Einheit: Dort erstreckt sich ein zweiter, weitläufiger Büroraum mit über 37 m², der vielfältige Nutzungsmöglichkeiten für Teams oder Konferenzen eröffnet. Die gesamte Fläche ist ausstattungstechnisch auf einem hohen Stand. Elektrische Außenjalousien ermöglichen an allen Fenstern eine präzise Steuerung der Lichtverhältnisse. Das Gebäude besteht aus insgesamt drei Einheiten und bietet damit ideale Voraussetzungen für ein kombiniertes Wohn- und Arbeitskonzept. Neben der Gewerbefläche im Erdgeschoss stehen in den oberen Geschossen zwei Maisonettewohnungen zur Verfügung. So besteht die Möglichkeit, eine oder beide Wohnungen zu erwerben und das eigene Geschäft direkt im selben Haus zu betreiben – kurze Wege, klare Trennung von Wohnen und Arbeiten und maximale Flexibilität inklusive. Die Raumaufteilung im Detail• Büroraum mit ca. 31,06 m² • Büroraum mit ca. 37,93 m² • Separater Büroraum mit ca. 13,71 m² • Gang mit ca. 9,49 m² • Küche mit ca. 6,39 m² • WC mit ca. 5,94 m²• Terrasse mit ca. 19,76 m²Aufgrund der Nachweispflicht gegenüber dem Eigentümer können nur schriftliche Anfragen mit vollständigen Kontaktdaten (Name, Anschrift, Tel.-Nr., E-Mail) beantwortet werden. Irrtum und Änderungen vorbehalten. Oben angeführte Angaben basieren auf Informationen und Unterlagen des Eigentümers und sind unsererseits ohne Gewähr. Noch nichts gefunden? Wir informieren Sie über geeignete Immobilienangebote noch vor allen anderen. Legen Sie jetzt Ihren individuellen Suchagenten unter folgendem Link an. Wir schicken Ihnen passende Immobilien exklusiv vorab zu. Suchagent anlegen - https://avana-real-estate.service.immo/registrieren/de Wir weisen darauf hin, dass zwischen dem Vermittler und dem zu vermittelnden Dritten ein familiäres oder wirtschaftliches Naheverhältnis besteht. Der Vermittler ist als Doppelmakler tätig. Infrastruktur / Entfernungen Gesundheit Arzt <500m Apotheke <1.000m Klinik <1.500m Krankenhaus <500m Kinder & Schulen Schule <1.000m Kindergarten <500m Universität <3.500m Höhere Schule <4.500m Nahversorgung Supermarkt <1.000m Bäckerei <1.000m Einkaufszentrum <2.500m Sonstige Geldautomat <1.500m Bank <1.500m Post <1.500m Polizei <2.000m Verkehr Bus <500m U-Bahn <2.500m Straßenbahn <1.000m Bahnhof <1.500m Autobahnanschluss <3.000m Angaben Entfernung Luftlinie / Quelle: Open Street Map... [Mehr]



























