Lager und Hallen kaufen im Bezirk Waidhofen an der Thaya
(Niederösterreich)
1 bis 3
SuchagentE-Mail Suchagent anlegen
Geben Sie einen Namen für das Suchprofil ein:
Geben sie Ihre E-Mail Adresse ein:
Keine gültige E-Mail-Adresse
Durch klicken auf Speichern akzeptiere ich die
Nutzungsbedingungen und
Datenschutzrichtlinien
Ihr Suchagent wurde gespeichert!
Prüfen Sie bitte Ihren Posteingang und aktivieren Sie den Suchagenten.
Sie können Ihren Suchagenten über die Suchagent E-Mail verwalten.
OKGewerbeobjekt kaufen in 3902 Vitis
3902 Vitis / 64628m²
#Halle
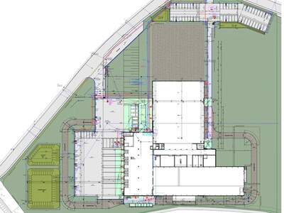
Das Industrie- und Gewerbeareal in Holzpark 1, 3902 Vitis, verfügt über eine Gesamtfläche von 64.628 m² und stellt einen hochattraktiven Standort im Waldviertel, Niederösterreich, dar. Vitis liegt nahe der tschechischen Grenze im Bezirk Waidhofen an der Thaya und ist Teil einer Region mit einer Einwohnerzahl von ca. 215.000. Von der Gesamtfläche sind bereits rund 34.000 m² bebaut, inklusive Außenanlagen und Einfriedung, während etwa 31.000 m² als Grundstücksreserve zur Verfügung stehen. Die Widmung als Bauland Betriebsgebiet unterstreicht die gewerbliche Ausrichtung des Standortes. Ein weiteres herausragendes Merkmal ist das erhebliche Erweiterungspotenzial: Mündliche Vorabstimmungen mit der Gemeinde ermöglichen den Bau von bis zu vier weiteren Produktionshallen mit einer zusätzlichen Gesamtfläche von bis zu 15.469 m². Dies eröffnet Ihnen einzigartige Möglichkeiten für zukünftiges Wachstum. Lage: Die Lage nahe der tschechischen Grenze bietet eine strategische Ausgangsposition für grenzüberschreitende Transporte. Die Anbindung an das überregionale Straßennetz erfolgt über Landesstraßen, um den Transport von Rohstoffen und Fertigprodukten zu gewährleisten. Hinweis gemäß Energieausweisvorlagegesetz: Ein Energieausweis wurde vom Eigentümer bzw. Verkäufer, nach Aufklärung über die ab 1.12.2012 geltende generelle Vorlagepflicht, noch nicht vorgelegt.... [Mehr]
Gewerbeobjekt kaufen in 3902 Vitis
3902 Vitis / 9400m²
#Halle
Das Industrie- und Gewerbeareal in Holzpark 1, 3902 Vitis, verfügt über eine Gesamtfläche von 64.628 m² und stellt einen hochattraktiven Standort im Waldviertel, Niederösterreich, dar. Vitis liegt nahe der tschechischen Grenze im Bezirk Waidhofen an der Thaya und ist Teil einer Region mit einer Einwohnerzahl von ca. 215.000. Von der Gesamtfläche sind bereits rund 34.000 m² bebaut, inklusive Außenanlagen und Einfriedung, während etwa 31.000 m² als Grundstücksreserve zur Verfügung stehen. Die Widmung als Bauland Betriebsgebiet unterstreicht die gewerbliche Ausrichtung des Standortes. Ein weiteres herausragendes Merkmal ist das erhebliche Erweiterungspotenzial: Mündliche Vorabstimmungen mit der Gemeinde ermöglichen den Bau von bis zu vier weiteren Produktionshallen mit einer zusätzlichen Gesamtfläche von bis zu 15.469 m². Dies eröffnet Ihnen einzigartige Möglichkeiten für zukünftiges Wachstum.... [Mehr]
Gewerbeobjekt kaufen in 3830 Waidhofen
3830 Waidhofen an der Thaya / 12000m²
€ 665,83 / m²
#Büro #Halle
Auf einem großzügigen Areal von ca. 20.000 m² erstreckt sich dieses vielseitige Betriebsobjekt, das ehemals von einer Produktionsfirma genutzt wurde und jetzt zum Verkauf steht. Die Liegenschaft umfasst insgesamt ca. 15.000 m² Nutzfläche, aufgeteilt in: 2.000 m² Büroflächen: Moderne und funktionale Einheiten für administrative Zwecke.10.000 m² Produktions- und Lagerflächen, unterteilt in: 7.000 m² Produktionsfläche3.000 m² Lagerfläche Das Objekt wurde zuletzt im Jahr 2005 erweitert und befindet sich in gutem Zustand, wodurch es für eine Vielzahl von gewerblichen Nutzungen geeignet ist. Derzeit sind einige Flächen für gewerbliche Vermietung genutzt. Dieses Betriebsobjekt bietet eine einzigartige Gelegenheit für Unternehmen, die eine große und vielseitig nutzbare Immobilie suchen, sowie für Investoren, die von der nachhaltigen Nachfrage nach Gewerbeflächen in der Region profitieren möchten. Auf Anfrage stelle wir Ihnen gerne die aktuelle Zinsliste zur Verfügung. FLEXIBILITÄT und INVESTMENTPOTENTIAL Das historisch gewachsene Objekt bietet die Möglichkeit, verschiedene Sektionen in kleinere, autonome Einheiten zu unterteilen. Diese können flexibel vermietet werden. Bestehende Mietverträge über Büro- und Lagereinheiten können übernommen oder aufgelöst werden. Neben der Eigennutzung stellt die Immobilie eine attraktive Investmentmöglichkeit dar: Bestehende Vermietungen: Einzelne Büro- und Lagerflächen sind bereits vermietet, wodurch sofortige Einnahmen möglich sind. Nachfrage: Die geringe Verfügbarkeit vergleichbarer Flächen in der Region und die Größe der Einheiten machen diese Immobilie besonders lukrativ. Investition in eine 800 k WP Photovoltaik Anlage: Mit einen fixen Jahreseinnahmen von € 83.600 pro Jahr für 20 Jahre Getätigte SANIERUNGEN & NACHHALTIGE PHOTOVOLTAIK-ANLAGEDachsanierung: Teilflächen der Anlage wurde in den Jahren 2023/2024 durchgeführt. Attraktive 800 k Wp Photovoltaik-Anlage: Nachhaltige Energie für die Zukunft Eine hochmoderne Photovoltaikanlage mit einer beeindruckenden Leistung von 800 k Wp bietet eine nachhaltige und effiziente Lösung zur Stromerzeugung. Dank der optimalen Sonneneinstrahlung von 1.045 kWh/k Wp an diesen Standort, erzeugt die Anlage jährlich etwa 836.000 kWh umweltfreundlichen Strom. Vorteile der Photovoltaik-Anlage: Hohe Energieproduktion: Mit einer jährlichen Stromerzeugung von ca. 836.000 kWh deckt die Anlage den Bedarf zahlreicher Haushalte und Unternehmen. Zuverlässige Einnahmen: Durch die Wahl eines Stromabnehmers wie EVN oder Oe MAG sichern Sie sich stabile Einnahmen. Beispiel Oe MAG: Im April betrug der Marktpreis 4,66 Cent/kWh. Zusätzliche Marktprämie: Profitieren Sie von der Marktprämie, die als Aufschlag auf den Referenzmarktwert gewährt wird. Im April betrug die Marktprämie 6,21 Cent/kWh, was zu einem Gesamtpreis von 10,87 Cent/kWh führte. Langfristige Sicherheit: Die Marktprämie bietet eine Absicherung bei niedrigen Marktpreisen und garantiert Ihnen mindestens €83.600 pro Jahr, fixiert auf 20 Jahre. Ausstattung Energieversorgung: 5x 630 k VA sowie ein Notstromaggregat für höchste Betriebssicherheit. Heizung: Effiziente Gasheizung. Internet: Glasfaserverbindung für schnelle und zuverlässige Datenübertragungen. Sicherheit: Einzäunung des gesamten Geländes, Sprinkleranlage und Rauchmelder in allen Gebäudebereichen. Technische Ausstattung: Teilweise eingebaute Überhangkräne in den Flächeneinheiten. Highlights Moderne Heizungs- und Klimatisierungssysteme. Hervorragende Infrastruktur mit leistungsstarker Energiezufuhr und Glasfaserinternet. Attraktives Vermietungspotenzial durch flexible Raumaufteilung. Günstige Lage mit sehr guter Anbindung für internationale Unternehmen. Kaufpreis: ist zuzüglich der gesetzlichen Umsatzsteuer Vereinbaren Sie noch heute einen Besichtigungstermin und lassen Sie sich von dieser beeindruckenden Gewerbeimmobilie überzeugen! Wir freuen uns darauf, Sie persönlich zu begrüßen. Bei weiteren Fragen stehen wir Ihnen jederzeit unter [Telefonnummer entfernt] zur Verfügung oder senden Sie uns eine E-Mail an [E-Mail-Adresse entfernt]. Besuchen Sie www.froeschl.estate und entdecken Sie weitere 360º virtuelle Rundgänge sowie die neuesten Objekte! Gerne unternehmen wir auch gemeinsam mit Ihnen geführte virtuelle Besichtigungen! Unsere Angaben basieren auf den Informationen des Eigentümers; Änderungen und Irrtümer sind vorbehalten. Sie möchten den Wert einer Immobilie wissen? Bewertungen professionell und präzise. FRÖSCHL real estate ermittelt den Verkehrswert Ihrer Liegenschaft. Das schriftliche Bewertungsgutachten ist ein umfangreiches Dokument aus dem dieser hervorgeht. Wir ermitteln abhängig von Ihrem Objekt über den Vergleichswert, den Sachwert oder den Ertragswert, unter Beachtung aller relevanten Unterlagen, den aktuellen Marktwert ihrer Immobilie. Gerne übernehmen wir Bewertungen auch aus anderen Anlässen wie innerfamiliären Angelegenheiten, Erbschaften oder steuerlichen Anforderungen und dergleichen. Hinweis gemäß Energieausweisvorlagegesetz: Ein Energieausweis wurde vom Eigentümer bzw. Verkäufer, nach unserer Aufklärung über die generell geltende Vorlagepflicht, sowie Aufforderung zu seiner Erstellung noch nicht vorgelegt. Daher gilt zumindest eine dem Alter und der Art des Gebäudes entsprechende Gesamtenergieeffizienz als vereinbart. Wir übernehmen keinerlei Gewähr oder Haftung für die tatsächliche Energieeffizienz der angebotenen Immobilie. Wir weisen darauf hin, dass zwischen dem Vermittler und dem zu vermittelnden Dritten ein familiäres oder wirtschaftliches Naheverhältnis besteht. Der Vermittler ist als Doppelmakler tätig. Infrastruktur / Entfernungen Gesundheit Arzt <500m Apotheke <500m Krankenhaus <2.000m Klinik <1.500m Kinder & Schulen Schule <1.500m Kindergarten <5.500m Höhere Schule <9.500m Nahversorgung Supermarkt <500m Bäckerei <1.500m Einkaufszentrum <1.000m Sonstige Bank <1.500m Polizei <1.500m Post <1.500m Geldautomat <1.500m Verkehr Bus <500m Bahnhof <7.500m Angaben Entfernung Luftlinie / Quelle: Open Street Map... [Mehr]






