Suchergebnisse für "doppelhaus in plainfeld"
1 bis 12 von mehr als 120
SuchagentE-Mail Suchagent anlegen
Geben Sie einen Namen für das Suchprofil ein:
Geben sie Ihre E-Mail Adresse ein:
Keine gültige E-Mail-Adresse
Durch klicken auf Speichern akzeptiere ich die
Nutzungsbedingungen und
Datenschutzrichtlinien
Ihr Suchagent wurde gespeichert!
Prüfen Sie bitte Ihren Posteingang und aktivieren Sie den Suchagenten.
Sie können Ihren Suchagenten über die Suchagent E-Mail verwalten.
OKWohnung kaufen in 5325 Plainfeld
4-Zimmer-Gartenwohnung in Plainfeld B1
€ 640.000,-
5325 Plainfeld / 93m² / 4 Zimmer
€ 6.881,72 / m²
#Balkon #Garten #Kellerabteil #Parkmöglichkeit #Terrasse #ruhig
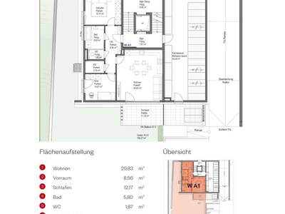
Dieses Neubauprojekt mit drei Wohnhäusern und insgesamt sechzehn exklusiven Wohneinheiten in der Gemeinde Plainfeld bietet hohe Wohnqualität gepaart mit moderner Architektur und attraktiven Außenflächen. Die zusammenhängende Anlage befindet sich in leichter Hanglage, wodurch sich in den obersten Stockwerken der hinteren Gebäude freie Aussichten ergeben. Die nachhaltige Bauweise, das durchdachte Raumkonzept, der Fokus auf hohe Wertigkeit und die ruhige Lage im Grünen lassen Wohnträume wahr werden. Willkommen bei Ihrem Logenplatz im Grünen. Der Baubeginn ist mit 2026 geplant. WOHNRAUM Diese Vierzimmerwohnung B1 liegt im Erdgeschoss des mittleren Wohnhauses. Die ca. 94 m 2 Wohnfläche sind wohldurchdacht angelegt, sodass man vom zentralen Gang alle Zimmer begehen kann. Das Highlight im Innenraum ist der großzügige und offene ca. 37 m 2 große Wohn/Ess/Kochbereich. Viele Fenster sorgen für eine natürliche und angenehme Wohnatmosphäre. Zum Wohnpaket gehören neben den drei Schlafzimmern auch Bad, ein eigenes WC und Abstellraum, Kellerabteil sowie zwei Tiefgaragenplätze. Die Kosten für einen Tiefgaragenstellplatz betragen € 28.000,-. Ein weiteres Highlight dieser Wohneinheit befindet sich unter freiem Himmel. Von der ca. 14 m 2 großen Terrasse aus hat man Zugang zum ca. 92 m 2 großen Garten - viel Freiraum für Familie und Freunde. Dieses innovative Wohnkonzept überzeugt auf ganzer Linie mit perfekter Raumaufteilung und hohem Wohnkomfort. AUSSTATTUNG Bei der Ausstattung spielt Qualität die tragende Rolle. Das zeigt sich in edlen Eichendielenböden sowie in den 2,1 m hohen Innentüren mit Holzumfassungszarge und stumpf einschlagendem Türblatt oder in den Bädern mit Duscheinlaufrinnen von Geberit und Feinsteinzeugfliesen. Apropos Feinsteinzeug: Dieses wird großformatig auch auf den Terrassen verlegt, sodass Pflege und Lebensdauer davon profitieren. In puncto Nachhaltigkeit hat man mit dreifach verglasten Kunststoff/Alu-Isolierfenstern, Fußbodenheizung mit Raumthermostat sowie Wärmepumpe mit Erdwärme und PV-Anlage für die Allgemeinflächen alle Hausaufgaben gemacht. LAGE Plainfeld ist eine Landgemeinde mit viel Grün und hoher Lebensqualität. Trotzdem ist man dem Stadtleben sowie den wichtigsten Hauptverkehrsadern sehr nah. Nach Salzburg Stadt braucht man mit dem Auto ca. fünfzehn Minuten und zur Autobahn Auffahrt Thalgau ca. fünf Minuten. Hier am Eingangstor zum Salzkammergut ist es auch nicht mehr weit zu Fuschl-, Wolfgang- oder Mondsee. Das Wohnbauprojekt liegt in einer kleinen vorgelagerten Siedlung im Ortsteil Lacknerwinkel. Die Natur mit Wäldern und Wiesen ist bereits mit dem ersten Schritt aus dem Haus sichtbar. Eine Bushaltestelle direkt vor der Haustüre erleichtert den Zugang zum öffentlichen Verkehr. Volksschule, Bank, Gasthaus und Sportplätze findet man im Ortskern von Plainfeld. Hier wohnt man exklusiv, ruhig und trotzdem nah an der Stadt. PERSÖNLICHE BERATUNG Bei Interesse freut sich Herr Haubl auf Ihre Kontaktaufnahme unter [Tel] oder [Email] . Wir beraten Sie gerne und völlig unverbindlich.... [Mehr]
Wohnung mit Balkon kaufen in 5325 Plainfeld
3-Zimmer-Dachgeschosswohnung C5 in Plainfeld
€ 660.000,-
5325 Plainfeld / 87m² / 3 Zimmer
€ 7.586,21 / m²
#Dachgeschoss #Balkon #Kellerabteil #Parkmöglichkeit #Terrasse #ruhig
Dieses Neubauprojekt mit drei Wohnhäusern und insgesamt sechzehn exklusiven Wohneinheiten in der Gemeinde Plainfeld bietet hohe Wohnqualität gepaart mit moderner Architektur und attraktiven Außenflächen. Die zusammenhängende Anlage befindet sich in leichter Hanglage, wodurch sich in den obersten Stockwerken der hinteren Gebäude freie Aussichten ergeben. Die nachhaltige Bauweise, das durchdachte Raumkonzept, der Fokus auf hohe Wertigkeit und die ruhige Lage im Grünen lassen Wohnträume wahr werden. Willkommen bei Ihrem Logenplatz im Grünen. Der Baubeginn ist mit 2026 geplant. WOHNRAUM Diese Dreizimmerwohnung Top C5 liegt im Dachgeschoss des dritten Wohnhauses. Die ca. 88 m 2 Wohnfläche sind wohldurchdacht angelegt und haben mit zwei Schlafzimmern, Bad, eigenem WC, Abstellraum, sowie dem ca. 34 m 2 großen Wohn/Ess/Kochbereich alles im Programm, was gutes Wohnen ausmacht. Viele Fenster sorgen für eine natürliche und angenehme Wohnatmosphäre. Und wer eine Auszeit unter freiem Himmel mit grünen Aussichten genießen möchte, kann sich auf dem ca. 13 m 2 großen Balkon ganz entspannt zurücklehnen. Zum Wohnpaket gehören auch Kellerabteil, Tiefgaragen- und Freistellplatz. Die Kosten für den Tiefgaragenstellplatz betragen € 28.000,-, für den Freistellplatz € 13.000,-. Dieses innovative Wohnkonzept überzeugt auf ganzer Linie mit perfekter Raumaufteilung und hohem Wohnkomfort. AUSSTATTUNG Bei der Ausstattung spielt Qualität die tragende Rolle. Das zeigt sich in edlen Eichendielenböden sowie in den 2,1 m hohen Innentüren mit Holzumfassungszarge und stumpf einschlagendem Türblatt oder in den Bädern mit Duscheinlaufrinnen von Geberit und Feinsteinzeugfliesen. Apropos Feinsteinzeug: Dieses wird großformatig auch auf den Terrassen verlegt, sodass Pflege und Lebensdauer davon profitieren. In puncto Nachhaltigkeit hat man mit dreifach verglasten Kunststoff/Alu-Isolierfenstern, Fußbodenheizung mit Raumthermostat sowie Wärmepumpe mit Erdwärme und PV-Anlage für die Allgemeinflächen alle Hausaufgaben gemacht. LAGE Plainfeld ist eine Landgemeinde mit viel Grün und hoher Lebensqualität. Trotzdem ist man dem Stadtleben sowie den wichtigsten Hauptverkehrsadern sehr nah. Nach Salzburg Stadt braucht man mit dem Auto ca. fünfzehn Minuten und zur Autobahn Auffahrt Thalgau ca. fünf Minuten. Hier am Eingangstor zum Salzkammergut ist es auch nicht mehr weit zu Fuschl-, Wolfgang- oder Mondsee. Das Wohnbauprojekt liegt in einer kleinen vorgelagerten Siedlung im Ortsteil Lacknerwinkel. Die Natur mit Wäldern und Wiesen ist bereits mit dem ersten Schritt aus dem Haus sichtbar. Eine Bushaltestelle direkt vor der Haustüre erleichtert den Zugang zum öffentlichen Verkehr. Volksschule, Bank, Gasthaus und Sportplätze findet man im Ortskern von Plainfeld. Hier wohnt man exklusiv, ruhig und trotzdem nah an der Stadt. PERSÖNLICHE BERATUNG Bei Interesse freut sich Herr Haubl auf Ihre Kontaktaufnahme unter [Tel] oder [Email] . Wir beraten Sie gerne und völlig unverbindlich.... [Mehr]
Wohnung mit Balkon kaufen in 5325 Plainfeld
2-Zimmer-Dachgeschosswohnung B6 - Plainfeld
€ 498.000,-
5325 Plainfeld / 68m² / 2 Zimmer
€ 7.323,53 / m²
#Büro #Dachgeschoss #Balkon #Kellerabteil #Parkmöglichkeit #Terrasse #ruhig
Dieses Neubauprojekt mit drei Wohnhäusern und insgesamt sechzehn exklusiven Wohneinheiten in der Gemeinde Plainfeld bietet hohe Wohnqualität gepaart mit moderner Architektur und attraktiven Außenflächen. Die zusammenhängende Anlage befindet sich in leichter Hanglage, wodurch sich in den obersten Stockwerken der hinteren Gebäude freie Aussichten ergeben. Die nachhaltige Bauweise, das durchdachte Raumkonzept, der Fokus auf hohe Wertigkeit und die ruhige Lage im Grünen lassen Wohnträume wahr werden. Willkommen bei Ihrem Logenplatz im Grünen. Der Baubeginn ist mit 2026 geplant. WOHNRAUM Diese Zweizimmerwohnung Top B6 liegt im Dachgeschoss des zweiten Wohnhauses. Die ca. 68 m 2 Wohnfläche sind wohldurchdacht angelegt und haben mit Schlafzimmer, Duschbad, eigenem WC, Büro sowie dem ca. 32 m 2 großen Wohn/Ess/Kochbereich alles im Programm, was gutes Wohnen ausmacht. Viele Fenster sorgen für eine natürliche und angenehme Wohnatmosphäre. Und wer eine Auszeit unter freiem Himmel mit grünen Aussichten genießen möchte, kann sich auf dem ca. 13 m 2 großen Balkon ganz entspannt zurücklehnen. Zum Wohnpaket gehören auch Kellerabteil ein Tiefgaragen- sowie ein Freistellplatz. Die Kosten für den Tiefgaragenstellplatz betragen € 28.000,-, für den Freistellplatz € 13.000,-. Dieses innovative Wohnkonzept überzeugt auf ganzer Linie mit perfekter Raumaufteilung und hohem Wohnkomfort. AUSSTATTUNG Bei der Ausstattung spielt Qualität die tragende Rolle. Das zeigt sich in edlen Eichendielenböden sowie in den 2,1 m hohen Innentüren mit Holzumfassungszarge und stumpf einschlagendem Türblatt oder in den Bädern mit Duscheinlaufrinnen von Geberit und Feinsteinzeugfliesen. Apropos Feinsteinzeug: Dieses wird großformatig auch auf den Terrassen verlegt, sodass Pflege und Lebensdauer davon profitieren. In puncto Nachhaltigkeit hat man mit dreifach verglasten Kunststoff/Alu-Isolierfenstern, Fußbodenheizung mit Raumthermostat sowie Wärmepumpe mit Erdwärme und PV-Anlage für die Allgemeinflächen alle Hausaufgaben gemacht. LAGE Plainfeld ist eine Landgemeinde mit viel Grün und hoher Lebensqualität. Trotzdem ist man dem Stadtleben sowie den wichtigsten Hauptverkehrsadern sehr nah. Nach Salzburg Stadt braucht man mit dem Auto ca. fünfzehn Minuten und zur Autobahn Auffahrt Thalgau ca. fünf Minuten. Hier am Eingangstor zum Salzkammergut ist es auch nicht mehr weit zu Fuschl-, Wolfgang- oder Mondsee. Das Wohnbauprojekt liegt in einer kleinen vorgelagerten Siedlung im Ortsteil Lacknerwinkel. Die Natur mit Wäldern und Wiesen ist bereits mit dem ersten Schritt aus dem Haus sichtbar. Eine Bushaltestelle direkt vor der Haustüre erleichtert den Zugang zum öffentlichen Verkehr. Volksschule, Bank, Gasthaus und Sportplätze findet man im Ortskern von Plainfeld. Hier wohnt man exklusiv, ruhig und trotzdem nah an der Stadt. PERSÖNLICHE BERATUNG Bei Interesse freut sich Herr Haubl auf Ihre Kontaktaufnahme unter [Tel] oder [Email] . Wir beraten Sie gerne und völlig unverbindlich.... [Mehr]
Wohnung mit Balkon kaufen in 5325 Plainfeld
4-Zimmer-Dachgeschosswohnung A4 in Plainfeld
€ 920.000,-
5325 Plainfeld / 131m² / 4 Zimmer
€ 7.022,90 / m²
#Dachgeschoss #Balkon #Kellerabteil #Parkmöglichkeit #Terrasse #ruhig
Dieses Neubauprojekt mit drei Wohnhäusern und insgesamt sechzehn exklusiven Wohneinheiten in der Gemeinde Plainfeld bietet hohe Wohnqualität gepaart mit moderner Architektur und attraktiven Außenflächen. Die zusammenhängende Anlage befindet sich in leichter Hanglage, wodurch sich in den obersten Stockwerken der hinteren Gebäude freie Aussichten ergeben. Die nachhaltige Bauweise, das durchdachte Raumkonzept, der Fokus auf hohe Wertigkeit und die ruhige Lage im Grünen lassen Wohnträume wahr werden. Willkommen bei Ihrem Logenplatz im Grünen. Der Baubeginn ist mit 2026 geplant. WOHNRAUM Diese Vierzimmerwohnung liegt im Dachgeschoss des ersten Wohnhauses. Die ca. 131 m 2 Wohnfläche sind wohldurchdacht angelegt und haben mit drei Schlafzimmern, zwei Bäder, Abstellraum sowie dem ca. 44 m 2 großen Wohn/Ess/Kochbereich alles im Programm, was gutes Wohnen ausmacht. Viele Fenster sorgen für eine natürliche und angenehme Wohnatmosphäre. Und wer eine Auszeit unter freiem Himmel mit grünen Aussichten genießen möchte, kann sich auf dem ca. 20 m 2 großen Balkon ganz entspannt zurücklehnen. Zum Wohnpaket gehören auch Kellerabteil sowie zwei Tiefgaragenplätze (um je € 28.000,-). Dieses innovative Wohnkonzept überzeugt auf ganzer Linie mit perfekter Raumaufteilung und hohem Wohnkomfort. AUSSTATTUNG Bei der Ausstattung spielt Qualität die tragende Rolle. Das zeigt sich in edlen Eichendielenböden sowie in den 2,1 m hohen Innentüren mit Holzumfassungszarge und stumpf einschlagendem Türblatt oder in den Bädern mit Duscheinlaufrinnen von Geberit und Feinsteinzeugfliesen. Apropos Feinsteinzeug: Dieses wird großformatig auch auf den Terrassen verlegt, sodass Pflege und Lebensdauer davon profitieren. In puncto Nachhaltigkeit hat man mit dreifach verglasten Kunststoff/Alu-Isolierfenstern, Fußbodenheizung mit Raumthermostat sowie Wärmepumpe mit Erdwärme und PV-Anlage für die Allgemeinflächen alle Hausaufgaben gemacht. LAGE Plainfeld ist eine Landgemeinde mit viel Grün und hoher Lebensqualität. Trotzdem ist man dem Stadtleben sowie den wichtigsten Hauptverkehrsadern sehr nah. Nach Salzburg Stadt braucht man mit dem Auto ca. fünfzehn Minuten und zur Autobahn Auffahrt Thalgau ca. fünf Minuten. Hier am Eingangstor zum Salzkammergut ist es auch nicht mehr weit zu Fuschl-, Wolfgang- oder Mondsee. Das Wohnbauprojekt liegt in einer kleinen vorgelagerten Siedlung im Ortsteil Lacknerwinkel. Die Natur mit Wäldern und Wiesen ist bereits mit dem ersten Schritt aus dem Haus sichtbar. Eine Bushaltestelle direkt vor der Haustüre erleichtert den Zugang zum öffentlichen Verkehr. Volksschule, Bank, Gasthaus und Sportplätze findet man im Ortskern von Plainfeld. Hier wohnt man exklusiv, ruhig und trotzdem nah an der Stadt. PERSÖNLICHE BERATUNG Bei Interesse freut sich Herr Haubl auf Ihre Kontaktaufnahme unter [Tel] oder [Email] . Wir beraten Sie gerne und völlig unverbindlich.... [Mehr]
Wohnung kaufen in 5325 Plainfeld
5325 Plainfeld / 71m² / 3 Zimmer
€ 7.014,08 / m²
#Balkon #Garten #Kellerabteil #Parkmöglichkeit #Terrasse #hell #ruhig
Dieses Neubauprojekt mit drei Wohnhäusern und insgesamt sechzehn exklusiven Wohneinheiten in der Gemeinde Plainfeld bietet hohe Wohnqualität gepaart mit moderner Architektur und attraktiven Außenflächen. Die zusammenhängende Anlage befindet sich in leichter Hanglage, wodurch sich in den obersten Stockwerken der hinteren Gebäude freie Aussichten ergeben. Die nachhaltige Bauweise, das durchdachte Raumkonzept, der Fokus auf hohe Wertigkeit und die ruhige Lage im Grünen lassen Wohnträume wahr werden. Willkommen bei Ihrem Logenplatz im Grünen. Der Baubeginn ist mit 2026 geplant. WOHNRAUM Diese Dreizimmerwohnung im Erdgeschoss hat viel zu bieten. Die ca. 72 m 2 Wohnfläche sind wohldurchdacht angelegt, sodass man vom zentralen Vorraum alle Zimmer begehen kann. Das Highlight im Innenraum ist der helle und offene ca. 30 m 2 große Wohn/Ess/Kochbereich. Große Fenster sorgen für eine natürliche Wohnatmosphäre. Zum Wohnpaket gehören neben den beiden Schlafzimmern auch Bad, ein eigenes WC und Abstellraum, Kellerabteil sowie Tiefgaragen- und Freistellplatz. Die Kosten für den Tiefgaragenstellplatz betragen € 28.000,- und für den Freistellplatz € 13.000,-. Das eigentliche Highlight dieser Wohneinheit befindet sich aber unter freiem Himmel. Von der ca. 12 m 2 großen Terrasse aus hat man Zugang zum ca. 166 m 2 großen Garten - viel Freiraum für Familie und Freunde. Dieses innovative Wohnkonzept überzeugt auf ganzer Linie mit perfekter Raumaufteilung und hohem Wohnkomfort. AUSSTATTUNG Bei der Ausstattung spielt Qualität die tragende Rolle. Das zeigt sich in edlen Eichendielenböden sowie in den 2,1 m hohen Innentüren mit Holzumfassungszarge und stumpf einschlagendem Türblatt oder in den Bädern mit Duscheinlaufrinnen von Geberit und Feinsteinzeugfliesen. Apropos Feinsteinzeug: Dieses wird großformatig auch auf den Terrassen verlegt, sodass Pflege und Lebensdauer davon profitieren. In puncto Nachhaltigkeit hat man mit dreifach verglasten Kunststoff/Alu-Isolierfenstern, Fußbodenheizung mit Raumthermostat sowie Wärmepumpe mit Erdwärme und PV-Anlage für die Allgemeinflächen alle Hausaufgaben gemacht. LAGE Plainfeld ist eine Landgemeinde mit viel Grün und hoher Lebensqualität. Trotzdem ist man dem Stadtleben sowie den wichtigsten Hauptverkehrsadern sehr nah. Nach Salzburg Stadt braucht man mit dem Auto ca. fünfzehn Minuten und zur Autobahn Auffahrt Thalgau ca. fünf Minuten. Hier am Eingangstor zum Salzkammergut ist es auch nicht mehr weit zu Fuschl-, Wolfgang- oder Mondsee. Das Wohnbauprojekt liegt in einer kleinen vorgelagerten Siedlung im Ortsteil Lacknerwinkel. Die Natur mit Wäldern und Wiesen ist bereits mit dem ersten Schritt aus dem Haus sichtbar. Eine Bushaltestelle direkt vor der Haustüre erleichtert den Zugang zum öffentlichen Verkehr. Volksschule, Bank, Gasthaus und Sportplätze findet man im Ortskern von Plainfeld. Hier wohnt man exklusiv, ruhig und trotzdem nah an der Stadt. PERSÖNLICHE BERATUNG Bei Interesse freut sich Herr Haubl auf Ihre Kontaktaufnahme unter [Tel] oder [Email]. Wir beraten Sie gerne und völlig unverbindlich.... [Mehr]
Wohnung kaufen in 5325 Plainfeld
5325 Plainfeld / 73m² / 3 Zimmer
€ 6.821,92 / m²
#Balkon #Garten #Kellerabteil #Parkmöglichkeit #Terrasse #ruhig
Dieses Neubauprojekt mit drei Wohnhäusern und insgesamt sechzehn exklusiven Wohneinheiten in der Gemeinde Plainfeld bietet hohe Wohnqualität gepaart mit moderner Architektur und attraktiven Außenflächen. Die zusammenhängende Anlage befindet sich in leichter Hanglage, wodurch sich in den obersten Stockwerken der hinteren Gebäude freie Aussichten ergeben. Die nachhaltige Bauweise, das durchdachte Raumkonzept, der Fokus auf hohe Wertigkeit und die ruhige Lage im Grünen lassen Wohnträume wahr werden. Willkommen bei Ihrem Logenplatz im Grünen. Der Baubeginn ist mit 2026 geplant. WOHNRAUM Diese Dreizimmerwohnung C2 liegt im Erdgeschoss des dritten Wohnhauses. Die ca. 73 m 2 Wohnfläche sind wohldurchdacht angelegt, sodass man vom zentralen Gang alle Zimmer begehen kann. Das Highlight im Innenraum ist der großzügige und offene ca. 30 m 2 große Wohn/Ess/Kochbereich. Viele Fenster sorgen für eine natürliche und angenehme Wohnatmosphäre. Zum Wohnpaket gehören neben den zwei Schlafzimmern auch Bad, ein eigenes WC und Abstellraum, Kellerabteil sowie ein Tiefgaragen- und ein Freistellplatz. Die Kosten für einen Tiefgaragenstellplatz betragen € 28.000,-, für den Freistellplatz € 13.000,-. Ein weiteres Highlight dieser Wohneinheit befindet sich unter freiem Himmel. Von der ca. 14 m 2 großen Terrasse aus hat man Zugang zum ca. 75 m 2 großen Garten - viel Freiraum für Familie und Freunde. Dieses innovative Wohnkonzept überzeugt auf ganzer Linie mit perfekter Raumaufteilung und hohem Wohnkomfort. AUSSTATTUNG Bei der Ausstattung spielt Qualität die tragende Rolle. Das zeigt sich in edlen Eichendielenböden sowie in den 2,1 m hohen Innentüren mit Holzumfassungszarge und stumpf einschlagendem Türblatt oder in den Bädern mit Duscheinlaufrinnen von Geberit und Feinsteinzeugfliesen. Apropos Feinsteinzeug: Dieses wird großformatig auch auf den Terrassen verlegt, sodass Pflege und Lebensdauer davon profitieren. In puncto Nachhaltigkeit hat man mit dreifach verglasten Kunststoff/Alu-Isolierfenstern, Fußbodenheizung mit Raumthermostat sowie Wärmepumpe mit Erdwärme und PV-Anlage für die Allgemeinflächen alle Hausaufgaben gemacht. LAGE Plainfeld ist eine Landgemeinde mit viel Grün und hoher Lebensqualität. Trotzdem ist man dem Stadtleben sowie den wichtigsten Hauptverkehrsadern sehr nah. Nach Salzburg Stadt braucht man mit dem Auto ca. fünfzehn Minuten und zur Autobahn Auffahrt Thalgau ca. fünf Minuten. Hier am Eingangstor zum Salzkammergut ist es auch nicht mehr weit zu Fuschl-, Wolfgang- oder Mondsee. Das Wohnbauprojekt liegt in einer kleinen vorgelagerten Siedlung im Ortsteil Lacknerwinkel. Die Natur mit Wäldern und Wiesen ist bereits mit dem ersten Schritt aus dem Haus sichtbar. Eine Bushaltestelle direkt vor der Haustüre erleichtert den Zugang zum öffentlichen Verkehr. Volksschule, Bank, Gasthaus und Sportplätze findet man im Ortskern von Plainfeld. Hier wohnt man exklusiv, ruhig und trotzdem nah an der Stadt. PERSÖNLICHE BERATUNG Bei Interesse freut sich Herr Haubl auf Ihre Kontaktaufnahme unter [Tel] oder [Email] . Wir beraten Sie gerne und völlig unverbindlich.... [Mehr]
Wohnung mit Balkon kaufen in 5325 Plainfeld
5325 Plainfeld / 93m² / 4 Zimmer
€ 6.967,74 / m²
#Balkon #Erstbezug #Parkmöglichkeit #Terrasse #gefördert #ruhig
Dieses Neubauprojekt mit drei Wohnhäusern und insgesamt sechzehn exklusiven Wohneinheiten in der Gemeinde Plainfeld bietet hohe Wohnqualität gepaart mit moderner Architektur und attraktiven Außenflächen. Die zusammenhängende Anlage befindet sich in leichter Hanglage, wodurch sich in den obersten Stockwerken der hinteren Gebäude freie Aussichten ergeben. Die nachhaltige Bauweise, das durchdachte Raumkonzept, der Fokus auf hohe Wertigkeit und die ruhige Lage im Grünen lassen Wohnträume wahr werden. Willkommen bei Ihrem Logenplatz im Grünen. Der Baubeginn ist mit 2026 geplant. WOHNRAUM Diese Vierzimmerwohnung liegt im ersten Obergeschoss des dritten Wohnhauses. Die ca. 94 m 2 Wohnfläche sind wohldurchdacht angelegt, sodass man vom zentralen Gang alle Zimmer begehen kann. Das Highlight im Innenraum ist der ca. 37 m 2 große Wohn/Ess/Kochbereich, der großzügige und offene Wohnmittelpunkt. Viele Fenster sorgen für eine natürliche und angenehme Wohnatmosphäre. Zum Wohnpaket gehören neben drei Schlafzimmern auch Bad, ein eigenes WC, Abstellraum, Keller sowie zwei Tiefgaragenplätze und ein Freistellplatz. Die Kosten pro Tiefgaragenstellplatz betragen € 28.000,-, für einen Freistellplatz € 13.000,-. Wer eine Auszeit unter freiem Himmel genießen möchte, kann sich auf dem ca. 13 m 2 großen Balkon ganz entspannt zurücklehnen. Dieses innovative Wohnkonzept überzeugt auf ganzer Linie mit perfekter Raumaufteilung und hohem Wohnkomfort. AUSSTATTUNG Bei der Ausstattung spielt Qualität die tragende Rolle. Das zeigt sich in edlen Eichendielenböden sowie in den 2,1 m hohen Innentüren mit Holzumfassungszarge und stumpf einschlagendem Türblatt oder in den Bädern mit Duscheinlaufrinnen von Geberit und Feinsteinzeugfliesen. Apropos Feinsteinzeug: Dieses wird großformatig auch auf den Terrassen verlegt, sodass Pflege und Lebensdauer davon profitieren. In puncto Nachhaltigkeit hat man mit dreifach verglasten Kunststoff/Alu-Isolierfenstern, Fußbodenheizung mit Raumthermostat sowie Wärmepumpe mit Erdwärme und PV-Anlage für die Allgemeinflächen alle Hausaufgaben gemacht. LAGE Plainfeld ist eine Landgemeinde mit viel Grün und hoher Lebensqualität. Trotzdem ist man dem Stadtleben sowie den wichtigsten Hauptverkehrsadern sehr nah. Nach Salzburg Stadt braucht man mit dem Auto ca. fünfzehn Minuten und zur Autobahn Auffahrt Thalgau ca. fünf Minuten. Hier am Eingangstor zum Salzkammergut ist es auch nicht mehr weit zu Fuschl-, Wolfgang- oder Mondsee. Das Wohnbauprojekt liegt in einer kleinen vorgelagerten Siedlung im Ortsteil Lacknerwinkel. Die Natur mit Wäldern und Wiesen ist bereits mit dem ersten Schritt aus dem Haus sichtbar. Eine Bushaltestelle direkt vor der Haustüre erleichtert den Zugang zum öffentlichen Verkehr. Volksschule, Bank, Gasthaus und Sportplätze findet man im Ortskern von Plainfeld. Hier wohnt man exklusiv, ruhig und trotzdem nah an der Stadt. WOHNBAUFÖRDERUNG Das Land Salzburg unterstützt begünstigte Personen mit einem Zuschuss beim Kauf eines neuen Eigenheims. Die Wohnbauförderung ist für Einzelpersonen bis zu kinderreichen Familien möglich. Gerne beraten wir Sie im persönlichen Gespräch zu Ihren Möglichkeiten und Ihrer individuellen Förderhöhe. Weitere Infos zur Salzburger Wohnbauföderung finden Sie auch hier . PERSÖNLICHE BERATUNG Bei Interesse freut sich Herr Haubl auf Ihre Kontaktaufnahme unter [Tel] oder [Email] . Wir beraten Sie gerne und völlig unverbindlich.... [Mehr]
Wohnung mit Balkon kaufen in 5325 Plainfeld
5325 Plainfeld / 73m² / 3 Zimmer
€ 6.575,34 / m²
#Balkon #Parkmöglichkeit #Terrasse #gefördert #ruhig
Dieses Neubauprojekt mit drei Wohnhäusern und insgesamt sechzehn exklusiven Wohneinheiten in der Gemeinde Plainfeld bietet hohe Wohnqualität gepaart mit moderner Architektur und attraktiven Außenflächen. Die zusammenhängende Anlage befindet sich in leichter Hanglage, wodurch sich in den obersten Stockwerken der hinteren Gebäude freie Aussichten ergeben. Die nachhaltige Bauweise, das durchdachte Raumkonzept, der Fokus auf hohe Wertigkeit und die ruhige Lage im Grünen lassen Wohnträume wahr werden. Willkommen bei Ihrem Logenplatz im Grünen. Der Baubeginn ist mit 2026 geplant. WOHNRAUM Diese Vierzimmerwohnung liegt im ersten Obergeschoss des mittleren Wohnhauses. Die ca. 73 m 2 Wohnfläche sind wohldurchdacht angelegt, sodass man vom zentralen Gang alle Zimmer begehen kann. Das Highlight im Innenraum ist der ca. 30 m 2 große Wohn/Ess/Kochbereich, der großzügige und offene Wohnmittelpunkt. Viele Fenster sorgen für eine natürliche und angenehme Wohnatmosphäre. Zum Wohnpaket gehören neben zwei Schlafzimmern auch Bad, ein eigenes WC, Abstellraum, Keller sowie ein Tiefgaragen- und ein Freistellplatz. Die Kosten für einen Tiefgaragenstellplatz betragen € 28.000,-, für einen Freistellplatz € 13.000,-. Wer eine Auszeit unter freiem Himmel genießen möchte, kann sich auf dem ca. 13 m 2 großen Balkon ganz entspannt zurücklehnen. Dieses innovative Wohnkonzept überzeugt auf ganzer Linie mit perfekter Raumaufteilung und hohem Wohnkomfort. AUSSTATTUNG Bei der Ausstattung spielt Qualität die tragende Rolle. Das zeigt sich in edlen Eichendielenböden sowie in den 2,1 m hohen Innentüren mit Holzumfassungszarge und stumpf einschlagendem Türblatt oder in den Bädern mit Duscheinlaufrinnen von Geberit und Feinsteinzeugfliesen. Apropos Feinsteinzeug: Dieses wird großformatig auch auf den Terrassen verlegt, sodass Pflege und Lebensdauer davon profitieren. In puncto Nachhaltigkeit hat man mit dreifach verglasten Kunststoff/Alu-Isolierfenstern, Fußbodenheizung mit Raumthermostat sowie Wärmepumpe mit Erdwärme und PV-Anlage für die Allgemeinflächen alle Hausaufgaben gemacht. LAGE Plainfeld ist eine Landgemeinde mit viel Grün und hoher Lebensqualität. Trotzdem ist man dem Stadtleben sowie den wichtigsten Hauptverkehrsadern sehr nah. Nach Salzburg Stadt braucht man mit dem Auto ca. fünfzehn Minuten und zur Autobahn Auffahrt Thalgau ca. fünf Minuten. Hier am Eingangstor zum Salzkammergut ist es auch nicht mehr weit zu Fuschl-, Wolfgang- oder Mondsee. Das Wohnbauprojekt liegt in einer kleinen vorgelagerten Siedlung im Ortsteil Lacknerwinkel. Die Natur mit Wäldern und Wiesen ist bereits mit dem ersten Schritt aus dem Haus sichtbar. Eine Bushaltestelle direkt vor der Haustüre erleichtert den Zugang zum öffentlichen Verkehr. Volksschule, Bank, Gasthaus und Sportplätze findet man im Ortskern von Plainfeld. Hier wohnt man exklusiv, ruhig und trotzdem nah an der Stadt. WOHNBAUFÖRDERUNG Das Land Salzburg unterstützt begünstigte Personen mit einem Zuschuss beim Kauf eines neuen Eigenheims. Die Wohnbauförderung ist für Einzelpersonen bis zu kinderreichen Familien möglich. Gerne beraten wir Sie im persönlichen Gespräch zu Ihren Möglichkeiten und Ihrer individuellen Förderhöhe. Weitere Infos zur Salzburger Wohnbauföderung finden Sie auch hier . PERSÖNLICHE BERATUNG Bei Interesse freut sich Herr Haubl auf Ihre Kontaktaufnahme unter [Tel] oder [Email] . Wir beraten Sie gerne und völlig unverbindlich.... [Mehr]
Haus kaufen in 5325 Plainfeld
5325 Plainfeld / 91,35m² / 4 Zimmer
€ 7.747,35 / m²
#Reihenhaus #Balkon #Garten #Keller #Parkmöglichkeit #Terrasse #hell #ruhig
Wohnvergnügen für Naturgenießer in Stadtnähe Eingebettet in eine idyllische Wohnlage zwischen Salzburg Stadt und dem Salzkammergut errichten wir in Plainfeld dieses moderne Eckreihenhaus. Die aufgelockerte Architektur mit großen Fensterfronten sorgt für lichtdurchflutete Räume, während die hochwertige Echtholzfassade das harmonische Gesamtbild unterstreicht. Das Haus verfügt über einen privaten Garten mit Terrasse, einen Balkon sowie einen großzügigen Kellerraum - ideal für Familien und alle, die sich mehr Raum zum Leben wünschen. Dank Luftwärmepumpe und Photovoltaikanlage profitieren Sie von niedrigen Betriebskosten und nachhaltiger Energieversorgung. Im Überblick: Eckreihenhaus RH 1 mit ca. 91 m² Wohnfläche und 145 m² Nutzfläche idyllische Wohnlage zwischen Salzburg und dem Salzkammergut moderne Architektur und helle Wohnräume 2 Wohnebenen und zusätzlich ein großer Kellerraum Privatgarten mit Terrasse und Balkon 2 Carport-Stellplätze top Ausstattung: einzelraumregulierte Fußbodenheizung, dreifache Isolierverglasung, bedarfsgerechte Wohnraumbelüftung, stilvolle Sanitärausstattung und vieles mehr energieeffizient dank Luftwärmepumpe & Photovoltaik niedrige Betriebskosten (=> keine Kosten für Hausbetreuung & -verwaltung) Ihr neues Zuhause errichten wir in qualitativer und nachhaltiger Bauweise und schaffen für Sie einen Lebensmittelpunkt zum Wohlfühlen. Entscheiden Sie sich für Wohnqualität aus erster Hand - in einer Lage, die das Beste aus Natur und Stadt vereint. Idyllische Wohnlage in Plainfeld Am Waldweg wohnen Sie östlich der Stadt Salzburg am Tor zum Salzkammergut. Eingebettet in eine überschaubare Nachbarschaft lässt es sich hier fernab vom Trubel entspannt und ruhig wohnen. Dank der sehr guten Verkehrsanbindung erreichen Sie das Salzburger Stadtzentrum in nur 15 Autominuten und direkt vor dem Haus hält der Linienbus, der Sie schnell in größere Ortschaften bringt. In Plainfeld selbst gibt es einen Kindergarten, Volksschule und einen Nahversorger. Für Groß und Klein bieten sich viele Freizeitaktivitäten an und die Nähe zum Fuschlsee ist besonders reizvoll. Gleich unverbindlich informieren Vereinbaren Sie gleich heute einen unverbindlichen Beratungstermin unter [Tel] oder nutzen Sie das Anfrageformular.... [Mehr]
Haus kaufen in 5325 Plainfeld
5325 Plainfeld / 89,68m² / 4 Zimmer
€ 7.607,18 / m²
#Doppelhaus #Balkon #Garten #Keller #Parkmöglichkeit #Terrasse #hell #ruhig
Wohnvergnügen für Naturgenießer in Stadtnähe Eingebettet in eine idyllische Wohnlage zwischen Salzburg Stadt und dem Salzkammergut errichten wir in Plainfeld diese moderne Doppelhaushälfte. Die aufgelockerte Architektur mit großen Fensterfronten sorgt für lichtdurchflutete Räume, während die hochwertige Echtholzfassade das harmonische Gesamtbild unterstreicht. Die Doppelhaushälfte verfügt über einen privaten Garten mit Terrasse, einen Balkon sowie einen großzügigen Kellerraum - ideal für Familien und alle, die sich mehr Raum zum Leben wünschen. Dank Luftwärmepumpe und Photovoltaikanlage profitieren Sie von niedrigen Betriebskosten und nachhaltiger Energieversorgung. Im Überblick: Doppelhaushälfte RH 7 mit ca. 90 m² Wohnfläche und 141 m² Nutzfläche idyllische Wohnlage zwischen Salzburg und dem Salzkammergut moderne Architektur und helle Wohnräume 2 Wohnebenen und zusätzlich ein großer Kellerraum Privatgarten mit Terrasse und Balkon 1 Carport-Stellplatz und 1 teilüberdachter Stellplatz top Ausstattung: einzelraumregulierte Fußbodenheizung, dreifache Isolierverglasung, bedarfsgerechte Wohnraumbelüftung, stilvolle Sanitärausstattung und vieles mehr energieeffizient dank Luftwärmepumpe & Photovoltaik niedrige Betriebskosten (=> keine Kosten für Hausbetreuung & -verwaltung) Ihr neues Zuhause errichten wir in qualitativer und nachhaltiger Bauweise und schaffen für Sie einen Lebensmittelpunkt zum Wohlfühlen. Entscheiden Sie sich für Wohnqualität aus erster Hand - in einer Lage, die das Beste aus Natur und Stadt vereint. Idyllische Wohnlage in Plainfeld Am Waldweg wohnen Sie östlich der Stadt Salzburg am Tor zum Salzkammergut. Eingebettet in eine überschaubare Nachbarschaft lässt es sich hier fernab vom Trubel entspannt und ruhig wohnen. Dank der sehr guten Verkehrsanbindung erreichen Sie das Salzburger Stadtzentrum in nur 15 Autominuten und direkt vor dem Haus hält der Linienbus, der Sie schnell in größere Ortschaften bringt. In Plainfeld selbst gibt es einen Kindergarten, Volksschule und einen Nahversorger. Für Groß und Klein bieten sich viele Freizeitaktivitäten an und die Nähe zum Fuschlsee ist besonders reizvoll. Gleich unverbindlich informieren Vereinbaren Sie gleich heute einen unverbindlichen Beratungstermin unter [Tel] oder nutzen Sie das Anfrageformular.... [Mehr]
Haus kaufen in 5325 Plainfeld
5325 Plainfeld / 93,07m² / 4 Zimmer
€ 7.336,23 / m²
#Reihenhaus #Balkon #Garten #Keller #Parkmöglichkeit #Terrasse #gefördert #hell #ruhig
Wohnvergnügen für Naturgenießer in Stadtnähe Eingebettet in eine idyllische Wohnlage zwischen Salzburg Stadt und dem Salzkammergut errichten wir in Plainfeld dieses moderne Reihenhaus. Die aufgelockerte Architektur mit großen Fensterfronten sorgt für lichtdurchflutete Räume und zeitloses Wohnvergnügen. Das Haus verfügt über einen privaten Garten mit Terrasse, einen Balkon sowie einen großzügigen Kellerraum - ideal für Familien und alle, die sich mehr Raum zum Leben wünschen. Dank Luftwärmepumpe und Photovoltaikanlage profitieren Sie von niedrigen Betriebskosten und nachhaltiger Energieversorgung. Im Überblick: Mittelreihenhaus RH 4 mit ca. 93 m² Wohnfläche und 131 m² Nutzfläche idyllische Wohnlage zwischen Salzburg und dem Salzkammergut moderne Architektur und helle Wohnräume 2 Wohnebenen und zusätzlich ein großer Kellerraum 30 m² große Dachterrasse mit herrlichem Ausblick Privatgarten mit Terrasse und Balkon 2 Carport-Stellplätze top Ausstattung: einzelraumregulierte Fußbodenheizung, dreifache Isolierverglasung, bedarfsgerechte Wohnraumbelüftung, stilvolle Sanitärausstattung und vieles mehr energieeffizient dank Luftwärmepumpe & Photovoltaik niedrige Betriebskosten (=> keine Kosten für Hausbetreuung & -verwaltung) Hohe Wohnbauförderung möglich! Z.B. € 72.000,- Direktzuschuss für Jungfamilien und monatliche Unterstützung bei der Kreditrückzahlung Ihr neues Zuhause errichten wir in qualitativer und nachhaltiger Bauweise und schaffen für Sie einen Lebensmittelpunkt zum Wohlfühlen. Entscheiden Sie sich für Wohnqualität aus erster Hand - in einer Lage, die das Beste aus Natur und Stadt vereint. Idyllische Wohnlage in Plainfeld Am Waldweg wohnen Sie östlich der Stadt Salzburg am Tor zum Salzkammergut. Eingebettet in eine überschaubare Nachbarschaft lässt es sich hier fernab vom Trubel entspannt und ruhig wohnen. Dank der sehr guten Verkehrsanbindung erreichen Sie das Salzburger Stadtzentrum in nur 15 Autominuten und direkt vor dem Haus hält der Linienbus, der Sie schnell in größere Ortschaften bringt. In Plainfeld selbst gibt es einen Kindergarten, Volksschule und einen Nahversorger. Für Groß und Klein bieten sich viele Freizeitaktivitäten an und die Nähe zum Fuschlsee ist besonders reizvoll. Gleich unverbindlich informieren Vereinbaren Sie gleich heute einen unverbindlichen Beratungstermin unter [Tel] oder nutzen Sie das Anfrageformular.... [Mehr]
Haus kaufen in 5325 Plainfeld
5325 Plainfeld / 99,64m² / 4 Zimmer
€ 7.300,80 / m²
#Reihenhaus #Balkon #Garten #Keller #Parkmöglichkeit #Terrasse #gefördert #hell #ruhig
Wohnvergnügen für Naturgenießer in Stadtnähe Eingebettet in eine idyllische Wohnlage zwischen Salzburg Stadt und dem Salzkammergut errichten wir in Plainfeld dieses modern Reihenhaus. Die aufgelockerte Architektur mit großen Fensterfronten sorgt für lichtdurchflutete Räume, während die hochwertige Echtholzfassade das harmonische Gesamtbild unterstreicht. Das Haus verfügt über einen privaten Garten mit Terrasse, einen Balkon sowie einen großzügigen Kellerraum - ideal für Familien und alle, die sich mehr Raum zum Leben wünschen. Dank Luftwärmepumpe und Photovoltaikanlage profitieren Sie von niedrigen Betriebskosten und nachhaltiger Energieversorgung. Im Überblick: Mittelreihenhaus RH 3 mit ca. 100 m² Wohnfläche und 159 m² Nutzfläche idyllische Wohnlage zwischen Salzburg und dem Salzkammergut moderne Architektur und helle Wohnräume 2 Wohnebenen und zusätzlich ein großer Kellerraum Privatgarten mit Terrasse und Balkon 2 Carport-Stellplätze top Ausstattung: einzelraumregulierte Fußbodenheizung, dreifache Isolierverglasung, bedarfsgerechte Wohnraumbelüftung, stilvolle Sanitärausstattung und vieles mehr energieeffizient dank Luftwärmepumpe & Photovoltaik niedrige Betriebskosten (=> keine Kosten für Hausbetreuung & -verwaltung) Hohe Wohnbauförderung möglich! Z.B. € 72.000,- Direktzuschuss für Jungfamilien und monatliche Unterstützung bei der Kreditrückzahlung Ihr neues Zuhause errichten wir in qualitativer und nachhaltiger Bauweise und schaffen für Sie einen Lebensmittelpunkt zum Wohlfühlen. Entscheiden Sie sich für Wohnqualität aus erster Hand - in einer Lage, die das Beste aus Natur und Stadt vereint. Idyllische Wohnlage in Plainfeld Am Waldweg wohnen Sie östlich der Stadt Salzburg am Tor zum Salzkammergut. Eingebettet in eine überschaubare Nachbarschaft lässt es sich hier fernab vom Trubel entspannt und ruhig wohnen. Dank der sehr guten Verkehrsanbindung erreichen Sie das Salzburger Stadtzentrum in nur 15 Autominuten und direkt vor dem Haus hält der Linienbus, der Sie schnell in größere Ortschaften bringt. In Plainfeld selbst gibt es einen Kindergarten, Volksschule und einen Nahversorger. Für Groß und Klein bieten sich viele Freizeitaktivitäten an und die Nähe zum Fuschlsee ist besonders reizvoll. Gleich unverbindlich informieren Vereinbaren Sie gleich heute einen unverbindlichen Beratungstermin unter [Tel] oder nutzen Sie das Anfrageformular.... [Mehr]











































