Wohnungen und Büros in der Nähe der Reichsbrücke
25 bis 36 von 82
SuchagentE-Mail Suchagent anlegen
Geben Sie einen Namen für das Suchprofil ein:
Geben sie Ihre E-Mail Adresse ein:
Keine gültige E-Mail-Adresse
Durch klicken auf Speichern akzeptiere ich die
Nutzungsbedingungen und
Datenschutzrichtlinien
Ihr Suchagent wurde gespeichert!
Prüfen Sie bitte Ihren Posteingang und aktivieren Sie den Suchagenten.
Sie können Ihren Suchagenten über die Suchagent E-Mail verwalten.
OK#Büro #Gastronomie #Parkmöglichkeit
Der Ares Tower ist ein zentrales Bürogebäude der Donau City und bietet höchste Qualität und eine optimale Verkehrsanbindung. Neben den Büroflächen verfügt das Gebäude über einen zentralen Empfang, Cafeteria, Sky Lobby und eine Tiefgarage. Das mit 26 Stockwerken ca. 100 m hohe Gebäude weist eine Bruttogeschoßfläche von rund 60.000 m² auf. Bedingt durch die geometrisch strenge Grundrissform ist eine flächeneffiziente Büroadaptierung für jeden Mieter umsetzbar. Entsprechend dem Ausstattungsstandard im Büroturm verfügen die meisten Flächen über eine Kühldecke, Hohlraumboden, zweischalige Glasfassaden sowie eine zeitgerechte Haustechnikregelung. Die Flächen bestechen durch eine maximale Effizienz und vor allem auch Flexibilität, sodass sämtliche Bürolösungen, vom Einzelzimmer bis hin zum Großraum problemlos umsetzbar sind. Die hauseigene Tiefgarage erstreckt sich über 4 Decks und verfügt insgesamt über 495 Stellplätze. Verfügbare Flächen / Kosten: 4. OG / Top 1: 192,00m² € 13,90/m² (reserviert) 4. OG / Top 2.1: 446,00m² € 13,90/m²4. OG / Top 2.2: 244,00m² € 13,90/m²4. OG gesamt: 882,00m² € 13,90/m²6. OG: 634,00m² € 14,50/m²7. OG / Top 1: 447,00m² € 14,50/m²7. OG / Top 1.2: 246,00m² € 14,50/m²7. OG / Top 2.1: 447,00m² € 14,50/m²7. OG / Top 2.2: 247,00m² € 14,50/m²7. OG/ Top 1 + Top 1.2 + Top 2.1: 1.140m² € 14,50/m²7. OG/ Top 1 + Top 1.2 + Top 2.2: 940m² € 14,50/m²7. OG: 1.387,00m² € 14,50/m²8. OG / 1: 694,00m² € 15,50/m²8. OG / 2: 694m² € 15,50/m²15. OG: 1.432,60m² € 15,90/m²Betriebskosten: € 5,45/m² (inkl. Heizung, Kühlung, Sicherheit und Energie) Parkplätze: à € 130,00 / Monat Alle Preise verstehen sich exkl. Mehrwertsteuer. Anbindung an den öffentlichen Verkehr: Bus Linie 90A, 91A, 92A, 20BU-Bahn Linie 1Individualverkehr unmittelbar angebunden: Wagramer Straße Reichsbrücke A22 – Donauufer-Autobahn A23 – Südost Tangente Wir weisen darauf hin, dass zwischen dem Vermittler und dem zu vermittelnden Dritten ein familiäres oder wirtschaftliches Naheverhältnis besteht. Der Vermittler ist als Doppelmakler tätig. Infrastruktur / Entfernungen Gesundheit Arzt <500m Apotheke <500m Klinik <1.500m Krankenhaus <2.500m Kinder & Schulen Schule <500m Kindergarten <500m Universität <2.000m Höhere Schule <3.000m Nahversorgung Supermarkt <500m Bäckerei <500m Einkaufszentrum <2.000m Sonstige Geldautomat <500m Bank <500m Post <500m Polizei <500m Verkehr Bus <500m U-Bahn <500m Straßenbahn <1.500m Bahnhof <500m Autobahnanschluss <500m Angaben Entfernung Luftlinie / Quelle: Open Street Map... [Mehr]
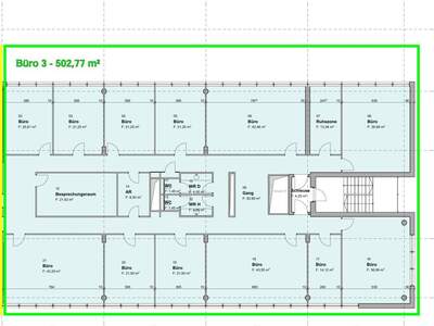
Gewerbeobjekt mieten in 1020 Wien
Attraktive Bürofläche beim Praterstern
€ 9.521,73
1020 Wien / 502m²
€ 18,97 / m²
#Büro #Parkmöglichkeit
In die Vermietung gelangt eine ca. 503 m² große Bürofläche im 4. Obergeschoß des modernen Bürogebäudes 2nd CENTRAL , das im Jahr 2013 fertiggestellt wurde. Das Objekt verfügt über eine zweigeschoßige Tiefgarage, ein Erdgeschoß, sechs Obergeschoße sowie ein Dachgeschoß. Aktuell stehen im 4. Obergeschoß zwei attraktive Büroeinheiten zur Verfügung. Die Flächen sind hochwertig ausgebaut, die Trennwände zum Gang sind großteils aus Glas. Die Raumkühlung erfolgt über eine Kühldecke, die Heizung über Radiatoren, die Büroräume verfügen über eine mechanische Be- und Entlüftung, die Fenster sind öffenbar. Die Raumaufteilung kann grundsätzlich an mieterspezifische Bedürfnisse angepasst werden. Die Beleuchtung in den Büroräumen erfolgt über moderne Stehleuchten. Die Liegenschaft überzeugt durch ihre ausgezeichnete Verkehrsanbindung: Die U-Bahnstationen Praterstern und Vorgartenstraße der Linie U1 befinden sich in unmittelbarer Nähe und gewährleisten eine optimale Erreichbarkeit mit öffentlichen Verkehrsmitteln. Auch für den Individualverkehr ist der Standort über den Praterstern bzw. die Reichsbrücke bestens angebunden. Eine Filiale der Supermarktkette Billa befindet sich direkt im Gebäude, ergänzt durch ein vielfältiges gastronomisches Angebot in der Umgebung, das eine hervorragende Infrastruktur sicherstellt. Darüber hinaus wurde das Objekt mit dem GOLD-Zertifikat der Österreichischen Gesellschaft für Nachhaltige Immobilienwirtschaft (ÖGNI ) ausgezeichnet. verfügbare Flächen/Konditionen: 4. OG: ca. 465 m² 4. OG: ca. 503 m² Nettomiete: € 15,50/m²/Monat Betriebskosten: netto € 3,44/m²/Monat Heizkosten: netto € 1,00/m²/Monat Auf Anfrage stehen im UG auch Lagerflächen von ca. 15 m² bis ca. 120 m² (netto € 7,50/m²/Monat zzgl. BK) zur Verfügung. In der hauseigenen Tiefgarage können je nach Verfügbarkeit PKW-Stellplätze zu netto € 150,-/Stück/Monat inkl. BK angemietet werden. Alle Preise zzgl. 20% USt. Öffentliche Verkehrsanbindung: U-Bahn: U1 und U2 Station Praterstern (5 min. bis zum Stephansplatz) S-Bahn: S1, S2, S3 und S7 direkte Verbindung zum Wiener Flughafen Bus: 5B, 80A und 85 A sowie Regionalbusse Straßenbahn: O und 5 Individualverkehr: Mit dem Pkw erreicht man die A22, A23 und die A4 in wenigen Minuten, und die bestens ausgebauten Radwege ergänzen den hervorragenden Anschluss an das individuelle Verkehrsnetz. Hinweis gemäß Energieausweisvorlagegesetz: Ein Energieausweis wurde vom Eigentümer bzw. Verkäufer, nach unserer Aufklärung über die generell geltende Vorlagepflicht, sowie Aufforderung zu seiner Erstellung noch nicht vorgelegt. Daher gilt zumindest eine dem Alter und der Art des Gebäudes entsprechende Gesamtenergieeffizienz als vereinbart. Wir übernehmen keinerlei Gewähr oder Haftung für die tatsächliche Energieeffizienz der angebotenen Immobilie. Wir weisen darauf hin, dass zwischen dem Vermittler und dem zu vermittelnden Dritten ein familiäres oder wirtschaftliches Naheverhältnis besteht. Infrastruktur / Entfernungen Gesundheit Arzt <500m Apotheke <500m Klinik <500m Krankenhaus <2.000m Kinder & Schulen Schule <500m Kindergarten <500m Universität <1.000m Höhere Schule <2.000m Nahversorgung Supermarkt <500m Bäckerei <500m Einkaufszentrum <2.500m Sonstige Geldautomat <500m Bank <500m Post <500m Polizei <1.000m Verkehr Bus <500m U-Bahn <500m Straßenbahn <500m Bahnhof <500m Autobahnanschluss <1.500m Angaben Entfernung Luftlinie / Quelle: Open Street Map... [Mehr]
#Büro #Gastronomie #Parkmöglichkeit
Der Ares Tower ist ein zentrales Bürogebäude der Donau City und bietet höchste Qualität und eine optimale Verkehrsanbindung. Neben den Büroflächen verfügt das Gebäude über einen zentralen Empfang, Cafeteria, Sky Lobby und eine Tiefgarage. Das mit 26 Stockwerken ca. 100 m hohe Gebäude weist eine Bruttogeschoßfläche von rund 60.000 m² auf. Bedingt durch die geometrisch strenge Grundrissform ist eine flächeneffiziente Büroadaptierung für jeden Mieter umsetzbar. Entsprechend dem Ausstattungsstandard im Büroturm verfügen die meisten Flächen über eine Kühldecke, Hohlraumboden, zweischalige Glasfassaden sowie eine zeitgerechte Haustechnikregelung. Die Flächen bestechen durch eine maximale Effizienz und vor allem auch Flexibilität, sodass sämtliche Bürolösungen, vom Einzelzimmer bis hin zum Großraum problemlos umsetzbar sind. Die hauseigene Tiefgarage erstreckt sich über 4 Decks und verfügt insgesamt über 495 Stellplätze. Verfügbare Flächen / Kosten: 4. OG / Top 1: 192,00m² € 13,90/m² (reserviert) 4. OG / Top 2.1: 446,00m² € 13,90/m²4. OG / Top 2.2: 244,00m² € 13,90/m²4. OG gesamt: 882,00m² € 13,90/m²6. OG: 634,00m² € 14,50/m²7. OG / Top 1: 447,00m² € 14,50/m²7. OG / Top 1.2: 246,00m² € 14,50/m²7. OG / Top 2.1: 447,00m² € 14,50/m²7. OG / Top 2.2: 247,00m² € 14,50/m²7. OG/ Top 1 + Top 1.2 + Top 2.1: 1.140m² € 14,50/m²7. OG/ Top 1 + Top 1.2 + Top 2.2: 940m² € 14,50/m²7. OG: 1.387,00m² € 14,50/m²8. OG / 1: 694,00m² € 15,50/m²8. OG / 2: 694m² € 15,50/m²15. OG: 1.432,60m² € 15,90/m²Betriebskosten: € 5,45/m² (inkl. Heizung, Kühlung, Sicherheit und Energie) Parkplätze: à € 130,00 / Monat Alle Preise verstehen sich exkl. Mehrwertsteuer. Anbindung an den öffentlichen Verkehr: Bus Linie 90A, 91A, 92A, 20BU-Bahn Linie 1Individualverkehr unmittelbar angebunden: Wagramer Straße Reichsbrücke A22 – Donauufer-Autobahn A23 – Südost Tangente Wir weisen darauf hin, dass zwischen dem Vermittler und dem zu vermittelnden Dritten ein familiäres oder wirtschaftliches Naheverhältnis besteht. Der Vermittler ist als Doppelmakler tätig. Infrastruktur / Entfernungen Gesundheit Arzt <500m Apotheke <500m Klinik <1.500m Krankenhaus <2.500m Kinder & Schulen Schule <500m Kindergarten <500m Universität <2.000m Höhere Schule <3.000m Nahversorgung Supermarkt <500m Bäckerei <500m Einkaufszentrum <2.000m Sonstige Geldautomat <500m Bank <500m Post <500m Polizei <500m Verkehr Bus <500m U-Bahn <500m Straßenbahn <1.500m Bahnhof <500m Autobahnanschluss <500m Angaben Entfernung Luftlinie / Quelle: Open Street Map... [Mehr]
#Büro #Gastronomie #Parkmöglichkeit
Der Ares Tower ist ein zentrales Bürogebäude der Donau City und bietet höchste Qualität und eine optimale Verkehrsanbindung. Neben den Büroflächen verfügt das Gebäude über einen zentralen Empfang, Cafeteria, Sky Lobby und eine Tiefgarage. Das mit 26 Stockwerken ca. 100 m hohe Gebäude weist eine Bruttogeschoßfläche von rund 60.000 m² auf. Bedingt durch die geometrisch strenge Grundrissform ist eine flächeneffiziente Büroadaptierung für jeden Mieter umsetzbar. Entsprechend dem Ausstattungsstandard im Büroturm verfügen die meisten Flächen über eine Kühldecke, Hohlraumboden, zweischalige Glasfassaden sowie eine zeitgerechte Haustechnikregelung. Die Flächen bestechen durch eine maximale Effizienz und vor allem auch Flexibilität, sodass sämtliche Bürolösungen, vom Einzelzimmer bis hin zum Großraum problemlos umsetzbar sind. Die hauseigene Tiefgarage erstreckt sich über 4 Decks und verfügt insgesamt über 495 Stellplätze. Verfügbare Flächen / Kosten: 4. OG / Top 1: 192,00m² € 13,90/m² (reserviert) 4. OG / Top 2.1: 446,00m² € 13,90/m²4. OG / Top 2.2: 244,00m² € 13,90/m²4. OG gesamt: 882,00m² € 13,90/m²6. OG: 634,00m² € 14,50/m²7. OG / Top 1: 447,00m² € 14,50/m²7. OG / Top 1.2: 246,00m² € 14,50/m²7. OG / Top 2.1: 447,00m² € 14,50/m²7. OG / Top 2.2: 247,00m² € 14,50/m²7. OG/ Top 1 + Top 1.2 + Top 2.1: 1.140m² € 14,50/m²7. OG/ Top 1 + Top 1.2 + Top 2.2: 940m² € 14,50/m²7. OG: 1.387,00m² € 14,50/m²8. OG / 1: 694,00m² € 15,50/m²8. OG / 2: 694m² € 15,50/m²15. OG: 1.432,60m² € 15,90/m²Betriebskosten: € 5,45/m² (inkl. Heizung, Kühlung, Sicherheit und Energie) Parkplätze: à € 130,00 / Monat Alle Preise verstehen sich exkl. Mehrwertsteuer. Anbindung an den öffentlichen Verkehr: Bus Linie 90A, 91A, 92A, 20BU-Bahn Linie 1Individualverkehr unmittelbar angebunden: Wagramer Straße Reichsbrücke A22 – Donauufer-Autobahn A23 – Südost Tangente Wir weisen darauf hin, dass zwischen dem Vermittler und dem zu vermittelnden Dritten ein familiäres oder wirtschaftliches Naheverhältnis besteht. Der Vermittler ist als Doppelmakler tätig. Infrastruktur / Entfernungen Gesundheit Arzt <500m Apotheke <500m Klinik <1.500m Krankenhaus <2.500m Kinder & Schulen Schule <500m Kindergarten <500m Universität <2.000m Höhere Schule <3.000m Nahversorgung Supermarkt <500m Bäckerei <500m Einkaufszentrum <2.000m Sonstige Geldautomat <500m Bank <500m Post <500m Polizei <500m Verkehr Bus <500m U-Bahn <500m Straßenbahn <1.500m Bahnhof <500m Autobahnanschluss <500m Angaben Entfernung Luftlinie / Quelle: Open Street Map... [Mehr]
#Büro #Gastronomie #Parkmöglichkeit
Der Ares Tower ist ein zentrales Bürogebäude der Donau City und bietet höchste Qualität und eine optimale Verkehrsanbindung. Neben den Büroflächen verfügt das Gebäude über einen zentralen Empfang, Cafeteria, Sky Lobby und eine Tiefgarage. Das mit 26 Stockwerken ca. 100 m hohe Gebäude weist eine Bruttogeschoßfläche von rund 60.000 m² auf. Bedingt durch die geometrisch strenge Grundrissform ist eine flächeneffiziente Büroadaptierung für jeden Mieter umsetzbar. Entsprechend dem Ausstattungsstandard im Büroturm verfügen die meisten Flächen über eine Kühldecke, Hohlraumboden, zweischalige Glasfassaden sowie eine zeitgerechte Haustechnikregelung. Die Flächen bestechen durch eine maximale Effizienz und vor allem auch Flexibilität, sodass sämtliche Bürolösungen, vom Einzelzimmer bis hin zum Großraum problemlos umsetzbar sind. Die hauseigene Tiefgarage erstreckt sich über 4 Decks und verfügt insgesamt über 495 Stellplätze. Verfügbare Flächen / Kosten: * 4. OG / Top 1: 192,00m² € 13,90/m² (reserviert) * 4. OG / Top 2.1: 446,00m² € 13,90/m² * 4. OG / Top 2.2: 244,00m² € 13,90/m² * 4. OG gesamt: 882,00m² € 13,90/m² * 6. OG: 634,00m² € 14,50/m² * 7. OG / Top 1: 447,00m² € 14,50/m² * 7. OG / Top 1.2: 246,00m² € 14,50/m² * 7. OG / Top 2.1: 447,00m² € 14,50/m² * 7. OG / Top 2.2: 247,00m² € 14,50/m² * 7. OG/ Top 1 + Top 1.2 + Top 2.1: 1.140m² € 14,50/m² * 7. OG/ Top 1 + Top 1.2 + Top 2.2: 940m² € 14,50/m² * 7. OG: 1.387,00m² € 14,50/m² * 8. OG / 1: 694,00m² € 15,50/m² * 8. OG / 2: 694m² € 15,50/m² * 15. OG: 1.432,60m² € 15,90/m² Betriebskosten: € 5,45/m² (inkl. Heizung, Kühlung, Sicherheit und Energie) Parkplätze: à € 130,00 / Monat Alle Preise verstehen sich exkl. Mehrwertsteuer. Anbindung an den öffentlichen Verkehr: * Bus Linie 90A, 91A, 92A, 20B * U-Bahn Linie 1 Individualverkehr unmittelbar angebunden: * Wagramer Straße * Reichsbrücke * A22 - Donauufer-Autobahn * A23 - Südost Tangente Wir weisen darauf hin, dass zwischen dem Vermittler und dem zu vermittelnden Dritten ein familiäres oder wirtschaftliches Naheverhältnis besteht. Der Vermittler ist als Doppelmakler tätig. Infrastruktur / Entfernungen Gesundheit Arzt Apotheke Klinik Krankenhaus Kinder & Schulen Schule Kindergarten Universität Höhere Schule Nahversorgung Supermarkt Bäckerei Einkaufszentrum Sonstige Geldautomat Bank Post Polizei Verkehr Bus U-Bahn Straßenbahn Bahnhof Autobahnanschluss Angaben Entfernung Luftlinie / Quelle: Open Street Map... [Mehr]
#Büro #Gastronomie #Parkmöglichkeit
Der Ares Tower ist ein zentrales Bürogebäude der Donau City und bietet höchste Qualität und eine optimale Verkehrsanbindung. Neben den Büroflächen verfügt das Gebäude über einen zentralen Empfang, Cafeteria, Sky Lobby und eine Tiefgarage. Das mit 26 Stockwerken ca. 100 m hohe Gebäude weist eine Bruttogeschoßfläche von rund 60.000 m² auf. Bedingt durch die geometrisch strenge Grundrissform ist eine flächeneffiziente Büroadaptierung für jeden Mieter umsetzbar. Entsprechend dem Ausstattungsstandard im Büroturm verfügen die meisten Flächen über eine Kühldecke, Hohlraumboden, zweischalige Glasfassaden sowie eine zeitgerechte Haustechnikregelung. Die Flächen bestechen durch eine maximale Effizienz und vor allem auch Flexibilität, sodass sämtliche Bürolösungen, vom Einzelzimmer bis hin zum Großraum problemlos umsetzbar sind. Die hauseigene Tiefgarage erstreckt sich über 4 Decks und verfügt insgesamt über 495 Stellplätze. Verfügbare Flächen / Kosten: * 4. OG / Top 1: 192,00m² € 13,90/m² (reserviert) * 4. OG / Top 2.1: 446,00m² € 13,90/m² * 4. OG / Top 2.2: 244,00m² € 13,90/m² * 4. OG gesamt: 882,00m² € 13,90/m² * 6. OG: 634,00m² € 14,50/m² * 7. OG / Top 1: 447,00m² € 14,50/m² * 7. OG / Top 1.2: 246,00m² € 14,50/m² * 7. OG / Top 2.1: 447,00m² € 14,50/m² * 7. OG / Top 2.2: 247,00m² € 14,50/m² * 7. OG/ Top 1 + Top 1.2 + Top 2.1: 1.140m² € 14,50/m² * 7. OG/ Top 1 + Top 1.2 + Top 2.2: 940m² € 14,50/m² * 7. OG: 1.387,00m² € 14,50/m² * 8. OG / 1: 694,00m² € 15,50/m² * 8. OG / 2: 694m² € 15,50/m² * 15. OG: 1.432,60m² € 15,90/m² Betriebskosten: € 5,45/m² (inkl. Heizung, Kühlung, Sicherheit und Energie) Parkplätze: à € 130,00 / Monat Alle Preise verstehen sich exkl. Mehrwertsteuer. Anbindung an den öffentlichen Verkehr: * Bus Linie 90A, 91A, 92A, 20B * U-Bahn Linie 1 Individualverkehr unmittelbar angebunden: * Wagramer Straße * Reichsbrücke * A22 - Donauufer-Autobahn * A23 - Südost Tangente Wir weisen darauf hin, dass zwischen dem Vermittler und dem zu vermittelnden Dritten ein familiäres oder wirtschaftliches Naheverhältnis besteht. Der Vermittler ist als Doppelmakler tätig. Infrastruktur / Entfernungen Gesundheit Arzt Apotheke Klinik Krankenhaus Kinder & Schulen Schule Kindergarten Universität Höhere Schule Nahversorgung Supermarkt Bäckerei Einkaufszentrum Sonstige Geldautomat Bank Post Polizei Verkehr Bus U-Bahn Straßenbahn Bahnhof Autobahnanschluss Angaben Entfernung Luftlinie / Quelle: Open Street Map... [Mehr]
#Büro #Gastronomie #Parkmöglichkeit
Der Ares Tower ist ein zentrales Bürogebäude der Donau City und bietet höchste Qualität und eine optimale Verkehrsanbindung. Neben den Büroflächen verfügt das Gebäude über einen zentralen Empfang, Cafeteria, Sky Lobby und eine Tiefgarage. Das mit 26 Stockwerken ca. 100 m hohe Gebäude weist eine Bruttogeschoßfläche von rund 60.000 m² auf. Bedingt durch die geometrisch strenge Grundrissform ist eine flächeneffiziente Büroadaptierung für jeden Mieter umsetzbar. Entsprechend dem Ausstattungsstandard im Büroturm verfügen die meisten Flächen über eine Kühldecke, Hohlraumboden, zweischalige Glasfassaden sowie eine zeitgerechte Haustechnikregelung. Die Flächen bestechen durch eine maximale Effizienz und vor allem auch Flexibilität, sodass sämtliche Bürolösungen, vom Einzelzimmer bis hin zum Großraum problemlos umsetzbar sind. Die hauseigene Tiefgarage erstreckt sich über 4 Decks und verfügt insgesamt über 495 Stellplätze. Verfügbare Flächen / Kosten: * 4. OG / Top 1: 192,00m² € 13,90/m² (reserviert) * 4. OG / Top 2.1: 446,00m² € 13,90/m² * 4. OG / Top 2.2: 244,00m² € 13,90/m² * 4. OG gesamt: 882,00m² € 13,90/m² * 6. OG: 634,00m² € 14,50/m² * 7. OG / Top 1: 447,00m² € 14,50/m² * 7. OG / Top 1.2: 246,00m² € 14,50/m² * 7. OG / Top 2.1: 447,00m² € 14,50/m² * 7. OG / Top 2.2: 247,00m² € 14,50/m² * 7. OG/ Top 1 + Top 1.2 + Top 2.1: 1.140m² € 14,50/m² * 7. OG/ Top 1 + Top 1.2 + Top 2.2: 940m² € 14,50/m² * 7. OG: 1.387,00m² € 14,50/m² * 8. OG / 1: 694,00m² € 15,50/m² * 8. OG / 2: 694m² € 15,50/m² * 15. OG: 1.432,60m² € 15,90/m² Betriebskosten: € 5,45/m² (inkl. Heizung, Kühlung, Sicherheit und Energie) Parkplätze: à € 130,00 / Monat Alle Preise verstehen sich exkl. Mehrwertsteuer. Anbindung an den öffentlichen Verkehr: * Bus Linie 90A, 91A, 92A, 20B * U-Bahn Linie 1 Individualverkehr unmittelbar angebunden: * Wagramer Straße * Reichsbrücke * A22 - Donauufer-Autobahn * A23 - Südost Tangente Wir weisen darauf hin, dass zwischen dem Vermittler und dem zu vermittelnden Dritten ein familiäres oder wirtschaftliches Naheverhältnis besteht. Der Vermittler ist als Doppelmakler tätig. Infrastruktur / Entfernungen Gesundheit Arzt Apotheke Klinik Krankenhaus Kinder & Schulen Schule Kindergarten Universität Höhere Schule Nahversorgung Supermarkt Bäckerei Einkaufszentrum Sonstige Geldautomat Bank Post Polizei Verkehr Bus U-Bahn Straßenbahn Bahnhof Autobahnanschluss Angaben Entfernung Luftlinie / Quelle: Open Street Map... [Mehr]
#Büro #Gastronomie #Parkmöglichkeit
Der Ares Tower ist ein zentrales Bürogebäude der Donau City und bietet höchste Qualität und eine optimale Verkehrsanbindung. Neben den Büroflächen verfügt das Gebäude über einen zentralen Empfang, Cafeteria, Sky Lobby und eine Tiefgarage. Das mit 26 Stockwerken ca. 100 m hohe Gebäude weist eine Bruttogeschoßfläche von rund 60.000 m² auf. Bedingt durch die geometrisch strenge Grundrissform ist eine flächeneffiziente Büroadaptierung für jeden Mieter umsetzbar. Entsprechend dem Ausstattungsstandard im Büroturm verfügen die meisten Flächen über eine Kühldecke, Hohlraumboden, zweischalige Glasfassaden sowie eine zeitgerechte Haustechnikregelung. Die Flächen bestechen durch eine maximale Effizienz und vor allem auch Flexibilität, sodass sämtliche Bürolösungen, vom Einzelzimmer bis hin zum Großraum problemlos umsetzbar sind. Die hauseigene Tiefgarage erstreckt sich über 4 Decks und verfügt insgesamt über 495 Stellplätze. Verfügbare Flächen / Kosten: * 4. OG / Top 1: 192,00m² € 13,90/m² (reserviert) * 4. OG / Top 2.1: 446,00m² € 13,90/m² * 4. OG / Top 2.2: 244,00m² € 13,90/m² * 4. OG gesamt: 882,00m² € 13,90/m² * 6. OG: 634,00m² € 14,50/m² * 7. OG / Top 1: 447,00m² € 14,50/m² * 7. OG / Top 1.2: 246,00m² € 14,50/m² * 7. OG / Top 2.1: 447,00m² € 14,50/m² * 7. OG / Top 2.2: 247,00m² € 14,50/m² * 7. OG/ Top 1 + Top 1.2 + Top 2.1: 1.140m² € 14,50/m² * 7. OG/ Top 1 + Top 1.2 + Top 2.2: 940m² € 14,50/m² * 7. OG: 1.387,00m² € 14,50/m² * 8. OG / 1: 694,00m² € 15,50/m² * 8. OG / 2: 694m² € 15,50/m² * 15. OG: 1.432,60m² € 15,90/m² Betriebskosten: € 5,45/m² (inkl. Heizung, Kühlung, Sicherheit und Energie) Parkplätze: à € 130,00 / Monat Alle Preise verstehen sich exkl. Mehrwertsteuer. Anbindung an den öffentlichen Verkehr: * Bus Linie 90A, 91A, 92A, 20B * U-Bahn Linie 1 Individualverkehr unmittelbar angebunden: * Wagramer Straße * Reichsbrücke * A22 - Donauufer-Autobahn * A23 - Südost Tangente Wir weisen darauf hin, dass zwischen dem Vermittler und dem zu vermittelnden Dritten ein familiäres oder wirtschaftliches Naheverhältnis besteht. Der Vermittler ist als Doppelmakler tätig. Infrastruktur / Entfernungen Gesundheit Arzt Apotheke Klinik Krankenhaus Kinder & Schulen Schule Kindergarten Universität Höhere Schule Nahversorgung Supermarkt Bäckerei Einkaufszentrum Sonstige Geldautomat Bank Post Polizei Verkehr Bus U-Bahn Straßenbahn Bahnhof Autobahnanschluss Angaben Entfernung Luftlinie / Quelle: Open Street Map... [Mehr]
#Büro #Gastronomie #Parkmöglichkeit
Der Ares Tower ist ein zentrales Bürogebäude der Donau City und bietet höchste Qualität und eine optimale Verkehrsanbindung. Neben den Büroflächen verfügt das Gebäude über einen zentralen Empfang, Cafeteria, Sky Lobby und eine Tiefgarage. Das mit 26 Stockwerken ca. 100 m hohe Gebäude weist eine Bruttogeschoßfläche von rund 60.000 m² auf. Bedingt durch die geometrisch strenge Grundrissform ist eine flächeneffiziente Büroadaptierung für jeden Mieter umsetzbar. Entsprechend dem Ausstattungsstandard im Büroturm verfügen die meisten Flächen über eine Kühldecke, Hohlraumboden, zweischalige Glasfassaden sowie eine zeitgerechte Haustechnikregelung. Die Flächen bestechen durch eine maximale Effizienz und vor allem auch Flexibilität, sodass sämtliche Bürolösungen, vom Einzelzimmer bis hin zum Großraum problemlos umsetzbar sind. Die hauseigene Tiefgarage erstreckt sich über 4 Decks und verfügt insgesamt über 495 Stellplätze. Verfügbare Flächen / Kosten: * 4. OG / Top 1: 192,00m² € 13,90/m² (reserviert) * 4. OG / Top 2.1: 446,00m² € 13,90/m² * 4. OG / Top 2.2: 244,00m² € 13,90/m² * 4. OG gesamt: 882,00m² € 13,90/m² * 6. OG: 634,00m² € 14,50/m² * 7. OG / Top 1: 447,00m² € 14,50/m² * 7. OG / Top 1.2: 246,00m² € 14,50/m² * 7. OG / Top 2.1: 447,00m² € 14,50/m² * 7. OG / Top 2.2: 247,00m² € 14,50/m² * 7. OG/ Top 1 + Top 1.2 + Top 2.1: 1.140m² € 14,50/m² * 7. OG/ Top 1 + Top 1.2 + Top 2.2: 940m² € 14,50/m² * 7. OG: 1.387,00m² € 14,50/m² * 8. OG / 1: 694,00m² € 15,50/m² * 8. OG / 2: 694m² € 15,50/m² * 15. OG: 1.432,60m² € 15,90/m² Betriebskosten: € 5,45/m² (inkl. Heizung, Kühlung, Sicherheit und Energie) Parkplätze: à € 130,00 / Monat Alle Preise verstehen sich exkl. Mehrwertsteuer. Anbindung an den öffentlichen Verkehr: * Bus Linie 90A, 91A, 92A, 20B * U-Bahn Linie 1 Individualverkehr unmittelbar angebunden: * Wagramer Straße * Reichsbrücke * A22 - Donauufer-Autobahn * A23 - Südost Tangente Wir weisen darauf hin, dass zwischen dem Vermittler und dem zu vermittelnden Dritten ein familiäres oder wirtschaftliches Naheverhältnis besteht. Der Vermittler ist als Doppelmakler tätig. Infrastruktur / Entfernungen Gesundheit Arzt Apotheke Klinik Krankenhaus Kinder & Schulen Schule Kindergarten Universität Höhere Schule Nahversorgung Supermarkt Bäckerei Einkaufszentrum Sonstige Geldautomat Bank Post Polizei Verkehr Bus U-Bahn Straßenbahn Bahnhof Autobahnanschluss Angaben Entfernung Luftlinie / Quelle: Open Street Map... [Mehr]
#Büro #Gastronomie #Parkmöglichkeit
Der Ares Tower ist ein zentrales Bürogebäude der Donau City und bietet höchste Qualität und eine optimale Verkehrsanbindung. Neben den Büroflächen verfügt das Gebäude über einen zentralen Empfang, Cafeteria, Sky Lobby und eine Tiefgarage. Das mit 26 Stockwerken ca. 100 m hohe Gebäude weist eine Bruttogeschoßfläche von rund 60.000 m² auf. Bedingt durch die geometrisch strenge Grundrissform ist eine flächeneffiziente Büroadaptierung für jeden Mieter umsetzbar. Entsprechend dem Ausstattungsstandard im Büroturm verfügen die meisten Flächen über eine Kühldecke, Hohlraumboden, zweischalige Glasfassaden sowie eine zeitgerechte Haustechnikregelung. Die Flächen bestechen durch eine maximale Effizienz und vor allem auch Flexibilität, sodass sämtliche Bürolösungen, vom Einzelzimmer bis hin zum Großraum problemlos umsetzbar sind. Die hauseigene Tiefgarage erstreckt sich über 4 Decks und verfügt insgesamt über 495 Stellplätze. Verfügbare Flächen / Kosten: * 4. OG / Top 1: 192,00m² € 13,90/m² (reserviert) * 4. OG / Top 2.1: 446,00m² € 13,90/m² * 4. OG / Top 2.2: 244,00m² € 13,90/m² * 4. OG gesamt: 882,00m² € 13,90/m² * 6. OG: 634,00m² € 14,50/m² * 7. OG / Top 1: 447,00m² € 14,50/m² * 7. OG / Top 1.2: 246,00m² € 14,50/m² * 7. OG / Top 2.1: 447,00m² € 14,50/m² * 7. OG / Top 2.2: 247,00m² € 14,50/m² * 7. OG/ Top 1 + Top 1.2 + Top 2.1: 1.140m² € 14,50/m² * 7. OG/ Top 1 + Top 1.2 + Top 2.2: 940m² € 14,50/m² * 7. OG: 1.387,00m² € 14,50/m² * 8. OG / 1: 694,00m² € 15,50/m² * 8. OG / 2: 694m² € 15,50/m² * 15. OG: 1.432,60m² € 15,90/m² Betriebskosten: € 5,45/m² (inkl. Heizung, Kühlung, Sicherheit und Energie) Parkplätze: à € 130,00 / Monat Alle Preise verstehen sich exkl. Mehrwertsteuer. Anbindung an den öffentlichen Verkehr: * Bus Linie 90A, 91A, 92A, 20B * U-Bahn Linie 1 Individualverkehr unmittelbar angebunden: * Wagramer Straße * Reichsbrücke * A22 - Donauufer-Autobahn * A23 - Südost Tangente Wir weisen darauf hin, dass zwischen dem Vermittler und dem zu vermittelnden Dritten ein familiäres oder wirtschaftliches Naheverhältnis besteht. Der Vermittler ist als Doppelmakler tätig. Infrastruktur / Entfernungen Gesundheit Arzt Apotheke Klinik Krankenhaus Kinder & Schulen Schule Kindergarten Universität Höhere Schule Nahversorgung Supermarkt Bäckerei Einkaufszentrum Sonstige Geldautomat Bank Post Polizei Verkehr Bus U-Bahn Straßenbahn Bahnhof Autobahnanschluss Angaben Entfernung Luftlinie / Quelle: Open Street Map... [Mehr]
#Büro #Gastronomie #Parkmöglichkeit
Der Ares Tower ist ein zentrales Bürogebäude der Donau City und bietet höchste Qualität und eine optimale Verkehrsanbindung. Neben den Büroflächen verfügt das Gebäude über einen zentralen Empfang, Cafeteria, Sky Lobby und eine Tiefgarage. Das mit 26 Stockwerken ca. 100 m hohe Gebäude weist eine Bruttogeschoßfläche von rund 60.000 m² auf. Bedingt durch die geometrisch strenge Grundrissform ist eine flächeneffiziente Büroadaptierung für jeden Mieter umsetzbar. Entsprechend dem Ausstattungsstandard im Büroturm verfügen die meisten Flächen über eine Kühldecke, Hohlraumboden, zweischalige Glasfassaden sowie eine zeitgerechte Haustechnikregelung. Die Flächen bestechen durch eine maximale Effizienz und vor allem auch Flexibilität, sodass sämtliche Bürolösungen, vom Einzelzimmer bis hin zum Großraum problemlos umsetzbar sind. Die hauseigene Tiefgarage erstreckt sich über 4 Decks und verfügt insgesamt über 495 Stellplätze. Verfügbare Flächen / Kosten: * 4. OG / Top 1: 192,00m² € 13,90/m² (reserviert) * 4. OG / Top 2.1: 446,00m² € 13,90/m² * 4. OG / Top 2.2: 244,00m² € 13,90/m² * 4. OG gesamt: 882,00m² € 13,90/m² * 6. OG: 634,00m² € 14,50/m² * 7. OG / Top 1: 447,00m² € 14,50/m² * 7. OG / Top 1.2: 246,00m² € 14,50/m² * 7. OG / Top 2.1: 447,00m² € 14,50/m² * 7. OG / Top 2.2: 247,00m² € 14,50/m² * 7. OG/ Top 1 + Top 1.2 + Top 2.1: 1.140m² € 14,50/m² * 7. OG/ Top 1 + Top 1.2 + Top 2.2: 940m² € 14,50/m² * 7. OG: 1.387,00m² € 14,50/m² * 8. OG / 1: 694,00m² € 15,50/m² * 8. OG / 2: 694m² € 15,50/m² * 15. OG: 1.432,60m² € 15,90/m² Betriebskosten: € 5,45/m² (inkl. Heizung, Kühlung, Sicherheit und Energie) Parkplätze: à € 130,00 / Monat Alle Preise verstehen sich exkl. Mehrwertsteuer. Anbindung an den öffentlichen Verkehr: * Bus Linie 90A, 91A, 92A, 20B * U-Bahn Linie 1 Individualverkehr unmittelbar angebunden: * Wagramer Straße * Reichsbrücke * A22 - Donauufer-Autobahn * A23 - Südost Tangente Wir weisen darauf hin, dass zwischen dem Vermittler und dem zu vermittelnden Dritten ein familiäres oder wirtschaftliches Naheverhältnis besteht. Der Vermittler ist als Doppelmakler tätig. Infrastruktur / Entfernungen Gesundheit Arzt Apotheke Klinik Krankenhaus Kinder & Schulen Schule Kindergarten Universität Höhere Schule Nahversorgung Supermarkt Bäckerei Einkaufszentrum Sonstige Geldautomat Bank Post Polizei Verkehr Bus U-Bahn Straßenbahn Bahnhof Autobahnanschluss Angaben Entfernung Luftlinie / Quelle: Open Street Map... [Mehr]
#Büro #Gastronomie #Parkmöglichkeit
Der Ares Tower ist ein zentrales Bürogebäude der Donau City und bietet höchste Qualität und eine optimale Verkehrsanbindung. Neben den Büroflächen verfügt das Gebäude über einen zentralen Empfang, Cafeteria, Sky Lobby und eine Tiefgarage. Das mit 26 Stockwerken ca. 100 m hohe Gebäude weist eine Bruttogeschoßfläche von rund 60.000 m² auf. Bedingt durch die geometrisch strenge Grundrissform ist eine flächeneffiziente Büroadaptierung für jeden Mieter umsetzbar. Entsprechend dem Ausstattungsstandard im Büroturm verfügen die meisten Flächen über eine Kühldecke, Hohlraumboden, zweischalige Glasfassaden sowie eine zeitgerechte Haustechnikregelung. Die Flächen bestechen durch eine maximale Effizienz und vor allem auch Flexibilität, sodass sämtliche Bürolösungen, vom Einzelzimmer bis hin zum Großraum problemlos umsetzbar sind. Die hauseigene Tiefgarage erstreckt sich über 4 Decks und verfügt insgesamt über 495 Stellplätze. Verfügbare Flächen / Kosten: * 4. OG / Top 1: 192,00m² € 13,90/m² (reserviert) * 4. OG / Top 2.1: 446,00m² € 13,90/m² * 4. OG / Top 2.2: 244,00m² € 13,90/m² * 4. OG gesamt: 882,00m² € 13,90/m² * 6. OG: 634,00m² € 14,50/m² * 7. OG / Top 1: 447,00m² € 14,50/m² * 7. OG / Top 1.2: 246,00m² € 14,50/m² * 7. OG / Top 2.1: 447,00m² € 14,50/m² * 7. OG / Top 2.2: 247,00m² € 14,50/m² * 7. OG/ Top 1 + Top 1.2 + Top 2.1: 1.140m² € 14,50/m² * 7. OG/ Top 1 + Top 1.2 + Top 2.2: 940m² € 14,50/m² * 7. OG: 1.387,00m² € 14,50/m² * 8. OG / 1: 694,00m² € 15,50/m² * 8. OG / 2: 694m² € 15,50/m² * 15. OG: 1.432,60m² € 15,90/m² Betriebskosten: € 5,45/m² (inkl. Heizung, Kühlung, Sicherheit und Energie) Parkplätze: à € 130,00 / Monat Alle Preise verstehen sich exkl. Mehrwertsteuer. Anbindung an den öffentlichen Verkehr: * Bus Linie 90A, 91A, 92A, 20B * U-Bahn Linie 1 Individualverkehr unmittelbar angebunden: * Wagramer Straße * Reichsbrücke * A22 - Donauufer-Autobahn * A23 - Südost Tangente Wir weisen darauf hin, dass zwischen dem Vermittler und dem zu vermittelnden Dritten ein familiäres oder wirtschaftliches Naheverhältnis besteht. Der Vermittler ist als Doppelmakler tätig. Infrastruktur / Entfernungen Gesundheit Arzt Apotheke Klinik Krankenhaus Kinder & Schulen Schule Kindergarten Universität Höhere Schule Nahversorgung Supermarkt Bäckerei Einkaufszentrum Sonstige Geldautomat Bank Post Polizei Verkehr Bus U-Bahn Straßenbahn Bahnhof Autobahnanschluss Angaben Entfernung Luftlinie / Quelle: Open Street Map... [Mehr]














