provisionsfreie Dreizimmer Wohnung im Bezirk Wolfsberg kaufen
(Kärnten)
Versuchen Sie es hier:
Diese provisionsfreie Dreizimmer Wohnung im Bezirk Wolfsberg (Kärnten) kaufen haben Sie verpasst
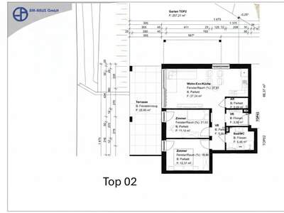
Wohnung kaufen in 9400 Wolfsberg
Gartenwohnung z. B. Top 4
9400 Wolfsberg / 64,19m² / 3 Zimmer
€ 4.500,- / m²

Das Wohnprojekt überzeugt durch seine zentrale Lage - Ritzingerstraße 4 - in der Stadt Wolfsberg, der Stadtkern ist nur 10 Gehminuten entfernt. Insgesamt werden nur 9 Wohnungen errichtet. Mit dem Bau wurde bereits begonnen....
Wohnung kaufen in 9400 St. Johann
9400 St. Johann - Schulstraße - Schöner Wohnen - TOP 01 mit Gartenfläche
9400 St. Johann / 70m² / 3 Zimmer
€ 4.753,50 / m²

In St.Johann i. L., in der Schulstraße wird ein Wohnhaus mit nur 4 Wohneinheiten von der BM-Haus Gmbh, 9423 St.Georgen i. L., errichtet. Wolfsberg ist in wenigen Minuten mit dem Auto erreichbar. Übergabe Sommer/Herbst...
