Beschreibung
Elegantes Altbau-Dachgeschoss mit sonniger Terrasse - Nähe Schillerhof Zum
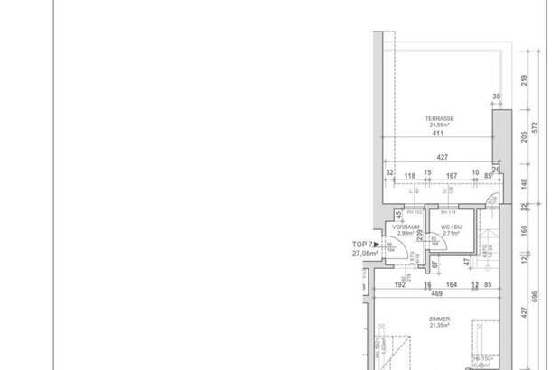
Verkauf gelangt eine besondere Rarität in begehrter Grazer Lage: zwei charmante Dachgeschosswohnungen in einem eleganten Altbau, die sich hervorragend zu einer großzügigen Einheit verbinden lassen. Durch die Zusammenlegung entsteht eine attraktive 2-Zimmer-
Wohnung mit insgesamt ca. 47 m² Wohnfläche sowie einer traumhaften 25 m² Dachterrasse mit optimaler Sonnenausrichtung. Die geplante Raumaufteilung bietet: einen einladenden Flur ein großzügiges Wohnzimmer mit Ausgang auf die Terrasse ein gemütliches Schlafzimmer ein Badezimmer ein separates WC Die Verbindung von historischem Altbau-Flair und modernem Dachgeschoss-Wohnen schafft ein einzigartiges Wohngefühl. Die herrliche Terrasse lädt zum Entspannen und Genießen ein - mitten in der Stadt und doch angenehm ruhig. Die Lage unweit des Schillerhofs überzeugt durch beste Infrastruktur, schnelle Anbindung an öffentliche Verkehrsmittel sowie zahlreiche Nahversorger, Cafés
und Restaurants in Gehweite. Eckdaten: Wohnfläche: ca. 47 m² Dachterrasse: ca. 25 m² Badezimmer/WC getrennt Mietvertrag: unbefristet vermietet Haben wir Ihr Interesse geweckt? Vereinbaren Sie jetzt einen Besichtigungstermin mit Frau Petra Nemecz unter [Tel]. Hinweis auf familiäres oder wirtschaftliches Naheverhältnis gemäß § 30b KSchG und § 6 Abs. 4 Makler G: Zwischen dem Makler und dem vermittelten Dritten besteht ein familiäres bzw. wirtschaftliches Naheverhältnis im Sinne des § 30b Konsumentenschutzgesetzes und § 6 Abs. 4 Maklergesetzes. Wir weisen darauf hin, dass ein solches Naheverhältnis geeignet sein kann, die Interessen des Auftraggebers zu beeinträchtigen. Der Hinweis erfolgt daher ausdrücklich und rechtzeitig im Sinne der gesetzlichen Offenlegungspflicht. Lage: Die Immobilie befindet sich in einem zentralen und lebendigen Stadtteil von Graz und zugleich in einer ruhigen Wohngegend im Bezirk St.Leonhard. Die Umgebung zeichnet sich durch eine hervorragende Infrastruktur aus, mit zahlreichen Einkaufsmöglichkeiten, Restaurants und Cafés in unmittelbarer Nähe. Die Anbindung an den öffentlichen Nahverkehr ist ausgezeichnet, sodass das Stadtzentrum und andere Ziele der Stadt schnell und bequem erreichbar sind. Zudem befinden sich Bildungseinrichtungen und Grünflächen in der Umgebung, die zur hohen Lebensqualität des Viertels beitragen.... [Mehr]