Bewilligtes Bauprojekt für 13 Mikroapartments für Hotel Garni oder Kurzzeitvermietung in Dornbirn
6850 Dornbirn / 754m²
Beschreibung
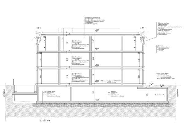
13 Mikroapartement mit Baubewilligung Beste Lage, ruhig & zentral, in Bahnhof- und Stadtnähe Tiefgarage mit neun Autoeinstellplätzen, Fahrradabstellbereiche und Kellerabteile Wohnfläche 450 m² 9 Tiefgaragenplätze 2 x 3 Zimmer Wohnungen 6 x 2 Zimmer Wohnungen 5 x 1 Zimmer Wohnungen Ankauf Grundstück mit Baugenehmigung und Planung bzw. Schlüsselfertig - 3,5% Grunderwerbsteuer - 1,1% Grundbuchseintragung - 3,0% Vermittlungsprovision zzgl. 20% MwSt. - Vertragserrichtungskosten - Beglaubigungskosten + BarauslagenKontakt & Orginalinserat
immobilien.derstandard.at, vom